Bénéficiez des services de nos partenaires locaux soigneusement sélectionnés
pour vous accompagner dans votre parcours d'achat immobilier

Maison idéale pour projet professionnel

— Brimeux 62170 —
225 000 €
150 m² / 2 700 m²
7 pièces
parkingbalcon/terrasse

Nos partenaires locaux
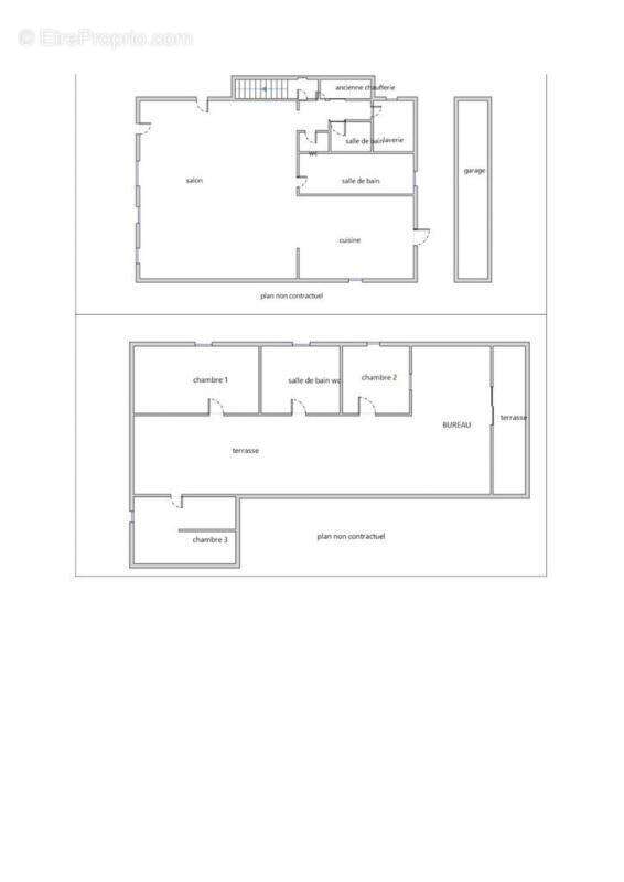
À vendre à Brimeux, magnifique maison de 150m² environ sur un terrain de 2700m².
Cette propriété spacieuse et lumineuse offre un cadre de vie idéal pour votre famille et votre future activité professionnelle.

Avec ses 7 pièces (5 chambres: de 14 à 27 m2, et 3 salles de bain), son ancien magasin avec arrière boutique, son ancien bureau, son très grand garage, cette maison est parfaite pour conjuguer vie familiale et professionnelle (boulangerie, garage, etc...).

Le chauffage au bois apporte une ambiance chaleureuse et économique et est complété par une pompe à chaleur réversible air/air.
Ce bien est également équipé de 16 m2 de panneaux solaires.

Profitez également d'une belle terrasse avec vue sur le grand jardin pour vos moments de détente en toute tranquillité.

Ne manquez pas cette opportunité unique d'acquérir un bien d'exception à 225 000€. Vous avez procédé avec votre étude financière, Alors, contactez-moi dès à présent pour organiser une visite et laissez-vous séduire par cette maison qui n'attend que vous.
Prix hors honoraires d'agence 220 000 €.
Prix honoraires inclus 225 000 €.

Annonce publiée par Nathalie Gasc-Prin (EI) votre agent commercial en immobilier LF immo à Aubin Saint-Vaast, 62140 immatriculé au RSAC de BOULOGNE SUR MER sous le n°921 874 665 000 18. Consultez nos tarifs sur le site LF immo.

Les informations sur les risques auxquels ce bien est exposé sont disponibles sur le site Géorisques : www.georisques.gouv.fr.
Voir plus

Référence: fr071564
Honoraires d'agence de 2.27% à la charge de l'acquéreur

Prêt immobilier

Vous souhaitez connaître votre capacité d’emprunt et trouver le meilleur crédit immobilier ?
Réaliser une simulation gratuite

Maison à BRIMEUX
Maison à BRIMEUX
Maison à BRIMEUX
Maison à BRIMEUX
Maison à BRIMEUX
Maison à BRIMEUX
Maison à BRIMEUX
Maison à BRIMEUX
Maison à BRIMEUX
Maison à BRIMEUX
Maison à BRIMEUX
Maison à BRIMEUX
Maison à BRIMEUX
Maison à BRIMEUX
Maison à BRIMEUX
Ce site est protégé par reCAPTCHA la Politique de confidentialité et les Conditions d’utilisation de Google s’appliquent.
Obtenir un prêt immobilier au meilleur taux ?

En poursuivant votre navigation sans modifier vos paramètres, vous acceptez l'utilisation de cookies susceptibles de réaliser des statistiques de visite. Cliquez ici pour plus d'informations