Bénéficiez des services de nos partenaires locaux soigneusement sélectionnés
pour vous accompagner dans votre parcours d'achat immobilier

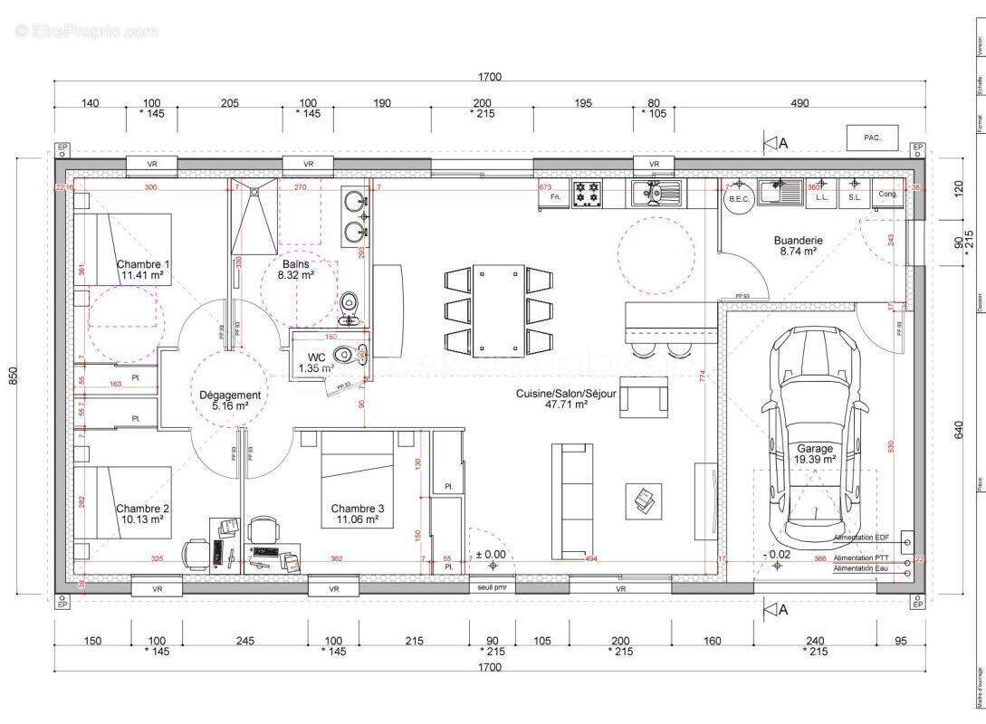
Plain-pied en construction

— Parthenay 79200 —
225 000 €
103 m²
5 pièces
balcon/terrasse

Nos partenaires locaux
Situé à Parthenay sur le secteur du Leclerc, ce pavillon de plain-pied en construction n'attend que vous. Vous aurez la possibilité de faire le choix sur certains matériaux comme le carrelage ou la faïence. La terrasse extérieure sera également faite, le terrain d'environ 500 m² sera clos hormis le portail de clôture. A votre charge la déco intérieure. Tous les travaux sont réalisés par des artisans, ce qui garantit la construction et ce avec les décennales de chacun.
Pour plus de renseignements contactez-moi.

Cette annonce référence 313329 vous est présentée par votre agent commercial BSK Immobilier JEAN-NICOLAS BAUDOUIN (EI) immatriculé au RSAC de NIORT (79000) sous le numéro 44199368000038.

Prix du bien : 225 000,00 €
Les honoraires d'agence sont à la charge du vendeur.

A propos des performances énergétiques :
Date de réalisation du diagnostic énergétique : 17/03/2025
Score DPE : 48 kWhEP/m²/an
Score GES : 1 kgepCO2/m²/an
Montant estimé des dépenses annuelles d'énergie pour un usage standard : entre 412.00 € et 1500.00 € par an. Prix moyens des énergies indexés sur l'année 2025 (abonnements compris).

Les informations sur les risques auxquels ce bien est exposé sont disponibles sur le site Géorisques : www.georisques.gouv.fr
Voir plus

Référence: 313329
Honoraires à la charge du vendeur.

Prêt immobilier

Vous souhaitez connaître votre capacité d’emprunt et trouver le meilleur crédit immobilier ?
Réaliser une simulation gratuite

Maison à PARTHENAY
Maison à PARTHENAY
Maison à PARTHENAY
Maison à PARTHENAY
Ce site est protégé par reCAPTCHA la Politique de confidentialité et les Conditions d’utilisation de Google s’appliquent.
Obtenir un prêt immobilier au meilleur taux ?

En poursuivant votre navigation sans modifier vos paramètres, vous acceptez l'utilisation de cookies susceptibles de réaliser des statistiques de visite. Cliquez ici pour plus d'informations