Bénéficiez des services de nos partenaires locaux soigneusement sélectionnés
pour vous accompagner dans votre parcours d'achat immobilier

Grande demeure de caractère avec fort potentiel

— Saint-Honore-Les-Bains 58360 —
170 000 €
430 m² / 2 425 m²
14 pièces
balcon/terrassejardin

Nos partenaires locaux
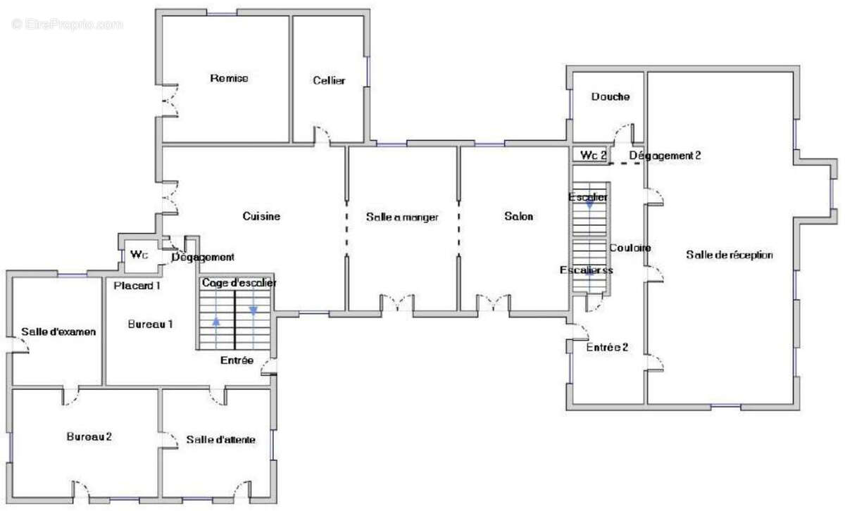
Au cœur de la station thermale de Saint-Honoré-les-Bains, le Chalet Bellevue, également appelé Villa Walsdorff. Cette propriété de 430 m2 offre un potentiel exceptionnel, aussi bien pour un projet familial que pour un investissement touristique pour les curistes. Implantée sur un terrain arboré de 2 425 m2, cette grande propriété se distingue par ses volumes rares et son emplacement idéal à proximité des thermes.
La bâtisse est divisée en deux parties, avec dans l’aile gauche et au centre du bâtiment l’habitation principale. Celui-ci se compose d’une vaste entrée desservant plusieurs pièces spacieuses, dont un séjour / salle à manger de plus de 30m2 ainsi qu’une cuisine de 27 m2. Une ancienne configuration professionnelle (bureaux, salle d’attente, salle d’examen) offre de véritables possibilités de transformation supplémentaires : création de suites, activité libérale ou encore logements pour curistes. À l’étage, cette partie propose quatre chambres de 12 à 22 m2, deux salles de bain, deux WC et de vastes dégagements.
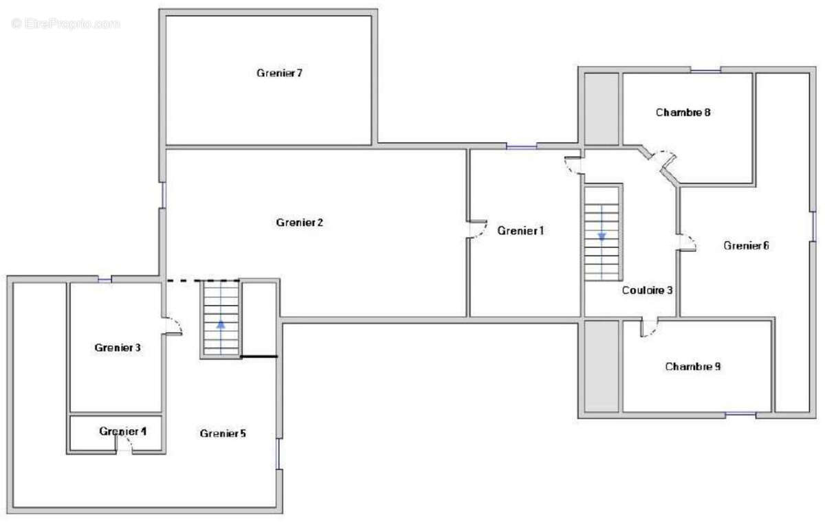
L’aile droite accueille au rez-de-chaussé une entrée desservant une grande pièce principale de 45m2, suivi d’une douche et d’un WC. Au premier étage, trois chambres supplémentaires sont présentes, ainsi qu’une salle d’eau et un WC. Au second étage, deux chambres ainsi que l’accès aux greniers.
Niveau extérieurs, vous pourrez profiter d’un beau jardin avec terrasse et parking privé. La situation géographique, au sein de cette commune thermale, constitue un atout majeur pour un éventuel projet d’hébergement.
Des travaux de rénovation sont à prévoir.
Caractéristiques techniques Chauffage : ancienne chaudière fioul (hors service) Menuiseries en double vitrage Installation électrique à revoir - Tout à l'égout - Taxe foncière : 1948€ / an
Pour plus d’informations, n’hésitez pas à me contacter. 170 000 € HAI (honoraires d'agence inclus), dont 6 % TTC à la charge de l'acquéreur, prix hors honoraires : 159 800€.

Les informations sur les risques auxquels ce bien est exposé sont disponibles sur le site Géorisques: www.géorisques.gouv.fr
Voir plus

Référence: 164
Honoraires d'agence de 6.38% à la charge de l'acquéreur
DPE
A
B
C
D
E
F
G
GES
A
B
C
D
E
F
G

Prêt immobilier

Vous souhaitez connaître votre capacité d’emprunt et trouver le meilleur crédit immobilier ?
Réaliser une simulation gratuite

Maison à SAINT-HONORE-LES-BAINS
Maison à SAINT-HONORE-LES-BAINS
Maison à SAINT-HONORE-LES-BAINS
Maison à SAINT-HONORE-LES-BAINS
Maison à SAINT-HONORE-LES-BAINS
Maison à SAINT-HONORE-LES-BAINS
Maison à SAINT-HONORE-LES-BAINS
Maison à SAINT-HONORE-LES-BAINS
Maison à SAINT-HONORE-LES-BAINS
Maison à SAINT-HONORE-LES-BAINS
Maison à SAINT-HONORE-LES-BAINS
Maison à SAINT-HONORE-LES-BAINS
Maison à SAINT-HONORE-LES-BAINS
Maison à SAINT-HONORE-LES-BAINS
Maison à SAINT-HONORE-LES-BAINS
Maison à SAINT-HONORE-LES-BAINS
Maison à SAINT-HONORE-LES-BAINS
Maison à SAINT-HONORE-LES-BAINS
Maison à SAINT-HONORE-LES-BAINS
Maison à SAINT-HONORE-LES-BAINS
Maison à SAINT-HONORE-LES-BAINS
Maison à SAINT-HONORE-LES-BAINS
Maison à SAINT-HONORE-LES-BAINS
Maison à SAINT-HONORE-LES-BAINS
Maison à SAINT-HONORE-LES-BAINS
Maison à SAINT-HONORE-LES-BAINS
Maison à SAINT-HONORE-LES-BAINS
Maison à SAINT-HONORE-LES-BAINS
Ce site est protégé par reCAPTCHA la Politique de confidentialité et les Conditions d’utilisation de Google s’appliquent.
Obtenir un prêt immobilier au meilleur taux ?

En poursuivant votre navigation sans modifier vos paramètres, vous acceptez l'utilisation de cookies susceptibles de réaliser des statistiques de visite. Cliquez ici pour plus d'informations