Maison 90m² à ferel

— Ferel 56130 —
315 000 €
91 m² / 473 m²
5 pièces
parkingjardin

Maison Individuelle Neuve Prête à décorer

Je vous invite à découvrir cette maison individuelle de plus de 90 m² habitable, construite en 2025, offrant un cadre de vie agréable et un confort moderne.

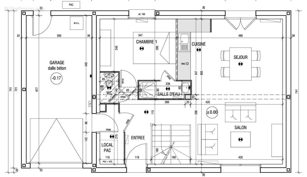
Avec ses 4 chambres spacieuses, dont une au rdc avec salle d'eau attenante et son séjour lumineux de 32 m², et ses 2 niveaux, cette propriété vous permettra de profiter de belles prestations.

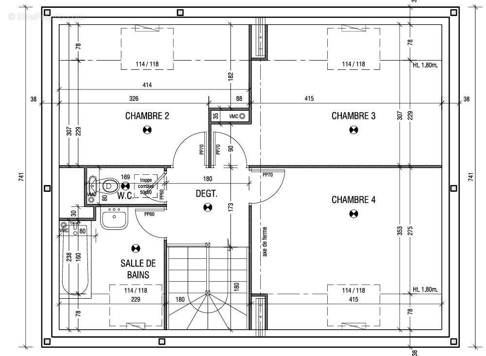
Le rez-de-chaussée se compose d'une cuisine aménagée, d'un séjour spacieux, d'une salle à manger, d'une chambre avec salle d'eau, d'un cellier et s'un wc indépendant, tandis que l'étage abrite les trois chambres et la salles de bains et le wc indépendant.

La maison est équipée d'un chauffage individuel, par aérothermie. Les fenêtres en PVC/Aluminium avec double vitrage, et une toiture en ardoise artificielle, garantissent une isolation optimale.

Profitez d'un jardin privatif pour des moments de détente en plein air, et d'un stationnement intérieur pour votre véhicule grâce au garage de plus de 20m2.

La maison est située dans un quartier calme et bien desservi, avec plusieurs commodités à proximité.

Ne manquez pas cette opportunité de vivre dans une maison neuve, prête à accueillir à vous accueillir vous et votre famille. Contactez-nous dès aujourd'hui pour une visite!

Honoraires inclus de 5% TTC à la charge de l'acquéreur. Prix hors honoraires 300 000 €. Dans une copropriété de 19 lots. Aucune procédure n'est en cours. DPE en cours. Les informations sur les risques auxquels ce bien est exposé sont disponibles sur le site Géorisques : georisques.gouv.fr.

Votre conseiller RENT IMMO : Elodie Blancho
Agent commercial (Entreprise individuelle)
RSAC 879973378
RCP 1[Coordonnées masquées]1
Voir plus

Référence: VM1020-RENTIMMO
Bien en copropriété. Nombre de lots : 19.
Honoraires d'agence de 5% à la charge de l'acquéreur
Barème des honoraires

Prêt immobilier

Vous souhaitez connaître votre capacité d’emprunt et trouver le meilleur crédit immobilier ?
Réaliser une simulation gratuite

Maison à FEREL
Maison à FEREL
Maison à FEREL
Maison à FEREL
Ce site est protégé par reCAPTCHA la Politique de confidentialité et les Conditions d’utilisation de Google s’appliquent.
Obtenir un prêt immobilier au meilleur taux ?

En poursuivant votre navigation sans modifier vos paramètres, vous acceptez l'utilisation de cookies susceptibles de réaliser des statistiques de visite. Cliquez ici pour plus d'informations