Bénéficiez des services de nos partenaires locaux soigneusement sélectionnés
pour vous accompagner dans votre parcours d'achat immobilier

Studio lumineux au centre avec parking et aperçu mer

— Sainte-Maxime 83120 —
249 000 €
32 m²
1 pièce
ascenseur

Nos partenaires locaux
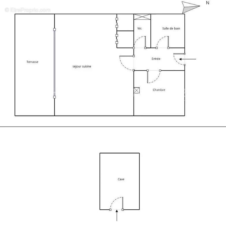
Spacieux studio lumineux d'environ 32m2 situé au 2ème étage (ascenseur) d'une bonne résidence. Le studio a été entièrement rénové et se compose d'un séjour. d'une cuisine équipée. une chambre. d'une salle de douche et d'un WC séparé. Il y a deux armoires encastrées et un balcon avec une aperçu mer.

Le studio comprend une place de stationnement dans le parking souterrain et une cave. La résidence se trouve à quelques pas du centre de Sainte Maxime et de la mer.
Idéal pour pied à terre et investissement
Voir plus

Référence: 86156681
Barème des honoraires
DPE
A
B
C
D
E
F
G

Prêt immobilier

Vous souhaitez connaître votre capacité d’emprunt et trouver le meilleur crédit immobilier ?
Réaliser une simulation gratuite

Appartement à SAINTE-MAXIME
Appartement à SAINTE-MAXIME
Appartement à SAINTE-MAXIME
Appartement à SAINTE-MAXIME
Appartement à SAINTE-MAXIME
Appartement à SAINTE-MAXIME
Appartement à SAINTE-MAXIME
Appartement à SAINTE-MAXIME
Appartement à SAINTE-MAXIME
Appartement à SAINTE-MAXIME
Appartement à SAINTE-MAXIME
Appartement à SAINTE-MAXIME
Appartement à SAINTE-MAXIME
Appartement à SAINTE-MAXIME
Ce site est protégé par reCAPTCHA la Politique de confidentialité et les Conditions d’utilisation de Google s’appliquent.
Obtenir un prêt immobilier au meilleur taux ?

En poursuivant votre navigation sans modifier vos paramètres, vous acceptez l'utilisation de cookies susceptibles de réaliser des statistiques de visite. Cliquez ici pour plus d'informations