Maison 100m² à sainte-barbe

— Sainte-Barbe 57640 —
65 000 €
100 m² / 269 m²
1 pièce
jardin

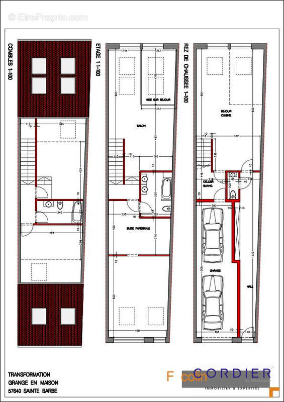
En exclusivité, Immobilière CORDIER vous propose une grange à rénover entièrement (viabilisations à réaliser), située sur la commune de Gras, Sainte Barbe (57) proche de Metz.

Un projet a été établi (cf photos 2 et 3) via un architecte et deux devis vous seront proposés :
- un devis d'une maison prête à être décorée : excluant peinture, sols, sanitaires et cuisine
- un devis clé en main (cuisine incluse)

Le bien offre :
- une surface au sol d'environ 100 mètres carré (5*20)
- sur l'avant une allée de 60 mètres carré
- sur l'arrière un jardin privatif orienté Sud-Est d'environ 80 mètres carré.

Le projet pensé et proposé par nos soins vous offrira une maison sur 3 niveaux, composée de 3 chambres, d'un double garage au RDC (sur l'avant) ainsi qu'un séjour sur l'arrière, côté jardin, avec mezzanine et puit de lumière.




Honoraires inclus de 1200% TTC à la charge de l'acquéreur. Prix hors honoraires 5 000 €. DPE en cours. Les informations sur les risques auxquels ce bien est exposé sont disponibles sur le site Géorisques : georisques.gouv.fr.
Voir plus

Référence: VM610-WELLKHOME
Honoraires à la charge de l'acquéreur.

Prêt immobilier

Vous souhaitez connaître votre capacité d’emprunt et trouver le meilleur crédit immobilier ?
Réaliser une simulation gratuite

Maison à SAINTE-BARBE
Maison à SAINTE-BARBE
Maison à SAINTE-BARBE
Ce site est protégé par reCAPTCHA la Politique de confidentialité et les Conditions d’utilisation de Google s’appliquent.
Obtenir un prêt immobilier au meilleur taux ?

En poursuivant votre navigation sans modifier vos paramètres, vous acceptez l'utilisation de cookies susceptibles de réaliser des statistiques de visite. Cliquez ici pour plus d'informations