Bénéficiez des services de nos partenaires locaux soigneusement sélectionnés
pour vous accompagner dans votre parcours d'achat immobilier

Appartement 2 pièces

— Croissy-Sur-Seine 78290 —
242 000 €
36 m²
2 pièces
balcon/terrasse

Nos partenaires locaux
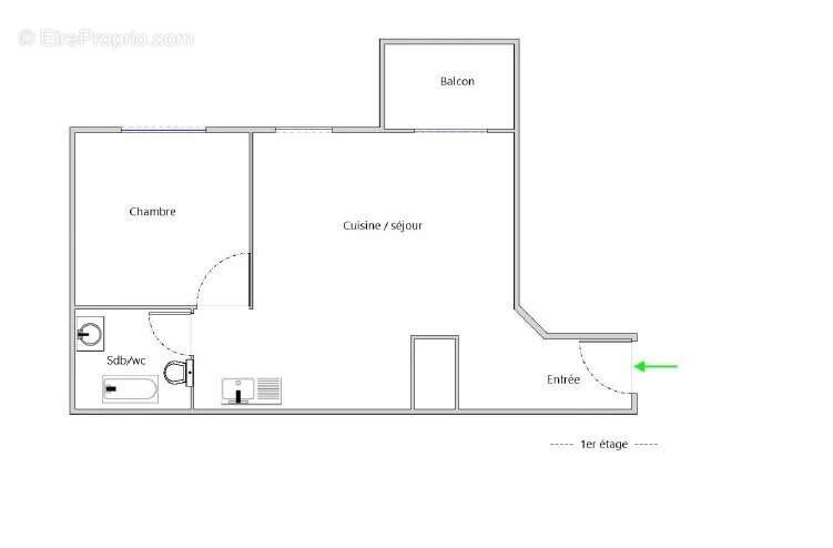
Idéalement placé à 200 m² du centre-ville dans une petite copropriété de 1998, cet appartement d'environ 36 m² dispose d'une cave, d'un ascenseur et d'un box en sous-sol.
L'entrée est équipée d'une penderie, la cuisine ouverte sur le séjour offre une agréable pièce de vie donnant également accès au balcon orienté ouest. Une chambre et une salle de bains avec toilettes. Au calme et sans vis-à-vis, RER à 18 minutes, bus à proximité.
À savoir, La nouvelle règlementation concernant le calcul du DPE : l'appartement passera en C dès le 1ᵉʳ janvier 2026.
Voir plus

Référence: 86519781
Barème des honoraires
DPE
A
B
C
D
E
F
G

Prêt immobilier

Vous souhaitez connaître votre capacité d’emprunt et trouver le meilleur crédit immobilier ?
Réaliser une simulation gratuite

Appartement à CROISSY-SUR-SEINE
Appartement à CROISSY-SUR-SEINE
Appartement à CROISSY-SUR-SEINE
Appartement à CROISSY-SUR-SEINE
Appartement à CROISSY-SUR-SEINE
Appartement à CROISSY-SUR-SEINE
Appartement à CROISSY-SUR-SEINE
Appartement à CROISSY-SUR-SEINE
Appartement à CROISSY-SUR-SEINE
Ce site est protégé par reCAPTCHA la Politique de confidentialité et les Conditions d’utilisation de Google s’appliquent.
Obtenir un prêt immobilier au meilleur taux ?

En poursuivant votre navigation sans modifier vos paramètres, vous acceptez l'utilisation de cookies susceptibles de réaliser des statistiques de visite. Cliquez ici pour plus d'informations