Bénéficiez des services de nos partenaires locaux soigneusement sélectionnés
pour vous accompagner dans votre parcours d'achat immobilier

Appartement 1 chambre(s) à vendre

— Nantes 44100 —
172 000 €
38 m²
2 pièces
parkingascenseur

Nos partenaires locaux
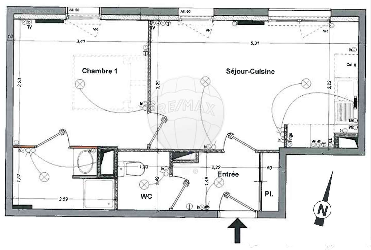
À vendre – Appartement T2 – Mellinet, Nantes

Au cœur du quartier prisé de Mellinet, cet appartement T2 de 38 m² offre un cadre de vie fonctionnel et agréable, idéal pour un primo-accédant ou un investisseur.
Situé au 1ᵉʳ étage d’une résidence récente et soignée (2011) avec ascenseur, il se compose d’une entrée avec placard, d’un séjour avec kitchenette, d’une chambre disposant d’un accès direct à la salle d'eau, ainsi que de WC séparés.

Un garage box fermé en sous-sol apporte un vrai plus dans le secteur.

Un bien rare à la vente, à découvrir sans attendre.

Contactez-nous pour organiser une visite. 
Honoraires à la charge du vendeur.
Montant moyen annuel de la quote-part de charges courantes : 1060 €.
Nombre de procédure en cours: 0.
Les informations sur les risques auxquels ce bien est exposé sont disponibles sur le site Géorisques : www.georisques.gouv.fr .
Voir plus

Référence: 750051008-491
Honoraires à la charge du vendeur.
DPE
A
B
C
D
E
F
G
GES
A
B
C
D
E
F
G

Prêt immobilier

Vous souhaitez connaître votre capacité d’emprunt et trouver le meilleur crédit immobilier ?
Réaliser une simulation gratuite

Appartement à NANTES
Appartement à NANTES
Appartement à NANTES
Appartement à NANTES
Appartement à NANTES
Appartement à NANTES
Appartement à NANTES
Ce site est protégé par reCAPTCHA la Politique de confidentialité et les Conditions d’utilisation de Google s’appliquent.
Obtenir un prêt immobilier au meilleur taux ?

En poursuivant votre navigation sans modifier vos paramètres, vous acceptez l'utilisation de cookies susceptibles de réaliser des statistiques de visite. Cliquez ici pour plus d'informations