Bénéficiez des services de nos partenaires locaux soigneusement sélectionnés
pour vous accompagner dans votre parcours d'achat immobilier

Vente appartement asnieres-sur-seine(92600) 465 000ᅵ

— Asnieres-Sur-Seine 92600 —
465 000 €
66 m²
3 pièces

Nos partenaires locaux
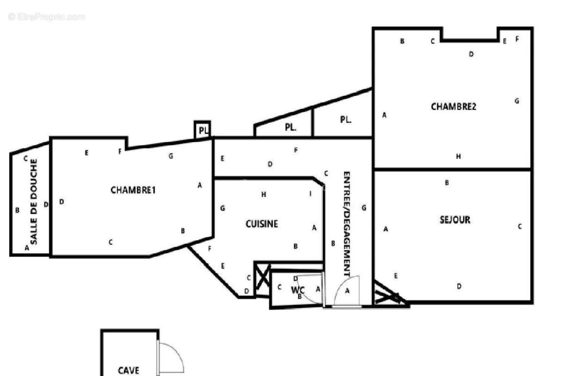
Coup de coeur- belles prestations - clair - charme de l ancien coup de coeur de l equipe - uniquement chez arthurimmo asniÈres lgc 13 conseils - comÈte/ mairie vous serez seduits a coup sur par les nombreux atouts de ce 3 pièces de 66.22m² au 3ème étage : très belles prestations , excellent dpe (d) rare , traversant , charme de l ancien ( belle hauteur sous plafond /cheminées/parquet chêne) , clair ,expo sud ouest pour le sejour et donc très clair , modularite, immeuble dont le ravalement vient d'être refait( magnifique !) il est composé d'une entrée avec dressing , séjour /2 chambres de belle taille ( plus de 13m²) ou salon séjour car cloison ouvrable pour en faire une pièce de vie de 27m² et 1 chambre , cuisine séparée de belle facture , wc séparé, salle d'eau avec fenêtre les charges de 145 euros par mois et comprennent l'eau froide, l'entretien des parties communes, sortie poubelles , syndic notamment ... le chauffage et la production d'eau via chaudière gaz à condensation qui vient d être changée et avec thermostat d'ambiance une cave complète ce bien ainsi qu un local vélo à la disposition des occupants les écoles publiques rattachées sont recherchées ( fontaine /mauriceau/truffaut) les transports sont proches ( gabriel péri ligne 13 est à 900 m , gare d'asnières 750 m , bus à à toute proximité ) comme les commerces arthurimmo lgc xiii conseils sera ravi de vous accompagner pour vous faire decouvrir votre futur chez vous !!!
Voir plus

Référence: 86379930B
DPE
A
B
C
D
E
F
G
GES
A
B
C
D
E
F
G

Prêt immobilier

Vous souhaitez connaître votre capacité d’emprunt et trouver le meilleur crédit immobilier ?
Réaliser une simulation gratuite

Appartement à ASNIERES-SUR-SEINE
Appartement à ASNIERES-SUR-SEINE
Appartement à ASNIERES-SUR-SEINE
Appartement à ASNIERES-SUR-SEINE
Appartement à ASNIERES-SUR-SEINE
Appartement à ASNIERES-SUR-SEINE
Appartement à ASNIERES-SUR-SEINE
Appartement à ASNIERES-SUR-SEINE
Appartement à ASNIERES-SUR-SEINE
Appartement à ASNIERES-SUR-SEINE
Ce site est protégé par reCAPTCHA la Politique de confidentialité et les Conditions d’utilisation de Google s’appliquent.
Obtenir un prêt immobilier au meilleur taux ?

En poursuivant votre navigation sans modifier vos paramètres, vous acceptez l'utilisation de cookies susceptibles de réaliser des statistiques de visite. Cliquez ici pour plus d'informations