Bénéficiez des services de nos partenaires locaux soigneusement sélectionnés
pour vous accompagner dans votre parcours d'achat immobilier

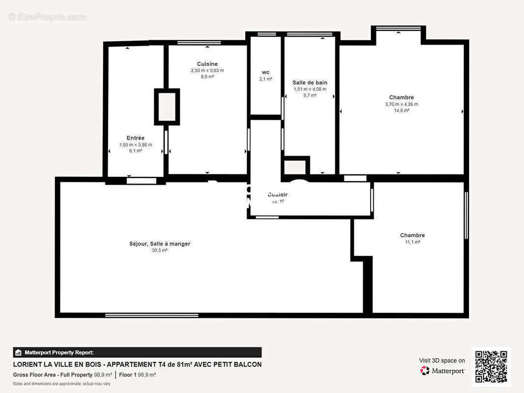
Lorient ville en bois - appartement t4 de 81m² avec petit balcon et annexes

— Lorient 56100 —
185 000 €
81 m²
4 pièces
balcon/terrasse

Nos partenaires locaux
Découvrez cet appartement à vendre d'une surface totale de 81m² situé à Lorient, dans une rue calme entre la gare et le scorff. Sur beaux parquets anciens des années 50, ce lumineux appartement T4 à la triple exposition et aux ouvertures dans toutes les pièces se compose d'une belle entrée avec un petit balcon côté EST, d'un salon séjour de 30m² (possibilité 3ème chambre en recloisonnant), d'une cuisine aménagée et équipée indépendante, d'une confortable salle d'eau avec branchement machine à laver, d'un wc séparé et de 2 belle chambres de 14 et 11m². Le chauffage est individuel au gaz de ville (production chauffage et eau chaude) et les fenetres sont toutes en PVC double vitrage. Pour le stockage et vélos, 3 annexes sont avec l'appartement : un local depot au rez de chaussée permettant d'y mettre un vélo (4m²) , une cave privative en sous sol et un grenier privatif au 5ème étage d'une superficie de 13m². La copropriété de 27 lots répartie sur 3 entrées est gérée par votre agence BARRAINE IMMO LORIENT. Les charges annuelles sur le dernier exercice sont de 853,63 euros à l'année. Taxe foncière 1191 euros. Situé à proximité de plusieurs établissements scolaires tels que l'École élémentaire publique Kérentrech et le Collège de Kérentrech, cet appartement est idéalement placé pour les familles. Vous trouverez également la gare de Lorient à proximité, facilitant vos déplacements. Le secteur offre divers restaurants, boulangeries et pharmacies, rendant votre quotidien agréable. Ne manquez pas cette opportunité, contactez l'Agence Barraine IMMO Lorient pour plus d'informations et pour organiser une visite. (5.71 % honoraires TTC à la charge de l'acquéreur.) Copropriété de 27 lots - dont 853,63 lots habitation. (Pas de procédure en cours). Charges annuelles : 853.63 euros.
Voir plus

Référence: LT00384-MB
Bien en copropriété. Nombre de lots : 27. Charges de copropriété : 853 €.
Honoraires d'agence de 5.71% à la charge de l'acquéreur
Barème des honoraires
DPE
A
B
C
D
E
F
G
GES
A
B
C
D
E
F
G

Prêt immobilier

Vous souhaitez connaître votre capacité d’emprunt et trouver le meilleur crédit immobilier ?
Réaliser une simulation gratuite

Appartement à LORIENT
Appartement à LORIENT
Appartement à LORIENT
Appartement à LORIENT
Appartement à LORIENT
Appartement à LORIENT
Appartement à LORIENT
Appartement à LORIENT
Appartement à LORIENT
Appartement à LORIENT
Appartement à LORIENT
Appartement à LORIENT
Appartement à LORIENT
Appartement à LORIENT
Appartement à LORIENT
Appartement à LORIENT
Appartement à LORIENT
Appartement à LORIENT
Appartement à LORIENT
Appartement à LORIENT
Ce site est protégé par reCAPTCHA la Politique de confidentialité et les Conditions d’utilisation de Google s’appliquent.
Obtenir un prêt immobilier au meilleur taux ?

En poursuivant votre navigation sans modifier vos paramètres, vous acceptez l'utilisation de cookies susceptibles de réaliser des statistiques de visite. Cliquez ici pour plus d'informations