Bénéficiez des services de nos partenaires locaux soigneusement sélectionnés
pour vous accompagner dans votre parcours d'achat immobilier

Exclusivité a vendre brest recouvrance appartement t4 76.78 m² ascenseur balcon

— Brest 29200 —
160 000 €
77 m²
4 pièces
ascenseur

Nos partenaires locaux
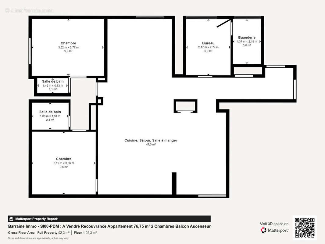
EXCLUSIVITÉ ? BREST ? RECOUVRANCE . Réf : SI00468-PDM Situé dans le secteur de Recouvrance, à Brest (29200), venez découvrir cet appartement T4 développant 76,78 m² habitables. Implanté au 1er étage sur 6 d'un immeuble avec ascenseur datant du début des années 1960, il bénéficie d'un environnement agréable. L'appartement se compose d'une entrée avec rangements desservant un salon-séjour lumineux de 21,5 m² exposé SUD/EST, avec accès direct à un balcon. La cuisine aménagée et équipée de 13,36 m² est attenante, offrant un espace pièce de vie de 34,45 m². Un dégagement mène à deux chambres de 9,60 m² et 9,39 m², une salle de bains avec fenêtre de 2,76 m², des WC indépendants ainsi qu'une buanderie de 5,59 m²pouvant parfaitement faire office de bureau et se prolongeant sur une loggia. L'appartement est en bon état général et dispose de menuiseries en PVC double vitrage. Le chauffage est collectif avec compteurs individuels, garantissant une meilleure maîtrise des consommations. Une cave est incluse. Le bien était précédemment loué, ce qui en fait également une opportunité intéressante pour un investissement locatif. A proximité immédiate, vous trouverez plusieurs établissements scolaires tels que le Groupe scolaire de Kerangoff, l'École Diwan Brest ainsi que le lycée Javouhey, sans oublier les espaces verts et parcs accessibles en quelques minutes. Cet appartement est une exclusivité de l'agence Barraine IMMO Brest ? Siam. Une opportunité idéale pour une résidence principale ou un investissement, dans un secteur recherché de Brest. (6.67 % honoraires TTC à la charge de l'acquéreur.) Copropriété de 62 lots - dont 51 lots habitation. (Pas de procédure en cours). Charges annuelles : 2624.94 euros.
Voir plus

Référence: SI00468-PDM
Bien en copropriété. Nombre de lots : 62. Charges de copropriété : 2624 €.
Honoraires d'agence de 6.67% à la charge de l'acquéreur
Barème des honoraires
DPE
A
B
C
D
E
F
G
GES
A
B
C
D
E
F
G

Prêt immobilier

Vous souhaitez connaître votre capacité d’emprunt et trouver le meilleur crédit immobilier ?
Réaliser une simulation gratuite

Appartement à BREST
Appartement à BREST
Appartement à BREST
Appartement à BREST
Appartement à BREST
Appartement à BREST
Appartement à BREST
Appartement à BREST
Appartement à BREST
Appartement à BREST
Appartement à BREST
Appartement à BREST
Appartement à BREST
Appartement à BREST
Appartement à BREST
Appartement à BREST
Appartement à BREST
Appartement à BREST
Appartement à BREST
Ce site est protégé par reCAPTCHA la Politique de confidentialité et les Conditions d’utilisation de Google s’appliquent.
Obtenir un prêt immobilier au meilleur taux ?

En poursuivant votre navigation sans modifier vos paramètres, vous acceptez l'utilisation de cookies susceptibles de réaliser des statistiques de visite. Cliquez ici pour plus d'informations