Bénéficiez des services de nos partenaires locaux soigneusement sélectionnés
pour vous accompagner dans votre parcours d'achat immobilier

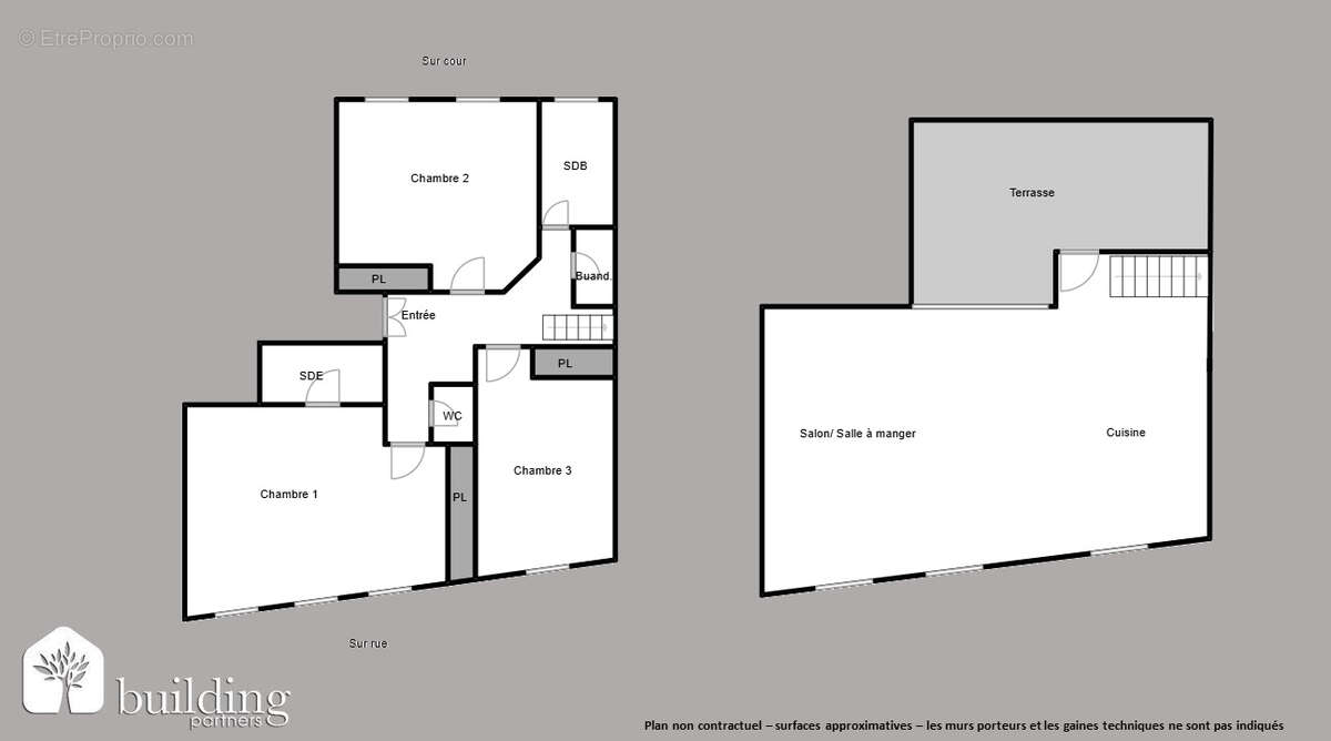
À vendre - levallois-perret - square edith-de-villepin - appartement 4 pièces de 118.54m² + terrasse de 22m²

— Levallois-Perret 92300 —
1 350 000 €
119 m²
4 pièces

Nos partenaires locaux
Idéalement situé à deux pas du Square Edith-de-Villepin à Levallois-Perret, BUILDING PARTNERS vous propose à la vente cet élégant duplex familial de 118,54 m², niché aux 2e et 3e étages d'un immeuble ancien de bon standing. Ce bien lumineux et plein de charme bénéficie d'un espace extérieur rare, idéal pour une vie de famille au calme, en plein coeur de la ville. Le premier niveau dessert trois chambres confortables, dont une suite parentale avec salle d'eau privative, une salle de bains et un espace buanderie. A l'étage supérieur, un vaste séjour avec cuisine ouverte aménagée et équipée offre un cadre de vie convivial, et s'ouvre sur une superbe terrasse de 22 m², parfaite pour profiter des beaux jours. Une cave vient compléter ce bien. Prix de vente : 1 350 000 euros honoraires inclus, à la charge du vendeur. Charges annuelles : 3 704 euros - DPE : D - Pas de procédure en cours. Ce duplex d'exception, alliant volumes, luminosité et extérieur, séduira les familles en quête d'un cadre de vie unique et raffiné à Levallois-Perret. N'hésitez pas à nous contacter pour plus d'informations ou organiser une visite. Les informations sur les risques auxquels ce bien est exposé sont disponibles sur le site Géorisques : www.georisques.gouv.fr Depuis 1993, BUILDING PARTNERS accompagne les propriétaires dans la vente de biens immobiliers de standing sur l'ouest parisien. Notre force ? Une organisation unique avec deux rôles experts : Les Brokers, spécialisés dans la prospection et la valorisation de votre bien. Les Sellers, experts en négociation et en mise en relation avec notre portefeuille d'acheteurs qualifiés. Avec 5 agences implantées au coeur des quartiers les plus recherchés (Paris 16ème, Paris 17ème, Neuilly, Levallois, Courbevoie), nous vous offrons une visibilité maximale, un accompagnement personnalisé et un engagement total jusqu'à la signature. Confiez-nous votre bien pour une vente rapide, au meilleur prix. Estimation offerte, confidentielle et sans engagement. Copropriété de 15 lots - dont 7 lots habitation. (Pas de procédure en cours). Charges annuelles : 3704 euros.
Voir plus

Référence: 17247
Bien en copropriété. Nombre de lots : 15. Charges de copropriété : 3704 €.
Honoraires à la charge du vendeur.
Barème des honoraires
DPE
A
B
C
D
E
F
G
GES
A
B
C
D
E
F
G

Prêt immobilier

Vous souhaitez connaître votre capacité d’emprunt et trouver le meilleur crédit immobilier ?
Réaliser une simulation gratuite

Appartement à LEVALLOIS-PERRET
Appartement à LEVALLOIS-PERRET
Appartement à LEVALLOIS-PERRET
Appartement à LEVALLOIS-PERRET
Appartement à LEVALLOIS-PERRET
Appartement à LEVALLOIS-PERRET
Appartement à LEVALLOIS-PERRET
Appartement à LEVALLOIS-PERRET
Appartement à LEVALLOIS-PERRET
Appartement à LEVALLOIS-PERRET
Appartement à LEVALLOIS-PERRET
Appartement à LEVALLOIS-PERRET
Appartement à LEVALLOIS-PERRET
Appartement à LEVALLOIS-PERRET
Appartement à LEVALLOIS-PERRET
Appartement à LEVALLOIS-PERRET
Appartement à LEVALLOIS-PERRET
Appartement à LEVALLOIS-PERRET
Ce site est protégé par reCAPTCHA la Politique de confidentialité et les Conditions d’utilisation de Google s’appliquent.
Obtenir un prêt immobilier au meilleur taux ?

En poursuivant votre navigation sans modifier vos paramètres, vous acceptez l'utilisation de cookies susceptibles de réaliser des statistiques de visite. Cliquez ici pour plus d'informations