Bénéficiez des services de nos partenaires locaux soigneusement sélectionnés
pour vous accompagner dans votre parcours d'achat immobilier

Levallois-perret - louise michel - 785 000 - 76m²

— Levallois-Perret 92300 —
785 000 €
76 m²
3 pièces
ascenseur

Nos partenaires locaux
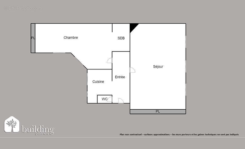
Idéalement situé à 4 minutes à pied du métro Louise Michel, dans un immeuble ancien avec ascenseur, BUILDING PARTNERS vous propose à la vente cet élégant appartement de 3 pièces, 76 m² (78 m² habitables) au 1er étage. Ce bien lumineux et plein de charme se compose d'une entrée, d'un grand double séjour exposé Sud-Ouest, d'une cuisine indépendante entièrement aménagée et équipée, d'une chambre avec salle de bains attenante, et de WC séparés. L'appartement séduit par ses beaux volumes (hauteur sous plafond de 3 mètres) et tout le cachet de l'ancien : moulures, parquet point de Hongrie, et grandes fenêtres. Il offre la possibilité de créer une seconde chambre, selon vos besoins. Une cave complète ce bien. Prix de vente : 785 000 euros honoraires inclus, à la charge du vendeur. Charges annuelles : 1 954 euros - DPE : D - Pas de procédure en cours. Ce bien rare à la vente séduira une clientèle en quête de charme et d'authenticité, au sein d'un quartier recherché et dynamique de Levallois. N'hésitez pas à nous contacter pour plus d'informations ou organiser une visite. La vente d'un bien immobilier n'est pas la fin de quelque chose. Au contraire, c'est le début d'une nouvelle histoire. Et pour que cette histoire soit belle, il faut qu'elle commence bien. Voilà la mission de nos équipes. Créé en 1993, le groupe BUILDING PARTNERS offre le savoir-faire et l'accompagnement des plus prestigieuses agences traditionnelles, tout en proposant les outils digitaux les plus performants pour assurer une vente rapide et au meilleur prix. Pour cela, nous avons développé une gamme complète de services sur mesure : deux photographes et un vidéaste professionnel, la réalisation de plans, la visite virtuelle en 3D, le home-staging, la communication ciblée ou encore le off-market. En quelques chiffres, BUILDING PARTNERS, c'est 100 nouveaux biens à vendre chaque mois et 300 ventes par an ! Copropriété de 2 lots - dont 1 lots habitation. (Pas de procédure en cours). Charges annuelles : 1954 euros.
Voir plus

Bien en copropriété. Nombre de lots : 2. Charges de copropriété : 1954 €.
Honoraires à la charge du vendeur.
Barème des honoraires

Prêt immobilier

Vous souhaitez connaître votre capacité d’emprunt et trouver le meilleur crédit immobilier ?
Réaliser une simulation gratuite

Appartement à LEVALLOIS-PERRET
Appartement à LEVALLOIS-PERRET
Appartement à LEVALLOIS-PERRET
Appartement à LEVALLOIS-PERRET
Appartement à LEVALLOIS-PERRET
Appartement à LEVALLOIS-PERRET
Appartement à LEVALLOIS-PERRET
Appartement à LEVALLOIS-PERRET
Appartement à LEVALLOIS-PERRET
Appartement à LEVALLOIS-PERRET
Appartement à LEVALLOIS-PERRET
Appartement à LEVALLOIS-PERRET
Appartement à LEVALLOIS-PERRET
Appartement à LEVALLOIS-PERRET
Ce site est protégé par reCAPTCHA la Politique de confidentialité et les Conditions d’utilisation de Google s’appliquent.
Obtenir un prêt immobilier au meilleur taux ?

En poursuivant votre navigation sans modifier vos paramètres, vous acceptez l'utilisation de cookies susceptibles de réaliser des statistiques de visite. Cliquez ici pour plus d'informations