Maison 127m² à verchaix

— Verchaix 74440 —
599 000 €
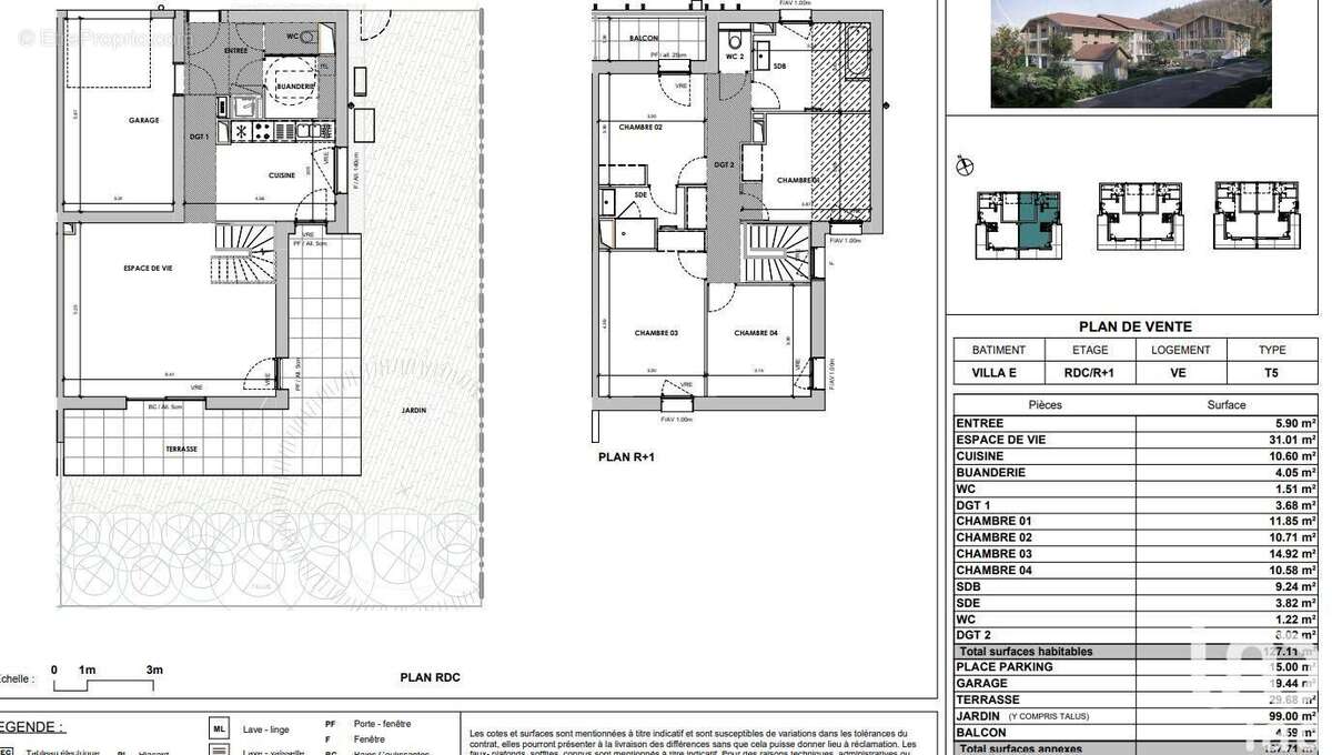
127 m² / 99 m²
5 pièces
parkingbalcon/terrassejardin

Iad France - Maanloumou Ahamadi ([Coordonnées masquées]) vous propose : Aux portes des montagnes, découvrez une villa neuve où chaque détail respire l'élégance et la sérénité.

Les volumes généreux et la lumière naturelle qui inonde les pièces créent une atmosphère unique, propice aux instants de partage comme aux moments de détente. Le séjour s'ouvre sur une large terrasse et un jardin intime, véritable prolongement de la maison vers l'extérieur.

L'étage, pensé comme un cocon familial, allie confort et raffinement, avec quatre chambres baignées de clarté, une salle de bain aux lignes contemporaines et une suite parentale qui inspire le calme et la douceur.

Alliance parfaite entre nature et modernité, cette villa vous offre le luxe d'un quotidien paisible, avec le confort d'un garage, d'un balcon et de prestations énergétiques dernière génération.

Arrêt de bus à 300 m, école maternelle et primaire dans la commune, cabinet médical à 600 m (Collège à Samoens avec transport scolaire, lycée à Cluses, commerces de proximité à Morillon à 3 min en voiture)

Ici, plus qu'une maison, c'est un art de vivre qui s'offre à vous.

Honoraires d'agence à la charge du vendeur. Bien non soumis au DPE. Les informations sur les risques auxquels ce bien est exposé sont disponibles sur le site Géorisques : www.georisques.gouv.fr. La présente annonce immobilière a été rédigée sous la responsabilité éditoriale de M. Maanloumou Ahamadi EI (ID 86601), mandataire indépendant en immobilier (sans détention de fonds), agent commercial de la SAS I@D France immatriculé au RSAC de CLERMONT-FERRAND sous le numéro 940940034, titulaire de la carte de démarchage immobilier pour le compte de la société I@D France SAS.
Retrouvez tous nos biens sur notre site internet. www.iadfrance.fr.
Informations LOI ALUR :
Honoraires charge vendeur. (gedeon_6727_31855420)
Voir plus

Référence: 1842043-1
Honoraires à la charge du vendeur.

Prêt immobilier

Vous souhaitez connaître votre capacité d’emprunt et trouver le meilleur crédit immobilier ?
Réaliser une simulation gratuite

Photo 1 - Maison à VERCHAIX
Photo 1
Photo 2 - Maison à VERCHAIX
Photo 2
Photo 3 - Maison à VERCHAIX
Photo 3
Photo 4 - Maison à VERCHAIX
Photo 4
Photo 5 - Maison à VERCHAIX
Photo 5
Ce site est protégé par reCAPTCHA la Politique de confidentialité et les Conditions d’utilisation de Google s’appliquent.
Obtenir un prêt immobilier au meilleur taux ?

En poursuivant votre navigation sans modifier vos paramètres, vous acceptez l'utilisation de cookies susceptibles de réaliser des statistiques de visite. Cliquez ici pour plus d'informations