Appartement 61m² à marly-la-ville

— Marly-La-Ville 95670 —
279 400 €
61 m²
3 pièces
parkingbalcon/terrasse

Iad France - Claudine Ferreira ([Coordonnées masquées]) vous propose : * DERNIERS LOTS DISPONIBLES ! *

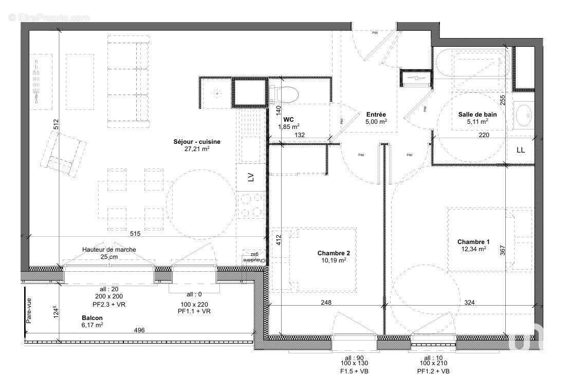
Charmant appartement 3 pièces de 61 m² environ à Marly-la-Ville (95)
Situé dans un cadre de vie unique aux portes de Paris, cet appartement se trouve à Marly-la-Ville, une commune dynamique du Val d'Oise, à moins de 30 km de la capitale.
Ce secteur bénéficie d'un emplacement stratégique : proche de l'aéroport Roissy-Charles de Gaulle et des zones économiques de Roissy, il est desservi par la Francilienne et l'autoroute A1, alliant qualité de vie et accessibilité.
Situé au 2 ? et dernier étage avec ascenseur, l'appartement offre une entrée, une belle pièce de vie lumineuse avec cuisine ouverte, 2 chambres, et une salle d'eau moderne avec WC.
Un balcon complète l'ensemble, idéal pour profiter des beaux jours.
Conforme aux normes RT2012 et PMR (personnes à mobilité réduite), il dispose de tout le confort moderne :
Accès sécurisé par interphone Intratone (gestion via smartphone)
Connexion internet via fibre optique (prises RJ45 dans chaque pièce)
Chauffage gaz de ville
Fenêtres double vitrage, volets roulants électriques dans le séjour
Deux places de parking privative en sous sol, accessible par portail électrique, sont incluses.
Idéal pour un primo-accédant ou un investisseur.
Frais de notaire réduit !

Honoraires d'agence à la charge du vendeur. Bien non soumis au DPE. Les informations sur les risques auxquels ce bien est exposé sont disponibles sur le site Géorisques : www.georisques.gouv.fr. La présente annonce immobilière a été rédigée sous la responsabilité éditoriale de Mlle Claudine Ferreira EI (ID 84781), mandataire indépendant en immobilier (sans détention de fonds), agent commercial de la SAS I@D France immatriculé au RSAC de COMPIEGNE sous le numéro 933905283, titulaire de la carte de démarchage immobilier pour le compte de la société I@D France SAS.
Retrouvez tous nos biens sur notre site internet. www.iadfrance.fr.
Informations LOI ALUR :
Honoraires charge vendeur. (gedeon_6727_32348287)
Voir plus

Référence: 1740764-4
Honoraires à la charge du vendeur.

Prêt immobilier

Vous souhaitez connaître votre capacité d’emprunt et trouver le meilleur crédit immobilier ?
Réaliser une simulation gratuite

Photo 1 - Appartement à MARLY-LA-VILLE
Photo 1
Photo 2 - Appartement à MARLY-LA-VILLE
Photo 2
Photo 3 - Appartement à MARLY-LA-VILLE
Photo 3
Photo 4 - Appartement à MARLY-LA-VILLE
Photo 4
Photo 5 - Appartement à MARLY-LA-VILLE
Photo 5
Photo 6 - Appartement à MARLY-LA-VILLE
Photo 6
Photo 7 - Appartement à MARLY-LA-VILLE
Photo 7
Photo 8 - Appartement à MARLY-LA-VILLE
Photo 8
Photo 9 - Appartement à MARLY-LA-VILLE
Photo 9
Ce site est protégé par reCAPTCHA la Politique de confidentialité et les Conditions d’utilisation de Google s’appliquent.
Obtenir un prêt immobilier au meilleur taux ?

En poursuivant votre navigation sans modifier vos paramètres, vous acceptez l'utilisation de cookies susceptibles de réaliser des statistiques de visite. Cliquez ici pour plus d'informations