Appartement 61m² à guilherand-granges

— Guilherand-Granges 07500 —
110 000 €
61 m²
3 pièces
balcon/terrasse

Iad France - Tanguy MARLHENS vous propose : T3 À RÉNOVER - GUILHERAND-GRANGES -

RDC surélevé avec un fort potentiel.
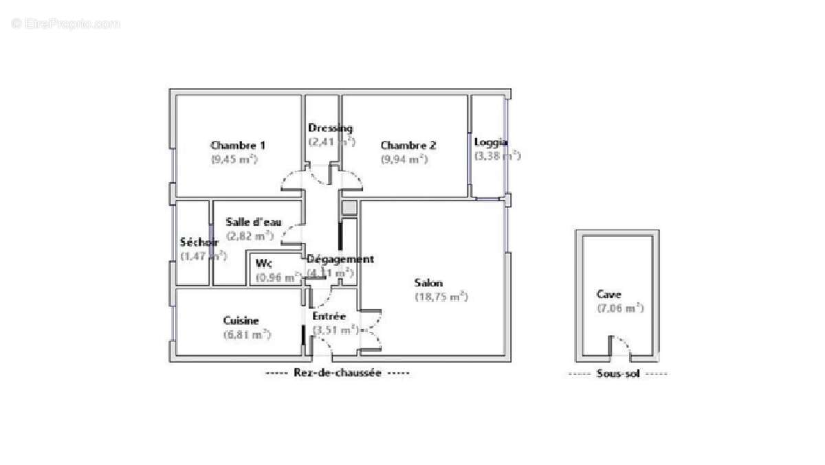
Appartement T3 de 60 m² : salon lumineux, cuisine indépendante, 2 chambres, dressing, salle d'eau, WC séparé et balcon.
Cave en sous-sol.

Travaux à prévoir - idéal projet perso ou investissement.
Proche commodités.

À visiter rapidement !

La presente annonce immobiliere vise 2 lots situés dans une copropriété de 600 lots au total et ne faisant l'objet d'aucune procédure en cours citée à l'article L. 721-1 du code de la construction et de l'habitation. Montant moyen mensuel de charges déclaré par le vendeur : 123.33¤ par mois (soit 1480 ¤ annuel). Honoraires d'agence à la charge du vendeur.
Information d'affichage énergétique sur ce bien : classe ENERGIE D indice 221 et classe CLIMAT D indice 31. Les informations sur les risques auxquels ce bien est exposé, y compris l'obligation légale de débroussaillement, sont disponibles sur le site Géorisques : http://www.georisques.gouv.fr.
La présente annonce immobilière a été rédigée sous la responsabilité éditoriale de M Tanguy MARLHENS mandataire indépendant en immobilier (sans détention de fonds), agent commercial de la SAS I@D France immatriculé au RSAC de ROMANS sous le numéro 812566891, titulaire de la carte de démarchage immobilier pour le compte de la société I@D France SAS.
Informations LOI ALUR :
Soumis au régime de copropriété.
Nombre de lots : 600.
Quote part annuelle(moyenne) : 1480 euros.
Honoraires charge vendeur. (gedeon_6727_32348554)
Voir plus

Référence: 1886998
Bien en copropriété. Nombre de lots : 600. Charges de copropriété : 1480 €.
Honoraires à la charge du vendeur.
DPE
A
B
C
D
E
F
G
GES
A
B
C
D
E
F
G

Prêt immobilier

Vous souhaitez connaître votre capacité d’emprunt et trouver le meilleur crédit immobilier ?
Réaliser une simulation gratuite

Photo 1 - Appartement à GUILHERAND-GRANGES
Photo 1
Photo 2 - Appartement à GUILHERAND-GRANGES
Photo 2
Photo 3 - Appartement à GUILHERAND-GRANGES
Photo 3
Photo 4 - Appartement à GUILHERAND-GRANGES
Photo 4
Photo 5 - Appartement à GUILHERAND-GRANGES
Photo 5
Photo 6 - Appartement à GUILHERAND-GRANGES
Photo 6
Photo 7 - Appartement à GUILHERAND-GRANGES
Photo 7
Photo 8 - Appartement à GUILHERAND-GRANGES
Photo 8
Photo 9 - Appartement à GUILHERAND-GRANGES
Photo 9
Ce site est protégé par reCAPTCHA la Politique de confidentialité et les Conditions d’utilisation de Google s’appliquent.
Obtenir un prêt immobilier au meilleur taux ?

En poursuivant votre navigation sans modifier vos paramètres, vous acceptez l'utilisation de cookies susceptibles de réaliser des statistiques de visite. Cliquez ici pour plus d'informations