Bénéficiez des services de nos partenaires locaux soigneusement sélectionnés
pour vous accompagner dans votre parcours d'achat immobilier

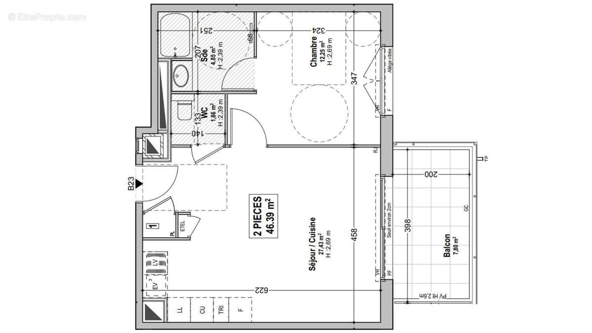
Appartement 46m² à marseille-8e

— Marseille-8e 13008 —
374 000 €
46 m²
2 pièces
parkingbalcon/terrasseascenseur

Nos partenaires locaux
Iad France - Pierre Magerand ([Coordonnées masquées]) vous propose : Appartement T2 avec balcon à Marseille.

Idéalement située boulevard Joseph Vernet, au cOEur du très prisé 8 ème arrondissement de Marseille, la résidence contemporaine L'Orée Borély conjugue élégance architecturale et qualité de vie préservée. À seulement quelques minutes du Parc Borély et des plages du Prado, cette adresse offre un cadre de vie verdoyant et apaisé. Disponible 2027.

Un appartement raffiné :
Situé au 1 er étage, cet appartement T2 de 46 m² environ habitables se prolonge par un balcon de 8 m² environ.

- Séjour / cuisine de 27 m² environ.
- Une chambre confortable.
- Salle d'eau moderne.
- Annexe incluse : un garage.

De belles prestations :
- Chauffage et rafraîchissement collectif par pompe à chaleur thermodynamique.
- Volets roulants motorisés et menuiseries aluminium.
- Résidence sécurisée avec ascenseur et visiophone.

L'art de vivre à Marseille 8 :
- À proximité immédiate du Parc Borély, du bord de mer et des plages du Prado.
- Commerces, écoles et transports accessibles à pied.
- Accès rapide à l'A50 et au centre-ville de Marseille.
- Quartier calme, résidentiel et verdoyant, prisé pour sa qualité de vie.

N'hésitez pas à me contacter pour plus d'informations ou pour un accompagnement sur mesure.

Honoraires d'agence à la charge du vendeur. Bien non soumis au DPE. Les informations sur les risques auxquels ce bien est exposé sont disponibles sur le site Géorisques : www.georisques.gouv.fr. La présente annonce immobilière a été rédigée sous la responsabilité éditoriale de M. Pierre Magerand EI (ID 86098), mandataire indépendant en immobilier (sans détention de fonds), agent commercial de la SAS I@D France immatriculé au RSAC de Cusset sous le numéro 938729175, titulaire de la carte de démarchage immobilier pour le compte de la société I@D France SAS.
Retrouvez tous nos biens sur notre site internet. www.iadfrance.fr.
Informations LOI ALUR :
Honoraires charge vendeur. (gedeon_6727_32348795)
Voir plus

Référence: 1908524-8
Honoraires à la charge du vendeur.

Prêt immobilier

Vous souhaitez connaître votre capacité d’emprunt et trouver le meilleur crédit immobilier ?
Réaliser une simulation gratuite

Photo 1 - Appartement à MARSEILLE-8E
Photo 1
Photo 2 - Appartement à MARSEILLE-8E
Photo 2
Photo 3 - Appartement à MARSEILLE-8E
Photo 3
Photo 4 - Appartement à MARSEILLE-8E
Photo 4
Photo 5 - Appartement à MARSEILLE-8E
Photo 5
Ce site est protégé par reCAPTCHA la Politique de confidentialité et les Conditions d’utilisation de Google s’appliquent.
Obtenir un prêt immobilier au meilleur taux ?

En poursuivant votre navigation sans modifier vos paramètres, vous acceptez l'utilisation de cookies susceptibles de réaliser des statistiques de visite. Cliquez ici pour plus d'informations