Appartement 56m² à corbeil-essonnes

— Corbeil-Essonnes 91100 —
148 000 €
56 m²
3 pièces
parkingbalcon/terrasse

Appartement T3 avec Vue Lac – Standing, Double Potentiel et Opportunité Investisseur
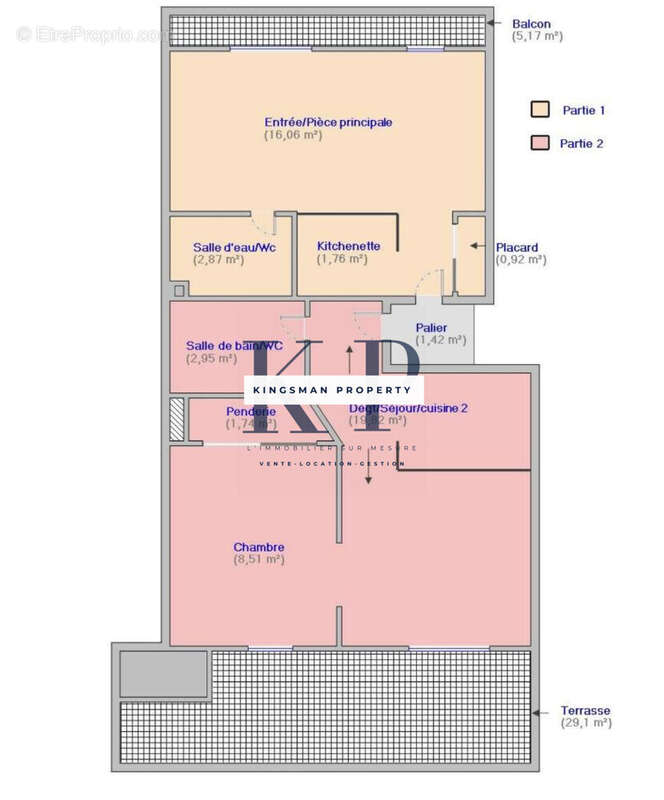
Découvrez ce bien rare au fort potentiel, composé actuellement de deux appartements distincts pouvant être réunis, offrant une flexibilité idéale pour un projet d'investissement ou une résidence principale sur mesure.

Situé au 1er étage d'un immeuble de standing de 3 étages, au sein d'une résidence sécurisée et en arrière-lot, ce bien développe une surface totale de 56 m². Il bénéficie d'un environnement calme et préservé, tout en restant proche de toutes les commodités.

L'ensemble se compose de deux chambres, d'une salle de bains lumineuse, et d'un séjour de 20 m² baigné de lumière, offrant une vue imprenable sur le lac. Les espaces extérieurs sont un véritable atout : un balcon de 5 m² et une spacieuse terrasse de 29 m², parfaits pour profiter pleinement des beaux jours.

La cuisine aménagée est fonctionnelle, tandis que l'état intérieur à rafraîchir laisse libre cours à vos envies d'aménagement, que ce soit pour une réunification des lots, une revente optimisée, ou un rendement locatif attractif.
Une place de parking complète ce bien.
Les parties communes sont en bon état, et l'appartement est éligible à la fibre, garantissant un confort de vie moderne.
Emplacement privilégié :
École élémentaire, commerces et restaurants à 5 minutes à pied
Maternelles et médecins généralistes à 10 minutes à pied
Parcs et jardins à 5 minutes en voiture
Hôpital à 10 minutes en voiture
Les + du bien :
Deux appartements séparés réunissables
Idéal investisseur ou projet patrimonial
Vue lac exceptionnelle
Grande terrasse
Résidence sécurisée, en arrière-lot
Calme et luminosité
Une opportunité rare pour un projet à forte valeur ajoutée.

Contactez-nous dès aujourd'hui pour organiser une visite et découvrir tout le potentiel de ce bien.

Honoraires inclus de 6.47% TTC à la charge de l'acquéreur. Prix hors honoraires 139 000 €. Dans une copropriété de 70 lots. Aucune procédure n'est en cours. Classe énergie E, Classe climat B Montant estimé des dépenses annuelles d'énergie pour un usage standard : entre 1192.00 € et 1615.00 € sur les années 2021, 2022 et 2023 (abonnements compris). Les informations sur les risques auxquels ce bien est exposé sont disponibles sur le site Géorisques : georisques.gouv.fr.
Voir plus

Référence: V1106-149000-01-KINGSMAN
Bien en copropriété. Nombre de lots : 70.
Honoraires d'agence de 6.47% à la charge de l'acquéreur
Barème des honoraires
DPE
A
B
C
D
E
F
G
GES
A
B
C
D
E
F
G

Prêt immobilier

Vous souhaitez connaître votre capacité d’emprunt et trouver le meilleur crédit immobilier ?
Réaliser une simulation gratuite

Appartement à CORBEIL-ESSONNES
Appartement à CORBEIL-ESSONNES
Appartement à CORBEIL-ESSONNES
Appartement à CORBEIL-ESSONNES
Appartement à CORBEIL-ESSONNES
Appartement à CORBEIL-ESSONNES
Appartement à CORBEIL-ESSONNES
Appartement à CORBEIL-ESSONNES
Ce site est protégé par reCAPTCHA la Politique de confidentialité et les Conditions d’utilisation de Google s’appliquent.
Obtenir un prêt immobilier au meilleur taux ?

En poursuivant votre navigation sans modifier vos paramètres, vous acceptez l'utilisation de cookies susceptibles de réaliser des statistiques de visite. Cliquez ici pour plus d'informations