Bénéficiez des services de nos partenaires locaux soigneusement sélectionnés
pour vous accompagner dans votre parcours d'achat immobilier

Vend t4 terrasse sans vis à vis joliette 13002

— Marseille-2e 13002 —
249 000 €
78 m²
4 pièces
parkingbalcon/terrasseascenseur

Nos partenaires locaux
**** OFFRE EN COURS ****
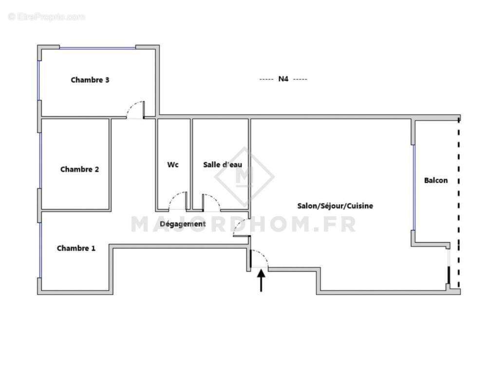
Idéalement situé au cœur du quartier prisé de la Joliette, cet appartement traversant de 76 m² offre un cadre de vie à la fois moderne et fonctionnel, à proximité immédiate de tous les transports et axes autoroutiers.

Nichée dans une résidence réputée et parfaitement entretenue avec concierge, cette adresse allie confort, sécurité et sérénité. L'espace de vie s'ouvre sur un salon-séjour lumineux de 30 m² avec sa cuisine équipée donnant sur une agréable terrasse de 10 m², idéale pour profiter des beaux jours.

Le coin nuit, bien séparé et tourné vers la cour intérieure, abrite trois chambres aux surfaces harmonieuses de 10,6 m², 9,45 m² et 13,5 m², ainsi qu'une salle d'eau de 3,9 m² et des WC indépendants. Le couloir offre de grands rangements qui complètent parfaitement la fonctionnalité du bien.

Les prestations sont de qualités avec climatisation réversible, double vitrage aluminium, volets électriques et store banne. Situé au quatrième étage d'un immeuble avec ascenseur, l'appartement bénéficie d'une excellente luminosité tout au long de la journée.

Des solutions de stationnement vous seront proposées .

Un bien élégant, idéal pour une vie urbaine confortable dans l'un des quartiers les plus dynamiques de Marseille.

Pour vous accompagner dans ce projet, vous bénéficiez de l'expertise de l'agence MAJORDHOM, représentée par un agent commercial titulaire de la carte professionnelle délivrée par la CCI.

En tant que professionnel de l'immobilier, MAJORDHOM s'engage à respecter scrupuleusement la loi Hoguet garantissant une transaction sécurisée et transparente. Les honoraires d'agence sont exclusivement à la charge du vendeur, un avantage non négligeable.

N'attendez plus pour découvrir ce bien. Rendez-vous sur Majordhom.fr pour une visite virtuelle haute définition, des plans détaillés et des photos supplémentaires. Et pour ne manquer aucune opportunité, contactez nous !

Consommation énergie primaire: entre 110 et 150 kWh/m²/an
Montant estimé des dépenses annuelles d'énergie pour un usage standard: entre 1000€ et 1420€

Informations sur les risques naturels et technologiques disponibles sur www.georisques.gouv.fr.
Voir plus

Référence: 6410L3
DPE
A
B
C
D
E
F
G
GES
A
B
C
D
E
F
G

Prêt immobilier

Vous souhaitez connaître votre capacité d’emprunt et trouver le meilleur crédit immobilier ?
Réaliser une simulation gratuite

Appartement à MARSEILLE-2E
Appartement à MARSEILLE-2E
Appartement à MARSEILLE-2E
Appartement à MARSEILLE-2E
Appartement à MARSEILLE-2E
Appartement à MARSEILLE-2E
Appartement à MARSEILLE-2E
Appartement à MARSEILLE-2E
Appartement à MARSEILLE-2E
Appartement à MARSEILLE-2E
Appartement à MARSEILLE-2E
Appartement à MARSEILLE-2E
Appartement à MARSEILLE-2E
Appartement à MARSEILLE-2E
Appartement à MARSEILLE-2E
Appartement à MARSEILLE-2E
Ce site est protégé par reCAPTCHA la Politique de confidentialité et les Conditions d’utilisation de Google s’appliquent.
Obtenir un prêt immobilier au meilleur taux ?

En poursuivant votre navigation sans modifier vos paramètres, vous acceptez l'utilisation de cookies susceptibles de réaliser des statistiques de visite. Cliquez ici pour plus d'informations