Bénéficiez des services de nos partenaires locaux soigneusement sélectionnés
pour vous accompagner dans votre parcours d'achat immobilier

Fermette entierement renovee beau potentiel

— Tremblay-Les-Villages 28170 —
263 750 €
160 m² / 886 m²
5 pièces
parking

Nos partenaires locaux
Située entre Chartres et Dreux, au cœur d'un hameau paisible à la campagne tout en restant à proximité immédiate de Tremblay-les-Villages, cette propriété bénéficie d'un environnement calme et verdoyant.
Le ramassage scolaire est assuré sur place : écoles maternelle et primaire à Tremblay-les-Villages, collège à Châteauneuf-en-Thymerais, et lycées à Dreux ou Chartres.

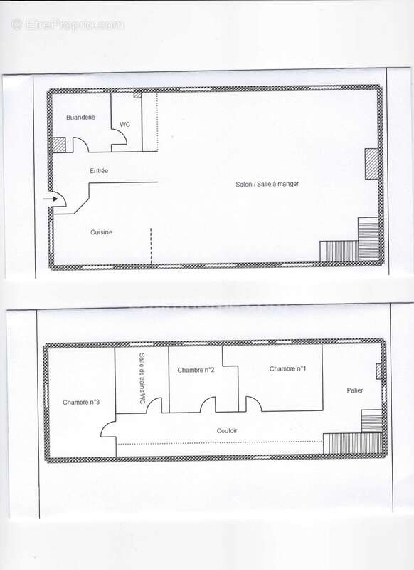
Cette ancienne fermette du XVIIIᵉ siècle, entièrement rénovée avec goût, développe une belle surface habitable d'environ 160 m².

Elle propose un spacieux salon-séjour de 70 m² agrémenté d'une cheminée avec insert. Cette pièce traversante, lumineuse, offre un accès direct à la terrasse et au jardin, avec une agréable exposition est / ouest.
La cuisine ouverte, aménagée et équipée, dispose d'un espace repas convivial. Un cellier ainsi que des toilettes indépendantes complètent le rez-de-chaussée.

À l'étage, une grande pièce palière permet la création aisée d'une quatrième chambre (simple cloison à prévoir). L'espace nuit comprend également trois belles chambres mansardées offrant des surfaces comprises entre 9 et 20 m², ainsi qu'une vaste salle de bains avec douche et toilettes.

La décoration est soignée, actuelle et harmonieuse.
Les menuiseries sont en PVC double vitrage imitation bois. Pompe à chaleur air/air récente. L'étage est équipé de radiateurs électriques.

Les dépendances et extérieurs ne sont pas en reste avec un garage de 50 m², permettant le stationnement d'un véhicule, ainsi qu'une piscine semi-enterrée en bois.
La toiture en ardoise, refaite en 2004, assure une excellente pérennité du bâti.

L'ensemble est implanté sur un terrain clos, paysagé et arboré de 886 m², sans aucun vis-à-vis.

Belles prestations – Aucun travaux à prévoir – Coup de cœur assuré Les honoraires sont à la charge du vendeur.
Les informations sur les risques auxquels ce bien est exposé sont disponibles sur le site Géorisques : www. georisques. gouv. fr.

Contactez Catherine GODET Entrepreneur Individuel, Agent commercial OptimHome (RSAC N°821 073 392 Greffe de CHARTRES) [Coordonnées masquées] (réf. 598702 )
Voir plus

Référence: 830039855961
Honoraires à la charge du vendeur.
DPE
A
B
C
D
E
F
G
GES
A
B
C
D
E
F
G

Prêt immobilier

Vous souhaitez connaître votre capacité d’emprunt et trouver le meilleur crédit immobilier ?
Réaliser une simulation gratuite

Maison à TREMBLAY-LES-VILLAGES
Maison à TREMBLAY-LES-VILLAGES
Maison à TREMBLAY-LES-VILLAGES
Maison à TREMBLAY-LES-VILLAGES
Maison à TREMBLAY-LES-VILLAGES
Maison à TREMBLAY-LES-VILLAGES
Maison à TREMBLAY-LES-VILLAGES
Maison à TREMBLAY-LES-VILLAGES
Maison à TREMBLAY-LES-VILLAGES
Maison à TREMBLAY-LES-VILLAGES
Maison à TREMBLAY-LES-VILLAGES
Maison à TREMBLAY-LES-VILLAGES
Maison à TREMBLAY-LES-VILLAGES
Maison à TREMBLAY-LES-VILLAGES
Maison à TREMBLAY-LES-VILLAGES
Maison à TREMBLAY-LES-VILLAGES
Ce site est protégé par reCAPTCHA la Politique de confidentialité et les Conditions d’utilisation de Google s’appliquent.
Obtenir un prêt immobilier au meilleur taux ?

En poursuivant votre navigation sans modifier vos paramètres, vous acceptez l'utilisation de cookies susceptibles de réaliser des statistiques de visite. Cliquez ici pour plus d'informations