Bénéficiez des services de nos partenaires locaux soigneusement sélectionnés
pour vous accompagner dans votre parcours d'achat immobilier

Propriété de caractère – vie de plain-pied possible - etang, ruisseau et forêt

— Landivisiau 29400 —
549 900 €
223 m² / 16 000 m²
8 pièces

Nos partenaires locaux
Aux portes de Landivisiau, cette demeure du XIXe siècle et sa longère offrent un cadre naturel exceptionnel sur plus de 1,6 hectare.
Un environnement paisible, tout en restant proche de toutes les commodités.

Rez-de-chaussée :
Grande pièce de vie traversante avec séjour, salon et cuisine ouverte donnant sur la terrasse
Second salon aux beaux volumes pouvant être modifié en suite parentale
Bureau
Buanderie
WC invités

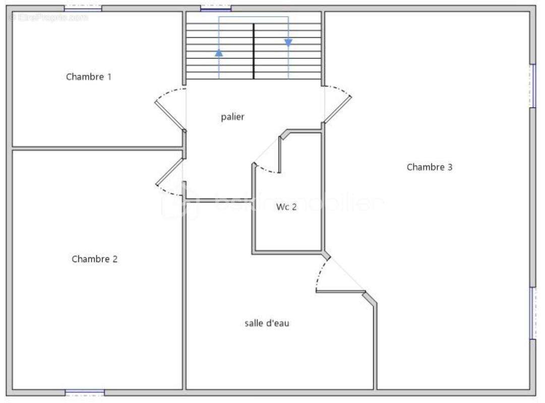
1er étage :
Chambre parentale avec salle d'eau
2 chambres
WC

2e étage :
3 chambres
Salle d'eau avec WC

Sur la parcelle :
Garage
Serre
Potager
Un parc de 1,6 hectare, riche en surprises et en charme naturel

Le tout forme une propriété rare, idéale pour une grande famille ou un projet d'accueil, offrant calme, nature et accessibilité immédiate.

Cette annonce référence 315287 vous est présentée par votre agent commercial BSK Immobilier GWENDAL LE NY (EI) immatriculé au RSAC de RENNES (35000) sous le numéro 89144798900023.

Prix du bien : 549 900,00 €
Les honoraires d'agence sont à la charge du vendeur.

A propos des performances énergétiques :
Date de réalisation du diagnostic énergétique : 24/03/2025
Score DPE : 195 kWhEP/m²/an
Score GES : 45 kgepCO2/m²/an
Montant estimé des dépenses annuelles d'énergie pour un usage standard : entre 4480.00 € et 6120.00 € par an. Prix moyens des énergies indexés sur l'année 2021 (abonnements compris).

Les informations sur les risques auxquels ce bien est exposé sont disponibles sur le site Géorisques : www.georisques.gouv.fr
Voir plus

Référence: 315287
Honoraires à la charge du vendeur.
DPE
A
B
C
D
E
F
G
GES
A
B
C
D
E
F
G

Prêt immobilier

Vous souhaitez connaître votre capacité d’emprunt et trouver le meilleur crédit immobilier ?
Réaliser une simulation gratuite

Maison à LANDIVISIAU
Maison à LANDIVISIAU
Maison à LANDIVISIAU
Maison à LANDIVISIAU
Maison à LANDIVISIAU
Maison à LANDIVISIAU
Maison à LANDIVISIAU
Maison à LANDIVISIAU
Maison à LANDIVISIAU
Maison à LANDIVISIAU
Maison à LANDIVISIAU
Maison à LANDIVISIAU
Maison à LANDIVISIAU
Maison à LANDIVISIAU
Maison à LANDIVISIAU
Maison à LANDIVISIAU
Maison à LANDIVISIAU
Maison à LANDIVISIAU
Maison à LANDIVISIAU
Maison à LANDIVISIAU
Ce site est protégé par reCAPTCHA la Politique de confidentialité et les Conditions d’utilisation de Google s’appliquent.
Obtenir un prêt immobilier au meilleur taux ?

En poursuivant votre navigation sans modifier vos paramètres, vous acceptez l'utilisation de cookies susceptibles de réaliser des statistiques de visite. Cliquez ici pour plus d'informations