Bénéficiez des services de nos partenaires locaux soigneusement sélectionnés
pour vous accompagner dans votre parcours d'achat immobilier

Maison 258m² à cavaillon

— Cavaillon 84300 —
343 000 €
258 m² / 800 m²
4 pièces
jardinpiscine

Nos partenaires locaux
Mas provençal de caractère à fort potentiel – 258m² sur 800m² de terrain en Centre-ville de Cavaillon (84300)

Situé en plein centre-ville de Cavaillon, ce mas provençal authentique constitue une opportunité rare et recherchée, tant pour un investisseur que pour un projet de résidence principale de caractère.
Implanté sur un terrain clos et paysager de 800 m², ce bien d'exception se distingue par ses volumes généreux, très rares en cœur de ville, et par son potentiel de valorisation remarquable après rénovation complète .

Une demeure ancienne au charme préservé, à réinventer

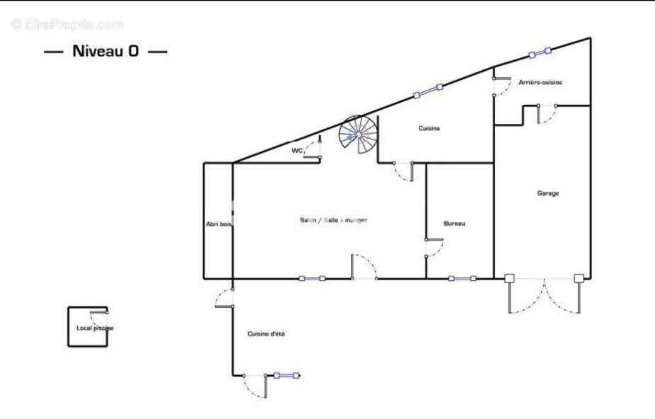
Édifié sur deux niveaux, le mas offre une surface principale chaleureuse, conservant le cachet des bâtisses d'époque.

Au rez-de-chaussée :

Un séjour de 37 m² avec cheminée

Une cuisine équipée

Une arrière-cuisine

Une chambre de 14 m²

Toilettes indépendantes

À l'étage :

Deux chambres de 13 m² et 22 m²

Une salle d'eau avec douche à l'italienne et WC

L'ensemble nécessite une rénovation totale, permettant de repenser les espaces et d'exploiter pleinement le fort potentiel architectural du mas.

Dépendances : un potentiel d'aménagement exceptionnel

Les dépendances de 124 m² constituent un véritable atout pour ce bien rare :

Grenier de 68 m² : idéal pour créer chambres supplémentaires, suite parentale, bureau ou espace loisirs

Garage de 40 m² : atelier, salle de sport, stockage ou aménagement complémentaire

Surface totale exploitable : 258 m², offrant une liberté d'aménagement totale, idéale pour un projet patrimonial ou familial ambitieux.

Un extérieur privilégié en centre-ville

Le jardin méditerranéen, entièrement clos et arboré, offre un cadre paisible et verdoyant, rare à Cavaillon.

Piscine enterrée 8 x 4 m

Terrasse avec pergola, cuisine d'été et barbecue

Jardin paysager parfaitement entretenu

Un véritable havre de paix en plein cœur urbain, propice à la détente et à la convivialité.

Équipements existants

Climatisation

Arrosage automatique

Forage

Sonnette

Jardin paysager

Piscine

Un bien d'exception à fort potentiel à Cavaillon

Alliant authenticité, grandes surfaces et emplacement premium en centre-ville, ce mas provençal représente une opportunité rare, idéale pour les investisseurs avertis ou les amateurs de demeures de caractère à rénover entièrement.

Mas à rénover – Centre-ville de Cavaillon – Grand terrain – Fort potentiel

Une visite s'impose pour apprécier le cachet unique et les nombreuses possibilités qu'offre cette propriété d'exception.

Taxe Foncière 3 600 € / an
Les informations sur les risques auxquels ce bien est exposé sont disponibles sur le site Georisque : georisques. gouv. fr
Cédric CNIAMIS - EI - est Agent Commercial mandataire en immobilier, immatriculé au Registre Spécial des Agents Commerciaux du Tribunal de Commerce de Marseille 6e Arrondissement sous le n°530503531.
Siège social du mandant : effiCity, 48 avenue de Villiers - 75017 PARIS - Société par Actions Simplifiée, société au capital de 132 373,05 euros, immatriculée au RCS Paris 497 617 746 et titulaire de la Carte professionnelle CPI 75[Coordonnées masquées]02 025 - CCI Paris IDF - Caisse de Garantie : GALIAN Assurances 89 rue de la Boétie 75008 Paris
Voir plus

Référence: 201778
Honoraires à la charge du vendeur.
Barème des honoraires
DPE
A
B
C
D
E
F
G
GES
A
B
C
D
E
F
G

Prêt immobilier

Vous souhaitez connaître votre capacité d’emprunt et trouver le meilleur crédit immobilier ?
Réaliser une simulation gratuite

Maison à CAVAILLON
Maison à CAVAILLON
Maison à CAVAILLON
Maison à CAVAILLON
Maison à CAVAILLON
Maison à CAVAILLON
Maison à CAVAILLON
Maison à CAVAILLON
Maison à CAVAILLON
Maison à CAVAILLON
Maison à CAVAILLON
Maison à CAVAILLON
Maison à CAVAILLON
Maison à CAVAILLON
Ce site est protégé par reCAPTCHA la Politique de confidentialité et les Conditions d’utilisation de Google s’appliquent.
Obtenir un prêt immobilier au meilleur taux ?

En poursuivant votre navigation sans modifier vos paramètres, vous acceptez l'utilisation de cookies susceptibles de réaliser des statistiques de visite. Cliquez ici pour plus d'informations