Bénéficiez des services de nos partenaires locaux soigneusement sélectionnés
pour vous accompagner dans votre parcours d'achat immobilier

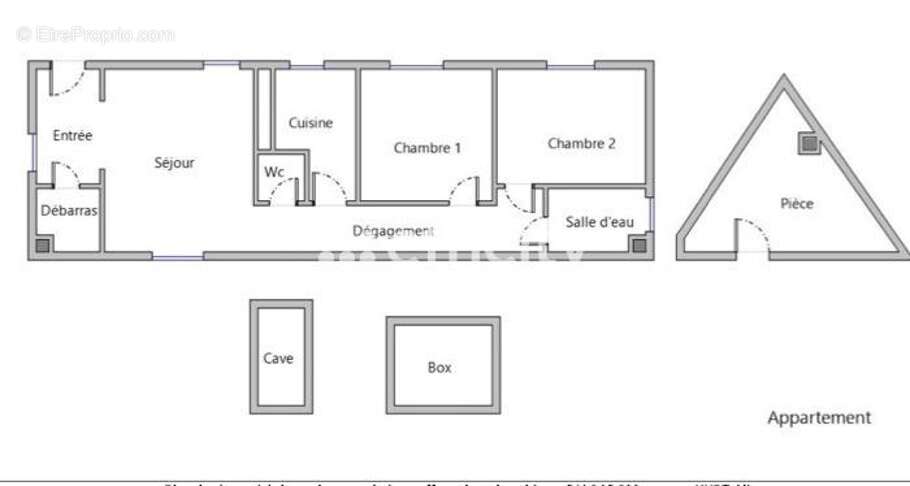
Appartement

— Le Raincy 93340 —
280 000 €
67 m²
3 pièces
parking

Nos partenaires locaux
93340 - LE RAINCY - CENTRE-VILLE - APPARTEMENT - F3 - 2 CHAMBRES - 67,1 M² - BEAUX VOLUMES - BELLE HAUTEUR SOUS PLAFOND - TRANSPORTS - CALME - BOX - CAVE - IDEAL FAMILLE

effiCity, l'agence qui estime votre bien en ligne, vous propose cet appartement situé en plein cœur du centre-ville du Raincy, à proximité immédiate des commerces, des écoles et des transports en commun, offrant ainsi un cadre de vie pratique et agréable.

Niché au 3ème étage d'un immeuble construit dans les années 1930 sans ascenseur, ce charmant F3 de 67,1 m² vous séduira par ses beaux volumes et sa belle hauteur sous plafond qui apportent une sensation d'espace et de luminosité. L'appartement se compose d'un séjour spacieux de 20,2 m², de deux chambres confortables, d'une cuisine équipée, d'une pièce supplémentaire sous comble, idéale pour un bureau ou une chambre d'appoint, et d'une salle d'eau. De plus, vous bénéficierez d'un box pour stationner votre véhicule en toute sécurité ainsi que d'une cave pour du rangement supplémentaire.

Situé dans un environnement calme, cet appartement offre un cadre de vie paisible et familial. Son exposition est vous garantit une luminosité optimale tout au long de la journée. L'état général de l'électricité, de la plomberie et de la façade est bon, assurant ainsi un confort au quotidien.

Ne manquez pas l'opportunité de visiter ce bien d'exception au Raincy. Contactez-moi dès maintenant pour organiser une visite et laissez-vous séduire par le charme et le potentiel de ce bel appartement.
Les informations sur les risques auxquels ce bien est exposé sont disponibles sur le site Georisque : georisques. gouv. fr
Gwendoline Tuffier - EI - est Agent Commercial mandataire en immobilier, immatriculé au Registre Spécial des Agents Commerciaux du Tribunal de Commerce de Bobigny sous le n°844889568.
Siège social du mandant : effiCity, 48 avenue de Villiers - 75017 PARIS - Société par Actions Simplifiée, société au capital de 132 373,05 euros, immatriculée au RCS Paris 497 617 746 et titulaire de la Carte professionnelle CPI 75[Coordonnées masquées]02 025 - CCI Paris IDF - Caisse de Garantie : GALIAN Assurances 89 rue de la Boétie 75008 Paris
Voir plus

Référence: 189101
Bien en copropriété. Nombre de lots : 15. Charges de copropriété : 200 €.
Honoraires à la charge du vendeur.
Barème des honoraires
DPE
A
B
C
D
E
F
G
GES
A
B
C
D
E
F
G

Prêt immobilier

Vous souhaitez connaître votre capacité d’emprunt et trouver le meilleur crédit immobilier ?
Réaliser une simulation gratuite

Appartement à LE RAINCY
Appartement à LE RAINCY
Appartement à LE RAINCY
Appartement à LE RAINCY
Appartement à LE RAINCY
Appartement à LE RAINCY
Appartement à LE RAINCY
Appartement à LE RAINCY
Appartement à LE RAINCY
Ce site est protégé par reCAPTCHA la Politique de confidentialité et les Conditions d’utilisation de Google s’appliquent.
Obtenir un prêt immobilier au meilleur taux ?

En poursuivant votre navigation sans modifier vos paramètres, vous acceptez l'utilisation de cookies susceptibles de réaliser des statistiques de visite. Cliquez ici pour plus d'informations