Bénéficiez des services de nos partenaires locaux soigneusement sélectionnés
pour vous accompagner dans votre parcours d'achat immobilier

Toulouse 31500 maison toulousaine à rénover sur 626 m2, fort potentiel

— Toulouse 31500 —
280 000 €
74 m² / 626 m²
3 pièces
parkingjardin

Nos partenaires locaux
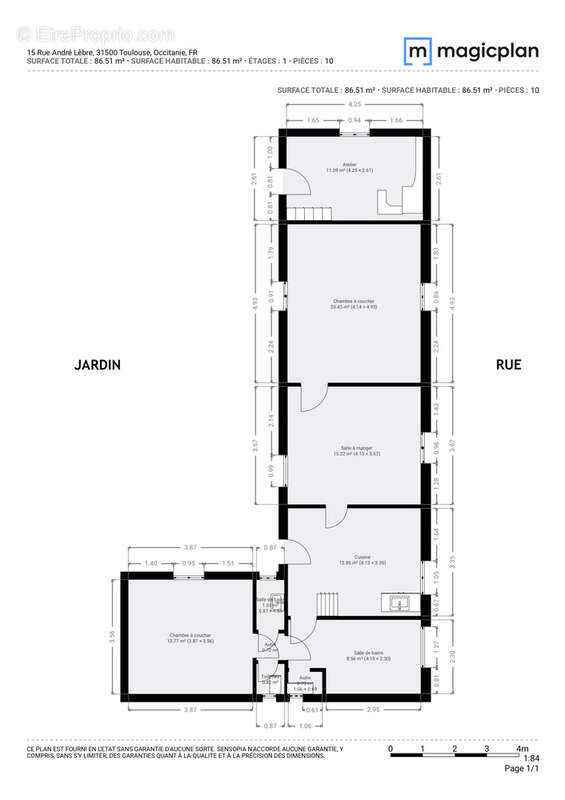
L’agence Légapôle Immobilier vous propose en exclusivité cette maison toulousaine située rue André Lèbre, dans un secteur résidentiel recherché de Toulouse (31500).
Implantée sur une parcelle de 626 m2, cette maison développe une surface habitable de 74 m2, complétée par plusieurs dépendances offrant un fort potentiel d’aménagement.
 Descriptif des surfaces


Maison principale : 74 m2 5 pièces


Chaufferie : 7,72 m2


Atelier : 11 m2


Garage : 17 m2


 Extérieurs
Le jardin constitue un véritable écrin de verdure, rare en milieu urbain, offrant calme, intimité et de nombreuses possibilités de projet (extension, construction complémentaire, division…).
Potentiel & urbanisme


Bien à rénover intégralement


Division foncière possible ( autorisations en cours)


Compteurs eau, gaz et électricité existants


Zonage PLUi-H : UM6-3.9-L-40-35


Zonage PLU : UM1


À qui s’adresse ce bien ?


Acquéreurs en quête d’un projet de rénovation


Investisseurs 


Familles souhaitant créer une maison sur mesure avec jardin


Projet de construction ou division dans un secteur tendu


Produit rare sur le marché toulousain, à visiter sans tarder.Contactez-nous pour plus d’informations ou organiser une visite.
Voir plus

Référence: 812
Honoraires à la charge du vendeur.
Barème des honoraires
DPE
A
B
C
D
E
F
G
GES
A
B
C
D
E
F
G

Prêt immobilier

Vous souhaitez connaître votre capacité d’emprunt et trouver le meilleur crédit immobilier ?
Réaliser une simulation gratuite

Maison à TOULOUSE
Maison à TOULOUSE
Maison à TOULOUSE
Maison à TOULOUSE
Maison à TOULOUSE
Maison à TOULOUSE
Maison à TOULOUSE
Maison à TOULOUSE
Maison à TOULOUSE
Maison à TOULOUSE
Maison à TOULOUSE
Maison à TOULOUSE
Maison à TOULOUSE
Maison à TOULOUSE
Maison à TOULOUSE
Maison à TOULOUSE
Maison à TOULOUSE
Maison à TOULOUSE
Maison à TOULOUSE
Maison à TOULOUSE
Maison à TOULOUSE
Maison à TOULOUSE
Maison à TOULOUSE
Ce site est protégé par reCAPTCHA la Politique de confidentialité et les Conditions d’utilisation de Google s’appliquent.
Obtenir un prêt immobilier au meilleur taux ?

En poursuivant votre navigation sans modifier vos paramètres, vous acceptez l'utilisation de cookies susceptibles de réaliser des statistiques de visite. Cliquez ici pour plus d'informations