Bénéficiez des services de nos partenaires locaux soigneusement sélectionnés
pour vous accompagner dans votre parcours d'achat immobilier

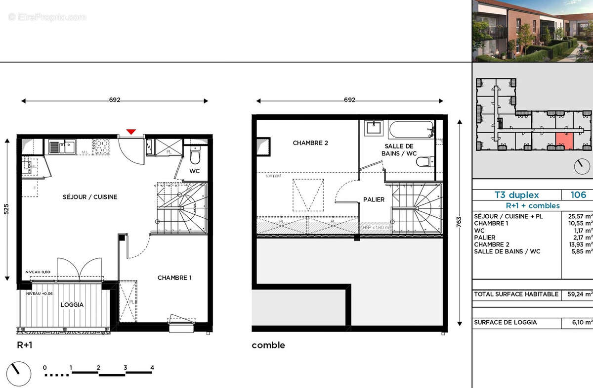
Neuf - duplex t3 de 60m2 au 1er et dernier étage avec terrasse et parking

— Eaunes 31600 —
228 600 €
60 m²
3 pièces
parkingbalcon/terrasse

Nos partenaires locaux
NEUF - Duplex T3 de 60m2 au 1er et dernier étage avec terrasse et parking

À seulement 23 minutes de Toulouse et 9 minutes de Muret, venez découvrir ce magnifique appartement neuf, achevé en 2024, offrant 60 m2 de confort moderne, à seulement 6 minutes à pied du centre-ville d'Eaunes.
Niché au premier et dernier étage d’un charmant petit immeuble, ce duplex d’exception, conçu avec des matériaux haut de gamme, séduit par son agencement fonctionnel et élégant. Il s’ouvre sur un vaste et lumineux séjour triple de 26m2, prolongé par une belle loggia spacieuse, orientée Nord-Ouest. Une première chambre avec placard, un WC indépendant complètent ce niveau.
À l’étage, vous profiterez d'une seconde chambre dotée de rangements intégrés ainsi qu’une généreuse salle de bain équipée d’un WC.
En plus de ses prestations raffinées, cet appartement dispose de deux places de stationnement aériennes privatives.
La résidence, intime et sécurisée, se compose de seulement 17 lots et offre un local à vélos pour un quotidien facilité. Ne manquez pas l’occasion de visiter ce dernier bien disponible de cette récente copropriété.
Voir plus

Bien en copropriété.
Honoraires d'agence de 7% à la charge de l'acquéreur
DPE
A
B
C
D
E
F
G
GES
A
B
C
D
E
F
G

Prêt immobilier

Vous souhaitez connaître votre capacité d’emprunt et trouver le meilleur crédit immobilier ?
Réaliser une simulation gratuite

Maison à EAUNES
Maison à EAUNES
Maison à EAUNES
Maison à EAUNES
Maison à EAUNES
Maison à EAUNES
Maison à EAUNES
Maison à EAUNES
Maison à EAUNES
Ce site est protégé par reCAPTCHA la Politique de confidentialité et les Conditions d’utilisation de Google s’appliquent.
Obtenir un prêt immobilier au meilleur taux ?

En poursuivant votre navigation sans modifier vos paramètres, vous acceptez l'utilisation de cookies susceptibles de réaliser des statistiques de visite. Cliquez ici pour plus d'informations