Bénéficiez des services de nos partenaires locaux soigneusement sélectionnés
pour vous accompagner dans votre parcours d'achat immobilier

Maison 128m² à mondonville

— Mondonville 31700 —
375 000 €
129 m² / 363 m²
5 pièces
balcon/terrassejardin

Nos partenaires locaux
Anna Morra vous propose à la vente, sur la commune de Mondonville, idéalement située entre Pibrac, Mondonville et Cornebarrieu, dans un secteur calme, cette maison pleine de charme en cours de rénovation totale, exposée Sud-Est.

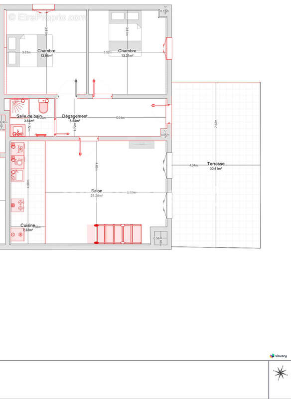
Issue de la division d'une ancienne bâtisse, cette maison T5 d'environ 128m2 sur deux niveaux mitoyenne par l'arrière, allie le cachet de l'ancien et le confort du neuf.

Elle se compose, au rez-de-chaussée, d'une entrée sur dégagement, d'une salle d'eau avec WC, de deux chambres de plus de 13 m², ainsi que d'une pièce de vie de plus de 25 m² avec cuisine US aménagée, donnant accès à une terrasse d'environ 30 m² et au jardin.

Un escalier dessert une mezzanine d'environ 20 m², en vide sur séjour, avec châssis fixes offrant une vue sur le jardin.
L'étage se compose d'une seconde salle d'eau avec WC, d'un dressing, et de deux chambres d'environ 12 m².

La maison est entièrement rénovée (travaux en cours livraison MARS 2026) :
toiture neuve, micro-station neuve, isolation neuve, électricité neuve, parquet au sol.
Les fenêtres sont en double vitrage PVC gris anthracite.
Le chauffage sera assuré par une pompe à chaleur et la production d'eau chaude par cumulus.
La façade sera en crépi repeint, et à l'intérieur quelques poteaux en brique apportent du caractère à l'espace.

Expo SUD-EST
Un DPE sera réalisé en fin de travaux, avec une performance énergétique estimée en classe B ou C.

Le bien est implanté sur une parcelle de 363 m², idéale pour profiter d'un extérieur agréable.


Me contacter pour plus de renseignements au [Coordonnées masquées].
Cette annonce immobilière a été rédigée par l'agent commercial WEELODGE Anna MORRA, immatriculée au RSAC de Toulouse sous le n° 825 216 229, titulaire de la carte de démarchage immobilier pour le compte de la société WEELODGE CENTER.


À voir sans tarder.

Honoraires à la charge du vendeur. Non soumis au DPE. Les informations sur les risques auxquels ce bien est exposé sont disponibles sur le site Géorisques : georisques.gouv.fr.

Votre conseiller WEELODGE CENTER : Agent Weeler - Anna MORRA
Voir plus

Référence: VM27985-WEELODGE
Honoraires à la charge du vendeur.
Barème des honoraires

Prêt immobilier

Vous souhaitez connaître votre capacité d’emprunt et trouver le meilleur crédit immobilier ?
Réaliser une simulation gratuite

Maison à MONDONVILLE
Maison à MONDONVILLE
Maison à MONDONVILLE
Ce site est protégé par reCAPTCHA la Politique de confidentialité et les Conditions d’utilisation de Google s’appliquent.
Obtenir un prêt immobilier au meilleur taux ?

En poursuivant votre navigation sans modifier vos paramètres, vous acceptez l'utilisation de cookies susceptibles de réaliser des statistiques de visite. Cliquez ici pour plus d'informations