Bénéficiez des services de nos partenaires locaux soigneusement sélectionnés
pour vous accompagner dans votre parcours d'achat immobilier

Rue allard- saint mande / appartement f02 avec extérieur -parking + cave

— Saint-Mande 94160 —
510 000 €
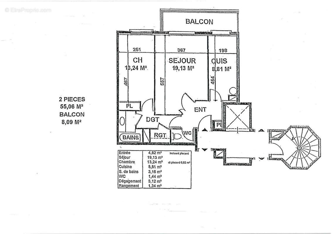
57 m²
2 pièces
parkingbalcon/terrasseascenseur

Nos partenaires locaux
Votre agence L'Adresse Voltaire est ravie de vous présenter un appartement coup de coeur, alliant charme contemporain, douceur de vivre et emplacement recherché. Niché au 1er étage d'une résidence récente de bon standing avec ascenseur, ce bien de 56,53 m² pondérés (54,17 m² Carrez) offre un cadre où confort et sérénité se rencontrent naturellement. Une invitation à la lumière et au bien-être. Dès les premiers pas, des rangements intégrés instaurent une atmosphère soignée et fonctionnelle. Le séjour de 19 m², tourné vers le sud, profite d'un bel apport de lumière. Il s'ouvre sur un large balcon généreux, offrant une vue apaisante sur la verdure. Un refuge lumineux, parfait pour savourer un café au soleil ou une soirée paisible. Un espace prêt à s'adapter à votre style de vie. La cuisine, aujourd'hui indépendante, n'attend que vos idées : l'ouvrir sur la pièce de vie permettra de créer un espace fluide, moderne et convivial, idéal pour recevoir ou simplement profiter d'un vaste intérieur harmonieux. La chambre de 13,19 m², elle aussi exposée plein sud, vous enveloppe de calme et de douceur. Une salle de bains fonctionnelle et des toilettes séparées viennent compléter de façon pratique cet espace nuit. -Des prestations précieuses au quotidien Cave saine de 5,32 m² Place de stationnement privative de 11 m² -un vrai luxe dans le secteur Résidence sécurisée, soignée et récente Excellente performance énergétique : DPE C (130) A proximité immédiate des commerces, des transports et de toutes les commodités, cet appartement bénéficie d'un emplacement idéal, alliant vie pratique et confort urbain. Que vous cherchiez votre premier chez-vous, un pied-à-terre ou un investissement fiable, ce bien répond à toutes les attentes. Votre projet commence ici Avec quelques travaux, vous pourrez révéler tout le potentiel de ce lieu et le façonner selon vos envies. Une belle opportunité de créer un intérieur qui vous ressemble, dans un cadre déjà exceptionnel. Copropriété de 58 lots (Pas de procédure en cours). Charges annuelles : 2128 euros.
Voir plus

Référence: 5087
Bien en copropriété. Nombre de lots : 58. Charges de copropriété : 2128 €.
Honoraires à la charge du vendeur.
Barème des honoraires
DPE
A
B
C
D
E
F
G
GES
A
B
C
D
E
F
G

Prêt immobilier

Vous souhaitez connaître votre capacité d’emprunt et trouver le meilleur crédit immobilier ?
Réaliser une simulation gratuite

Appartement à SAINT-MANDE
Appartement à SAINT-MANDE
Appartement à SAINT-MANDE
Appartement à SAINT-MANDE
Appartement à SAINT-MANDE
Appartement à SAINT-MANDE
Appartement à SAINT-MANDE
Appartement à SAINT-MANDE
Appartement à SAINT-MANDE
Appartement à SAINT-MANDE
Appartement à SAINT-MANDE
Appartement à SAINT-MANDE
Appartement à SAINT-MANDE
Appartement à SAINT-MANDE
Appartement à SAINT-MANDE
Appartement à SAINT-MANDE
Ce site est protégé par reCAPTCHA la Politique de confidentialité et les Conditions d’utilisation de Google s’appliquent.
Obtenir un prêt immobilier au meilleur taux ?

En poursuivant votre navigation sans modifier vos paramètres, vous acceptez l'utilisation de cookies susceptibles de réaliser des statistiques de visite. Cliquez ici pour plus d'informations