Bénéficiez des services de nos partenaires locaux soigneusement sélectionnés
pour vous accompagner dans votre parcours d'achat immobilier

Votre futur cocon -idéalement situé à paris 11ème

— Paris-11e 75011 —
315 000 €
30 m²
2 pièces

Nos partenaires locaux
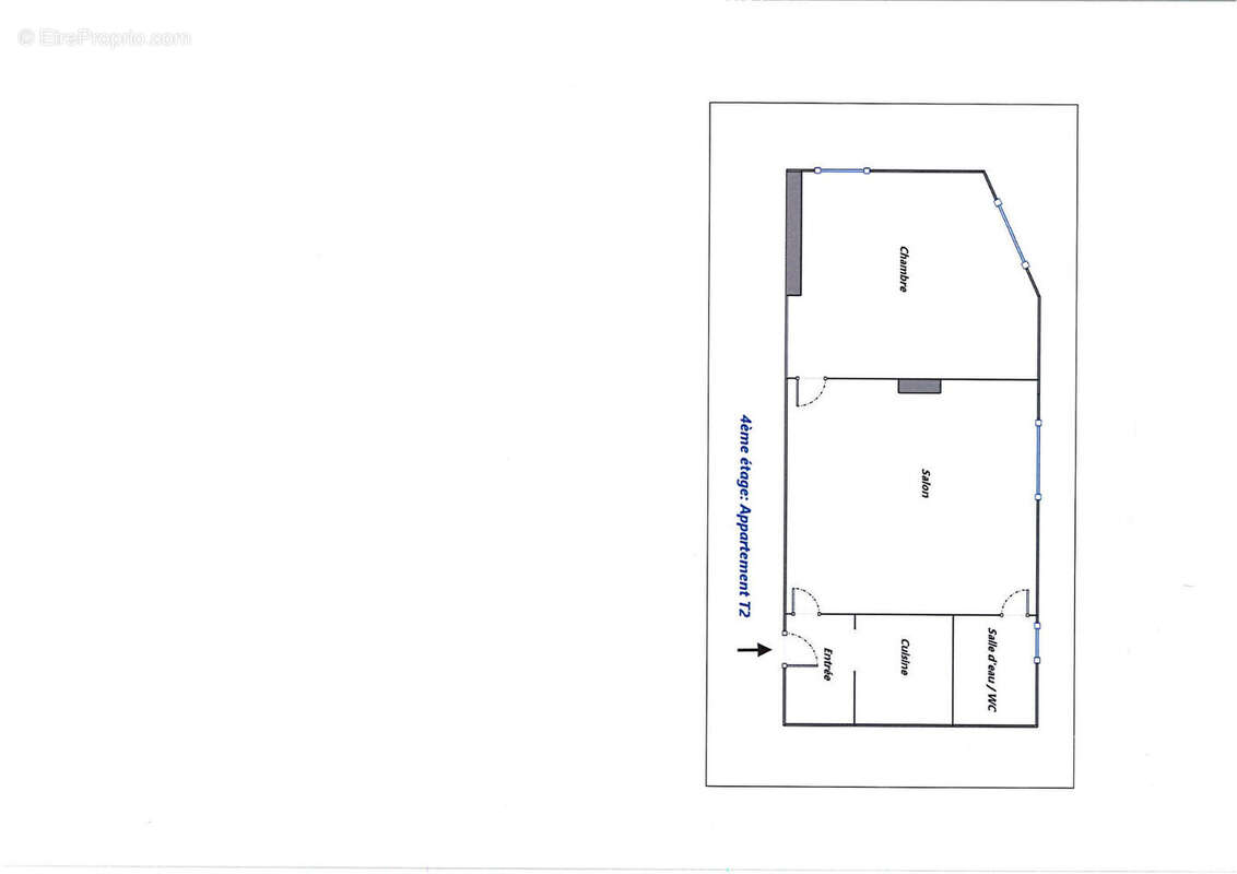
-Charmant 2 pièces en étage ? 30 m² de lumière et de caractère- Au coeur d'un immeuble ancien, parfaitement entretenu, laissez-vous séduire par ce ravissant deux-pièces de 30 m², situé au 4ème étage, véritable nid douillet. Dès l'entrée, l'atmosphère est accueillante. Le séjour, à la fois cosy et bien agencé, se prête aussi bien aux moments de convivialité qu'aux instants de calme. Chaque mètre carré est intelligemment exploité, offrant une sensation d'espace et de confort. La chambre d'angle paisible, profite d'une belle lumière qui vous accompagne toute la journée. La cuisine, modulable, offre de jolies possibilités d'aménagement pour créer un espace à votre image, pourquoi pas ouvert sur le séjour. La salle d'eau avec WC broyeur est en bon état, à l'instar de l'ensemble de l'appartement, prêt à être habité ou exploité sans gros travaux majeurs. Appartement disponible mi juillet 2026. Que vous recherchiez un premier achat, un pied-à-terre plein de charme ou un investissement patrimonial sécurisé, ce bien rare coche toutes les cases. Un véritable coup de coeur, où le charme de l'ancien rencontre le confort d'aujourd'hui. Copropriété de 46 lots (Pas de procédure en cours). Charges annuelles : 995 euros.
Voir plus

Référence: 5046
Bien en copropriété. Nombre de lots : 46. Charges de copropriété : 995 €.
Honoraires à la charge du vendeur.
DPE
A
B
C
D
E
F
G
GES
A
B
C
D
E
F
G

Prêt immobilier

Vous souhaitez connaître votre capacité d’emprunt et trouver le meilleur crédit immobilier ?
Réaliser une simulation gratuite

Appartement à PARIS-11E
Appartement à PARIS-11E
Appartement à PARIS-11E
Appartement à PARIS-11E
Appartement à PARIS-11E
Appartement à PARIS-11E
Appartement à PARIS-11E
Appartement à PARIS-11E
Appartement à PARIS-11E
Appartement à PARIS-11E
Appartement à PARIS-11E
Ce site est protégé par reCAPTCHA la Politique de confidentialité et les Conditions d’utilisation de Google s’appliquent.
Obtenir un prêt immobilier au meilleur taux ?

En poursuivant votre navigation sans modifier vos paramètres, vous acceptez l'utilisation de cookies susceptibles de réaliser des statistiques de visite. Cliquez ici pour plus d'informations