Maison 286m² à quend

— Quend 80120 —
500 000 €
286 m² / 639 m²
9 pièces
balcon/terrassejardin

Iad France - Nicolas Durteste vous propose : Rare sur le secteur!

À 6 kilométres des plages.

Ensemble de deux maisons de ville dont une entièrement rénovée d'une surface d'environ 230 m².
Vous serez séduit par le volume des piéces et la qualité de cette rénovation!

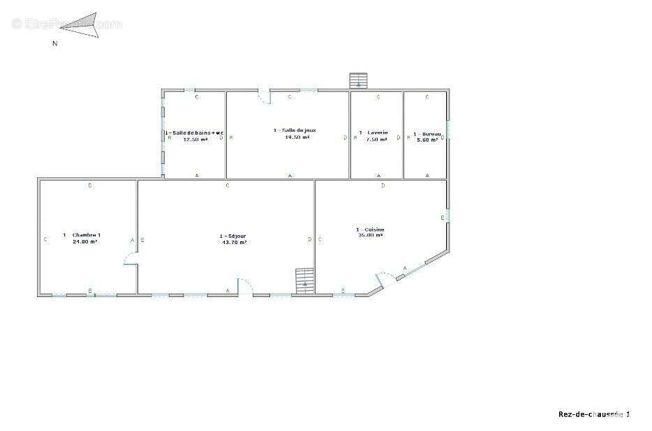
Cette maison est composée au rez-de-chaussée d'un séjour de 43 m² ouvert sur la cuisine de 35 m², d'une suite parentale de 24 m² avec dressing / salle d'eau avec douche italienne, d'une salle de jeux et d'une seconde salle de bain. Un bureau et un wc séparé complètent ce niveau.

À l'étage un palier et une passerelle vous transportent vers une seconde chambre, une troisième chambre en mezzanine ainsi que vers un espace bain et un coin détente.
une quatrième chambre est accessible indépendamment.

La seconde maison se compose d'un séjour, d'une cuisine séparée, deux chambres, une salle de bain, un wc séparé et une buanderie.
Idéal pour une utilisation en gîte.

une terrasse et un garage de 40 m² et un jardin complètent ce bien.

L'ensemble sur une parcelle de plus de 600 m².

Visites sur rendez-vous!


Honoraires d'agence à la charge du vendeur.
Information d'affichage énergétique sur ce bien : classe ENERGIE B indice 75 et classe CLIMAT B indice 2. Les informations sur les risques auxquels ce bien est exposé, y compris l'obligation légale de débroussaillement, sont disponibles sur le site Géorisques : http://www.georisques.gouv.fr.
La présente annonce immobilière a été rédigée sous la responsabilité éditoriale de M Nicolas Durteste mandataire indépendant en immobilier (sans détention de fonds), agent commercial de la SAS I@D France immatriculé au RSAC de Amiens sous le numéro 978622207, titulaire de la carte de démarchage immobilier pour le compte de la société I@D France SAS.
Informations LOI ALUR :
Honoraires charge vendeur. (gedeon_6727_31943139)
Voir plus

Référence: 1680292
Honoraires à la charge du vendeur.
DPE
A
B
C
D
E
F
G
GES
A
B
C
D
E
F
G

Prêt immobilier

Vous souhaitez connaître votre capacité d’emprunt et trouver le meilleur crédit immobilier ?
Réaliser une simulation gratuite

Photo 1 - Maison à QUEND
Photo 1
Photo 2 - Maison à QUEND
Photo 2
Photo 3 - Maison à QUEND
Photo 3
Photo 4 - Maison à QUEND
Photo 4
Photo 5 - Maison à QUEND
Photo 5
Photo 6 - Maison à QUEND
Photo 6
Photo 7 - Maison à QUEND
Photo 7
Photo 8 - Maison à QUEND
Photo 8
Photo 9 - Maison à QUEND
Photo 9
Ce site est protégé par reCAPTCHA la Politique de confidentialité et les Conditions d’utilisation de Google s’appliquent.
Obtenir un prêt immobilier au meilleur taux ?

En poursuivant votre navigation sans modifier vos paramètres, vous acceptez l'utilisation de cookies susceptibles de réaliser des statistiques de visite. Cliquez ici pour plus d'informations