Appartement 60m² à ploneour-lanvern

— Ploneour-Lanvern 29720 —
153 000 €
60 m² / 181 m²
3 pièces

Iad France - Nathalie Segalen vous propose : PLONEOUR -LANVERN - EN EXCLUSIVITE - À découvrir en hypercentre de Plonéour-Lanvern, cet appartement en duplex, entièrement rénové, situé au deuxième étage d'une petite résidence.
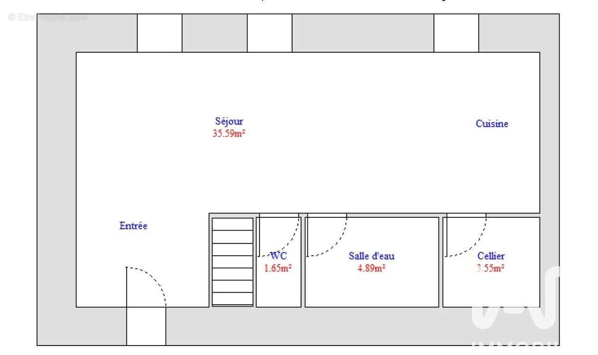
Ce bel appartement de type 3 offre une atmosphère contemporaine et chaleureuse. Il se compose d'une agréable pièce de vie avec une cuisine aménagée, pensée pour le confort et la convivialité.
Le duplex dispose de deux chambres à l'étage, desservies par un palier, offrant une séparation appréciable entre les espaces jour et nuit.
Vous bénéficierez également d'une salle d'eau moderne avec douche à l'italienne, d'un WC indépendant, ainsi que d'un cellier-buanderie indépendant, apportant un vrai confort au quotidien.
L'ensemble a été entièrement rénové : huisseries en double vitrage, électricité refaite, aucun travaux à prévoir.
Appartement chaleureux, classé B, syndic bénévole.
Emplacement privilégié : tous les commerces et commodités sont accessibles à pied, plage à 6,5 kms, Pont-L'Abbé à 6,7 kms.
Bien rare sur le secteur, idéal résidence principale, pied-à-terre ou investissement.



La presente annonce immobiliere vise 1 lot situé dans une copropriété de 3 lots au total et ne faisant l'objet d'aucune procédure en cours citée à l'article L. 721-1 du code de la construction et de l'habitation. Montant moyen mensuel de charges déclaré par le vendeur : 0¤ par mois (soit 0 ¤ annuel). Honoraires d'agence à la charge de l'acquéreur. Prix honoraires inclus : 153000 euros. Prix hors honoraires : 145000 euros. Honoraires TTC à la charge de l'acquéreur (5,52% du prix du bien hors honoraires) : 8000 euros.
Information d'affichage énergétique sur ce bien : classe ENERGIE B indice 99 et classe CLIMAT A indice 3. Les informations sur les risques auxquels ce bien est exposé, y compris l'obligation légale de débroussaillement, sont disponibles sur le site Géorisques : http://www.georisques.gouv.fr.
La présente annonce immobilière a été rédigée sous la responsabilité éditoriale de Mme Nathalie Segalen mandataire indépendant en immobilier (sans détention de fonds), agent commercial de la SAS I@D France immatriculé au RSAC de QUIMPER sous le numéro 514 240 977, titulaire de la carte de démarchage immobilier pour le compte de la société I@D France SAS.
Informations LOI ALUR :
Soumis au régime de copropriété.
Nombre de lots : 3.
Honoraires charge vendeur. (gedeon_6727_32353019)
Voir plus

Référence: 1912551
Bien en copropriété. Nombre de lots : 3.
Honoraires à la charge du vendeur.
DPE
A
B
C
D
E
F
G
GES
A
B
C
D
E
F
G

Prêt immobilier

Vous souhaitez connaître votre capacité d’emprunt et trouver le meilleur crédit immobilier ?
Réaliser une simulation gratuite

Photo 1 - Appartement à PLONEOUR-LANVERN
Photo 1
Photo 2 - Appartement à PLONEOUR-LANVERN
Photo 2
Photo 3 - Appartement à PLONEOUR-LANVERN
Photo 3
Photo 4 - Appartement à PLONEOUR-LANVERN
Photo 4
Photo 5 - Appartement à PLONEOUR-LANVERN
Photo 5
Photo 6 - Appartement à PLONEOUR-LANVERN
Photo 6
Photo 7 - Appartement à PLONEOUR-LANVERN
Photo 7
Photo 8 - Appartement à PLONEOUR-LANVERN
Photo 8
Photo 9 - Appartement à PLONEOUR-LANVERN
Photo 9
Ce site est protégé par reCAPTCHA la Politique de confidentialité et les Conditions d’utilisation de Google s’appliquent.
Obtenir un prêt immobilier au meilleur taux ?

En poursuivant votre navigation sans modifier vos paramètres, vous acceptez l'utilisation de cookies susceptibles de réaliser des statistiques de visite. Cliquez ici pour plus d'informations