Maison 103m² à castelnau-le-lez

— Castelnau-Le-Lez 34170 —
455 000 €
103 m²
5 pièces
parking

Maison familiale de charme avec jardin et dépendance – Castelnau-le-Lez
Située dans une petite impasse au calme, à seulement 2 minutes à pied de l'arrêt de tram 'la galine', cette maison familiale pleine de charme réunit tous les atouts pour un quotidien confortable et pratique.
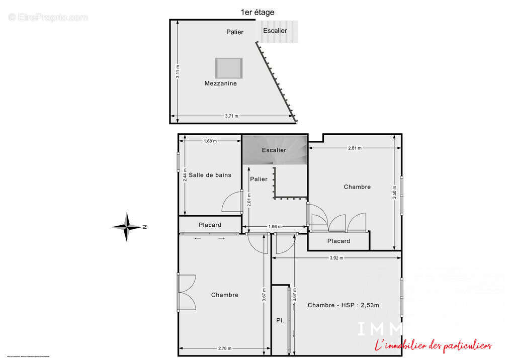
D'une surface d'environ 103 m², sur une parcelle de 217 m², elle offre au rez-de-chaussée une agréable pièce de vie avec cuisine, ouverte sur une terrasse et un jardin de part et d'autre, une salle d'eau et un WC.
À l'étage, vous trouverez trois chambres, dont deux avec placards, ainsi qu'une salle de bain.
Un garage complète l'ensemble, ainsi qu'une dépendance en rez-de-chaussée avec accès indépendant, offrant de multiples possibilités : revenus locatifs, bureau, espace indépendant ou création d'une quatrième chambre de plain-pied.
Côté prestations : adoucisseur d'eau, isolation des combles refaite en 2025, chaudière remplacée il y a trois ans.
Une maison complète, fonctionnelle et chaleureuse, idéale pour une famille, dans un secteur recherché alliant calme, proximité des transports et qualité de vie.

Honoraires inclus de 4.6% TTC à la charge de l'acquéreur. Prix hors honoraires 435 000 €. Classe énergie C, Classe climat C Montant estimé des dépenses annuelles d'énergie pour un usage standard : entre 1080.00 € et 1510.00 € sur les années 2021, 2022 et 2023 (abonnements compris). Les informations sur les risques auxquels ce bien est exposé sont disponibles sur le site Géorisques : georisques.gouv.fr. Ce bien vous est proposé par un agent commercial (Entreprise individuelle).

Votre conseiller IMMOVANCE MONTPELLIER : Eva LAMBERT
Agent commercial (Entreprise individuelle)
RSAC 84426263200011
Voir plus

Référence: 2693-HTTPS://WWW.IMMOVANCE.FR/
Honoraires d'agence de 4.6% à la charge de l'acquéreur
DPE
A
B
C
D
E
F
G
GES
A
B
C
D
E
F
G

Prêt immobilier

Vous souhaitez connaître votre capacité d’emprunt et trouver le meilleur crédit immobilier ?
Réaliser une simulation gratuite

Maison à CASTELNAU-LE-LEZ
Maison à CASTELNAU-LE-LEZ
Maison à CASTELNAU-LE-LEZ
Maison à CASTELNAU-LE-LEZ
Maison à CASTELNAU-LE-LEZ
Maison à CASTELNAU-LE-LEZ
Maison à CASTELNAU-LE-LEZ
Maison à CASTELNAU-LE-LEZ
Maison à CASTELNAU-LE-LEZ
Ce site est protégé par reCAPTCHA la Politique de confidentialité et les Conditions d’utilisation de Google s’appliquent.
Obtenir un prêt immobilier au meilleur taux ?

En poursuivant votre navigation sans modifier vos paramètres, vous acceptez l'utilisation de cookies susceptibles de réaliser des statistiques de visite. Cliquez ici pour plus d'informations