Studio de 30m2 - bien agencé - à tremblay-en-france

— Tremblay-En-France 93290 —
108 000 €
30 m²
1 pièce
parking

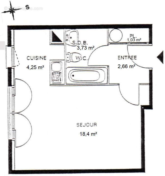
Situé au 4ᵉ et dernier étage d’un immeuble bien entretenu, ce studio d'environ 30m2 bénéficie d’un cadre de vie agréable dans un environnement calme à Tremblay-en-France.
Il offre une entrée avec placard intégré, une salle de bain avec WC, ainsi qu’un séjour en L de 18,40 m2. Le coin cuisine avec fenêtre, légèrement séparé, permet une organisation agréable et fonctionnelle de l’espace de vie.
Situé dans une zone calme, il bénéficie d’une localisation pratique : 20 minutes à pied de la gare du Vert Galant et un accès rapide aux transports grâce aux bus desservant la gare en quelques minutes.
Une place de parking privative en sous-sol vient parfaire ce bien.
Idéal pour un premier achat ou un investissement locatif, alliant confort et praticité.
À compter du 1er janvier 2026, en raison des nouvelles réglementations (électricité et petites surfaces), le DPE de ce logement sera automatiquement reclassé en classe D.
Voir plus

Bien en copropriété. Nombre de lots : 111. Charges de copropriété : 1090 €.
Barème des honoraires
DPE
A
B
C
D
E
F
G
GES
A
B
C
D
E
F
G

Prêt immobilier

Vous souhaitez connaître votre capacité d’emprunt et trouver le meilleur crédit immobilier ?
Réaliser une simulation gratuite

Appartement à TREMBLAY-EN-FRANCE
Appartement à TREMBLAY-EN-FRANCE
Appartement à TREMBLAY-EN-FRANCE
Appartement à TREMBLAY-EN-FRANCE
Appartement à TREMBLAY-EN-FRANCE
Appartement à TREMBLAY-EN-FRANCE
Ce site est protégé par reCAPTCHA la Politique de confidentialité et les Conditions d’utilisation de Google s’appliquent.
Obtenir un prêt immobilier au meilleur taux ?

En poursuivant votre navigation sans modifier vos paramètres, vous acceptez l'utilisation de cookies susceptibles de réaliser des statistiques de visite. Cliquez ici pour plus d'informations