Bénéficiez des services de nos partenaires locaux soigneusement sélectionnés
pour vous accompagner dans votre parcours d'achat immobilier

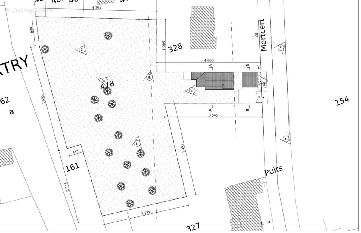
Terrain 3059m² à guerard

— Guerard 77580 —
250 000 €
3 059 m²

Nos partenaires locaux
Rare sur le secteur.
Terrain constructible situé en zone UA du PLU de Guérard, dans un environnement résidentiel calme et recherché.

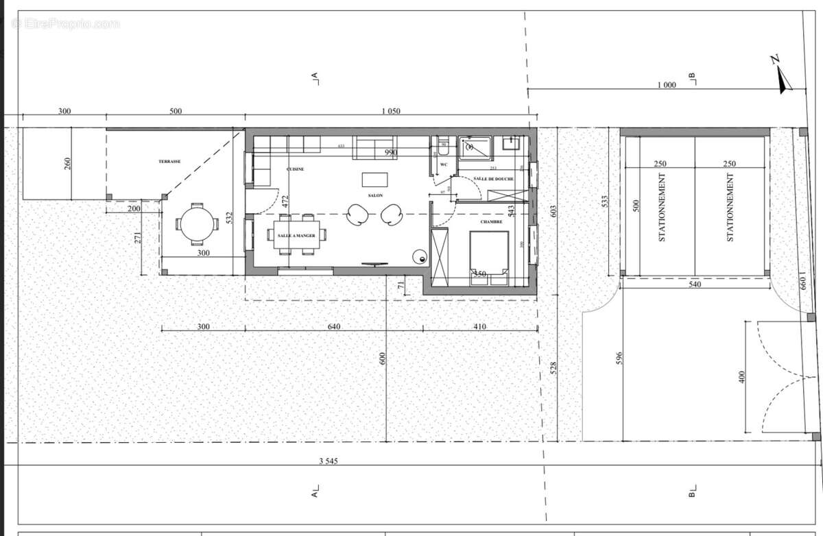
Un projet de maison est déjà en cours de construction sur la parcelle (dossier et descriptif disponibles), permettant à l'acquéreur soit de poursuivre le projet existant, soit d'adapter le projet selon ses besoins, dans le respect des règles d'urbanisme.

Le terrain autorise la construction d'une maison individuelle avec une emprise au sol pouvant atteindre 60 % de la surface du terrain.
La hauteur maximale autorisée est de 11 mètres, offrant la possibilité d'un projet en R1 avec combles.

L'implantation est possible à l'alignement ou avec recul par rapport à la rue, dans une bande constructible de 40 mètres de profondeur.
La construction peut être réalisée en limite séparative ou avec recul, selon la configuration retenue.

Le PLU ne fixe aucune limitation par coefficient d'occupation des sols (COS) : la surface habitable est définie par l'emprise, la hauteur et les règles d'implantation.
50 % de la surface du terrain devra être conservée en espaces verts.

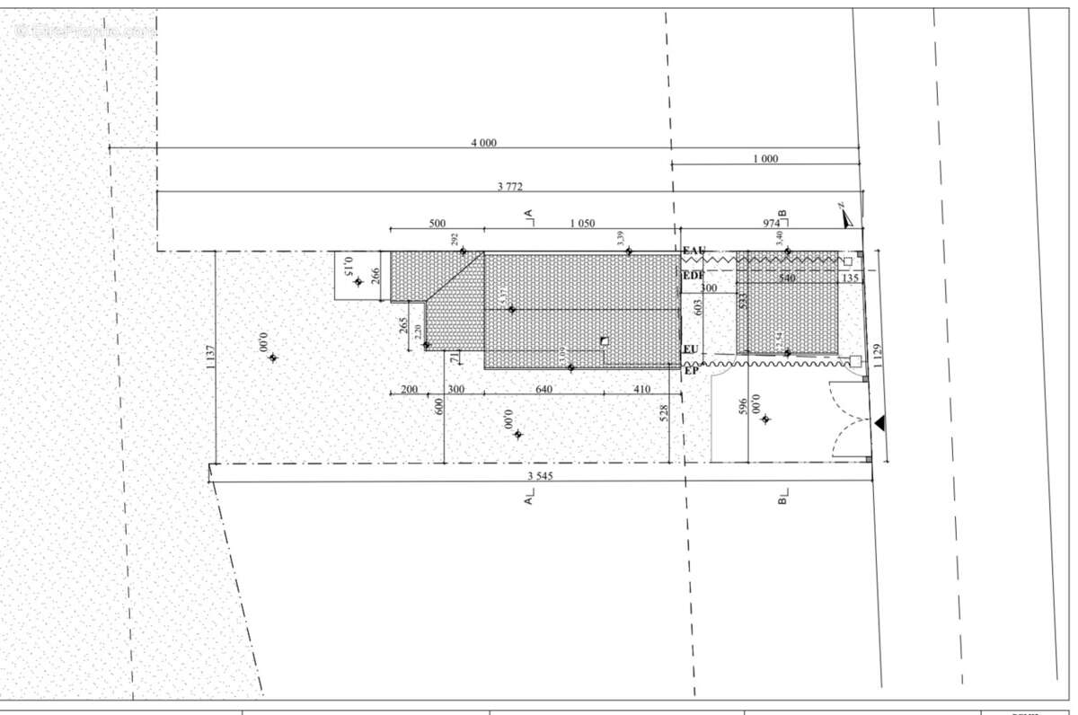
Les réseaux sont à proximité et une étude de sol a déjà été réalisée.
Le stationnement est à prévoir sur la parcelle conformément à la réglementation en vigueur.

Une opportunité rare pour acquérir un terrain avec projet déjà engagé, dans un secteur recherché de Guérard, idéal pour une résidence principale sur mesure.


-
Diffuze : votre prestataire de diffusion d'annonces immobilières.
Informations LOI ALUR :
Honoraires charge acquéreur. (gedeon_52960_32340108)
Voir plus

Référence: 4493-2
Honoraires à la charge de l'acquéreur.

Prêt immobilier

Vous souhaitez connaître votre capacité d’emprunt et trouver le meilleur crédit immobilier ?
Réaliser une simulation gratuite

Photo 1 - Terrain à GUERARD
Photo 1
Photo 2 - Terrain à GUERARD
Photo 2
Photo 3 - Terrain à GUERARD
Photo 3
Photo 4 - Terrain à GUERARD
Photo 4
Photo 5 - Terrain à GUERARD
Photo 5
Photo 6 - Terrain à GUERARD
Photo 6
Ce site est protégé par reCAPTCHA la Politique de confidentialité et les Conditions d’utilisation de Google s’appliquent.
Obtenir un prêt immobilier au meilleur taux ?

En poursuivant votre navigation sans modifier vos paramètres, vous acceptez l'utilisation de cookies susceptibles de réaliser des statistiques de visite. Cliquez ici pour plus d'informations