Bénéficiez des services de nos partenaires locaux soigneusement sélectionnés
pour vous accompagner dans votre parcours d'achat immobilier

Appartement 63m² à kingersheim

— Kingersheim 68260 —
249 000 €
64 m²
3 pièces
balcon/terrasseascenseur

Nos partenaires locaux
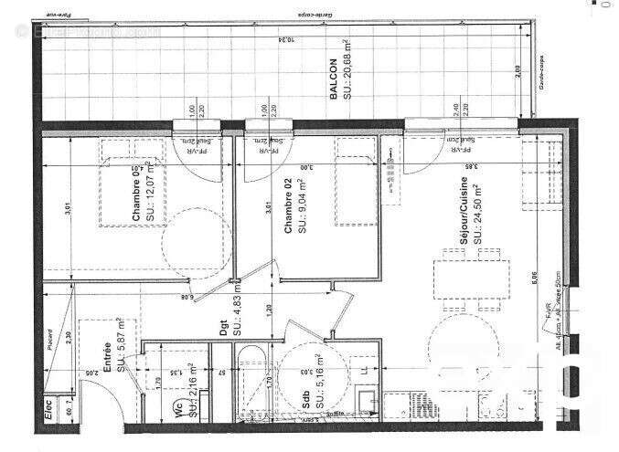
? À VENDRE – Appartement F3 dans la Résidence Virtuo à Kingersheim


Découvrez ce bel appartement 3 pièces situé dans la résidence neuve. Offrant un cadre de vie moderne et confortable, ce bien est idéal pour un premier achat ou un investissement.

? Caractéristiques principales :

Type F3 – 2 chambres

Pièce de vie spacieuse de 24,5 m², lumineuse et fonctionnelle

Grand balcon de 20,68 m², parfait pour vos moments de détente en extérieur

1 place de parking extérieure

1 garage privatif, inclus dans le prix

Cette résidence à taille humaine allie confort, design contemporain et emplacement pratique, à proximité des commodités, des transports et des axes routiers.


Caractéristiques principales

Nombre de logements : 19 appartements répartis sur 3 étages

Espaces extérieurs : balcons, terrasses ou jardins privatifs selon les logements



Prestations intérieures : carrelage dans les pièces de vie, parquet stratifié dans les chambres, peinture lisse sur les murs, chauffage individuel au gaz avec plancher chauffant, radiateurs sèche-serviettes, WC suspendus, ascenseur

Localisation
La résidence bénéficie d'une excellente desserte :?
À 11 minutes en voiture du centre de Mulhouse
Accès rapide aux autoroutes internationales et à l'aéroport de Bâle-Mulhouse
Proximité immédiate de commerces, d'activités sportives et culturelles, ainsi que d'établissements scolaires
Je vous invite à découvrir cet appartement ou vous n'aurez plus qu'à déposer vos valises pour profiter pleinement d'une nouvelle vie.Les matériaux ont été sélectionnés avec gout.
A la recherche d'un nouveau chez soi, contactez-moi.
VALERIE MEY
Agent Commercial en immobilier immatriculé au Registre Spécial des Agents Commerciaux (RSAC) du Tribunal de Commerce de Strasbourg sous le numéro 891 838 732

Honoraires inclus de 5.96% TTC à la charge de l'acquéreur. Prix hors honoraires 235 000 €. Dans une copropriété de 19 lots. Aucune procédure n'est en cours. Non soumis au DPE. Les informations sur les risques auxquels ce bien est exposé sont disponibles sur le site Géorisques : georisques.gouv.fr.

Votre conseiller eXp France : Valérie MEY
Agent commercial (Entreprise individuelle)
RSAC 891 838 732 MULHOUSE
Voir plus

Référence: VA9542-EXPFRANCE
Bien en copropriété. Nombre de lots : 19.
Honoraires d'agence de 5.96% à la charge de l'acquéreur
Barème des honoraires

Prêt immobilier

Vous souhaitez connaître votre capacité d’emprunt et trouver le meilleur crédit immobilier ?
Réaliser une simulation gratuite

Appartement à KINGERSHEIM
Appartement à KINGERSHEIM
Appartement à KINGERSHEIM
Appartement à KINGERSHEIM
Appartement à KINGERSHEIM
Appartement à KINGERSHEIM
Appartement à KINGERSHEIM
Appartement à KINGERSHEIM
Appartement à KINGERSHEIM
Ce site est protégé par reCAPTCHA la Politique de confidentialité et les Conditions d’utilisation de Google s’appliquent.
Obtenir un prêt immobilier au meilleur taux ?

En poursuivant votre navigation sans modifier vos paramètres, vous acceptez l'utilisation de cookies susceptibles de réaliser des statistiques de visite. Cliquez ici pour plus d'informations