Bénéficiez des services de nos partenaires locaux soigneusement sélectionnés
pour vous accompagner dans votre parcours d'achat immobilier

Commerce 98m² à bourgoin-jallieu

— Bourgoin-Jallieu 38300 —
149 900 €
98 m²
11 pièces
accès handicapé

Nos partenaires locaux
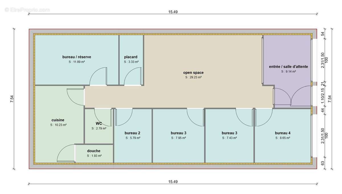
Local professionnel – 98 m² – Centre-ville de Bourgoin-Jallieu – 149 900 euros

Situé en centre-ville de Bourgoin-Jallieu, à proximité immédiate du secteur du Médicis et de toutes les commodités, ce local professionnel de 98 m² offre de nombreuses possibilités d’exploitation pour tout type d’activité professionnelle : professions libérales, activités de services, bureaux ou autres usages compatibles.

Le bien est libre de toute occupation, ce qui le rend idéal aussi bien pour une installation immédiate que pour un projet d’investissement locatif.

Il se compose de 11 pièces au total, dont 5 bureaux indépendants, ainsi qu’une grande pièce de 29,48 m² pouvant accueillir un open space, une salle de réunion ou un espace collaboratif. Les autres pièces permettent l’aménagement d’un accueil, d’une salle d’attente, de locaux techniques ou de zones de stockage selon votre projet.

Le local est actuellement exploité en cabinet de kinésithérapie, attestant de sa parfaite adaptation aux activités professionnelles recevant du public, sans pour autant limiter sa destination.

Implanté au sein d’une petite copropriété calme, le bien bénéficie de charges très faibles, un atout rare en centre-ville.

Sa localisation stratégique permet un accès rapide à la gare de Bourgoin-Jallieu (environ 3 minutes) ainsi qu’aux principaux axes routiers et autoroutiers, facilitant les déplacements professionnels et l’accueil de la clientèle.

En complément, il est possible d’acquérir deux places de stationnement supplémentaires, situées en sous-sol fermé, offrant une solution de parking sécurisée et pratique.

Surface totale : 98 m²
Composition : 11 pièces, dont 5 bureaux et un open space de 29,48 m²
Stationnement : deux places en sous-sol fermé (en option)
Copropriété : petite copropriété, charges faibles
Localisation : centre-ville, proche commodités, gare et axes routiers
Prix de vente : 149 900 euros (hors parkings)

Contact :

Philippe PEIX Tel : [Coordonnées masquées]
Agent commercial – Barrier Immobilier
Inscrit au Registre des Agents Commerciaux
N° 450 765 060 R.S.C. Vienne
Voir plus

Référence: 65
Honoraires à la charge du vendeur.
DPE
A
B
C
D
E
F
G
GES
A
B
C
D
E
F
G

Prêt immobilier

Vous souhaitez connaître votre capacité d’emprunt et trouver le meilleur crédit immobilier ?
Réaliser une simulation gratuite

Commerce à BOURGOIN-JALLIEU
Commerce à BOURGOIN-JALLIEU
Commerce à BOURGOIN-JALLIEU
Commerce à BOURGOIN-JALLIEU
Commerce à BOURGOIN-JALLIEU
Commerce à BOURGOIN-JALLIEU
Commerce à BOURGOIN-JALLIEU
Commerce à BOURGOIN-JALLIEU
Ce site est protégé par reCAPTCHA la Politique de confidentialité et les Conditions d’utilisation de Google s’appliquent.
Obtenir un prêt immobilier au meilleur taux ?

En poursuivant votre navigation sans modifier vos paramètres, vous acceptez l'utilisation de cookies susceptibles de réaliser des statistiques de visite. Cliquez ici pour plus d'informations