Nice port / garibaldi - magnifique 3 pièces rénové traversant, emplacement exceptionnel !

— Nice 06300 —
620 000 €
66 m²
3 pièces
balcon/terrasse

Rare, emplacement unique, coup de coeur assuré !
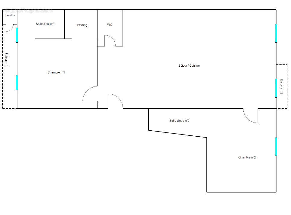
Idéalement situé au coeur du quartier prisé du Port de Nice, à deux pas de la place Garibaldi et de la place du Pin, à 100 m de la mer, parfaitement desservi par les deux lignes du Tramway, somptueux appartement de type 3 Pièces d'une surface habitable Carrez de 66 m2, magnifiquement rénové, agencé et meublé avec goût faisant de ce bien un produit unique et rare, clé en mains, à voir absolument !
Au 2ème étage d'un bel immeuble niçois parfaitement entretenu (ravalements des façades et toiture récemment réalisés et payés) sans ascenseur, le bien, lumineux et traversant, entièrement rénové très récemment, propose un magnifique séjour de plus de 35 m2 avec cuisine américaine équipée neuve et de haut standing, et toilette indépendant, ouvert sur un beau balcon de 3 m2, avec vues sur le Port et la place Garibaldi.
De part et d'autre de cette très belle et agréable pièce à vire, nous accédons à deux trés belles suites parentales composées chacune d'une grande chambre avec sa salle d'eau indépendante (dont une Master Room de 18 m2, avec son grand dressing aménagé, ouverte sur un grand balcon sur cour orienté Sud et sa buanderie aménagée) .
Trés beaux volumes dans tout l'appartement avec une Hauteur Sous Plafond exceptionnelle de 3,50m, rénovation et décoration de trés haut standing: parquets en bois massif, corniches et frises aux plafonds, douches à l'italienne, marbres, électroménagers BOSCH, Climatisation intégrée dans toutes les pièces, installations électriques et domotiques derniers cris, porte blindée, ...
Faibles Charges, situation Premium, LOCATIONS SAISONNIERES AUTORISEES offrant une très bonne Rentabilité Locative !
Bien soumis au statut de la copropriété. Nombre de lots:11. Charges courantes annuelles: 990 € .Honoraires agence inclus charge vendeur. AZUR METROPOLE IMMOBILIER[Coordonnées masquées]
Voir plus

Référence: 400
Bien en copropriété. Nombre de lots : 11. Charges de copropriété : 990 €.
Honoraires à la charge du vendeur.
Barème des honoraires
DPE
A
B
C
D
E
F
G
GES
A
B
C
D
E
F
G

Prêt immobilier

Vous souhaitez connaître votre capacité d’emprunt et trouver le meilleur crédit immobilier ?
Réaliser une simulation gratuite

Appartement à NICE
Appartement à NICE
Appartement à NICE
Appartement à NICE
Appartement à NICE
Appartement à NICE
Appartement à NICE
Appartement à NICE
Appartement à NICE
Appartement à NICE
Appartement à NICE
Ce site est protégé par reCAPTCHA la Politique de confidentialité et les Conditions d’utilisation de Google s’appliquent.
Obtenir un prêt immobilier au meilleur taux ?

En poursuivant votre navigation sans modifier vos paramètres, vous acceptez l'utilisation de cookies susceptibles de réaliser des statistiques de visite. Cliquez ici pour plus d'informations