Bénéficiez des services de nos partenaires locaux soigneusement sélectionnés
pour vous accompagner dans votre parcours d'achat immobilier

Appartement t3 muret bellonte

— Muret 31600 —
109 000 €
66 m²
3 pièces
balcon/terrasse

Nos partenaires locaux
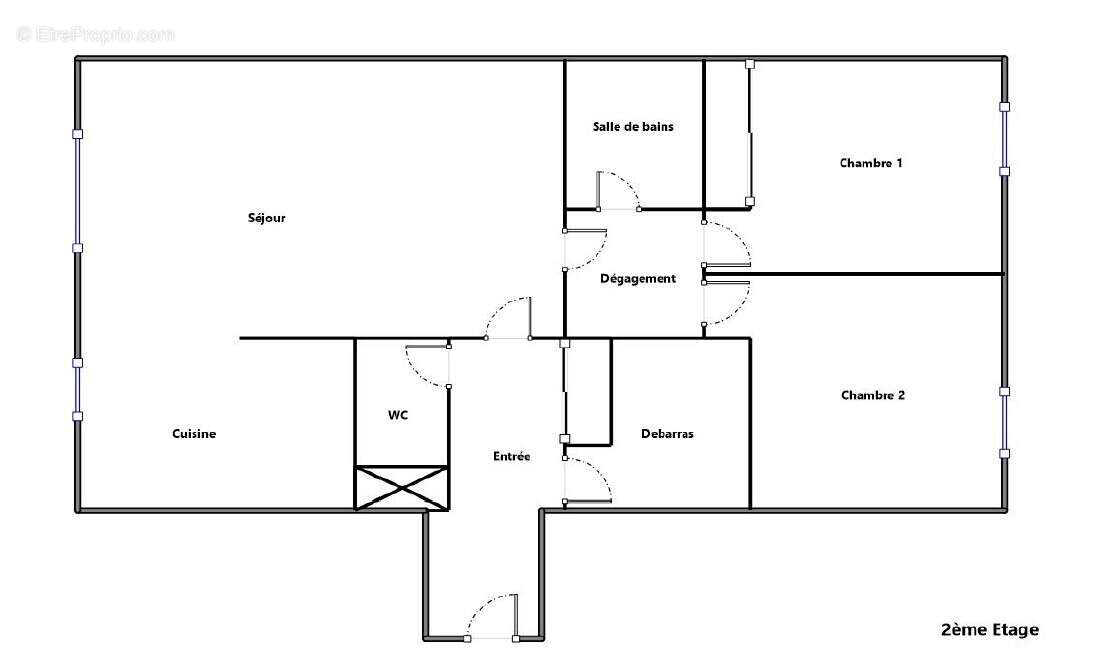
Appartement T3 – 66.16m² – MURET– 109 000€ - FRAIS DE NOTAIRE REDUITS
Promologis vous propose un appartement T3 (n°7062) d'une copropriété, dans un environnement à la fois calme et proche de tous les commerces et transports.
Ce logement est composé d'une entrée, d'un séjour, d'une cuisine séparée, de 2 chambres, d'une salle de bains, d'un cellier, de wc et d'un balcon
• Copropriété de 40 lots principaux – Montant moyen des charges de copropriété : 1 123€/an
• Étiquette énergétique (DPE) : C
• Chauffage : électrique
• Prix de vente : 109 000€

Adresse :14 Impasse Bellonte

Les logements sont vendus sous réserve du respect des dispositions des articles L443-11 et D443-12-1 du Code de la Construction et de l'Habitation.
Les acquéreurs intéressés sont priés d'envoyer une demande écrite en précisant les noms, adresse, téléphone, commune, type, dans un délai d'un mois à compter de la présente publication, soit au plus tard le 23 janvier 2026 à :
PROMOLOGIS Vente - 2 rue du Docteur Louis Sanières - BP 90718 - 31 007 TOULOUSE Cedex 6
Sans offre retenue à l'expiration de ce délai, il est reconduit tacitement de la même durée. Cette reconduction tacite est renouvelable jusqu'à l'acceptation d'une offre par PROMOLOGIS.
Visites sur rendez-vous. Remise des offres d'achat au plus tard le 23 janvier 2026, par e-mail et selon les dispositions consultables sur https://www.promologis.fr.
Contact Promologis Vente : Céline PREVOST – [Coordonnées masquées] – [Coordonnées masquées]
Les informations sur les risques auxquels ce bien est exposé sont disponibles sur le site : www.georisques.gouv.fr
Voir plus

Référence: VHLM-CP-MURET-7062
Bien en copropriété. Nombre de lots : 40. Charges de copropriété : 93 €.
DPE
A
B
C
D
E
F
G
GES
A
B
C
D
E
F
G

Prêt immobilier

Vous souhaitez connaître votre capacité d’emprunt et trouver le meilleur crédit immobilier ?
Réaliser une simulation gratuite

Appartement à MURET
Appartement à MURET
Appartement à MURET
Appartement à MURET
Appartement à MURET
Appartement à MURET
Appartement à MURET
Appartement à MURET
Ce site est protégé par reCAPTCHA la Politique de confidentialité et les Conditions d’utilisation de Google s’appliquent.
Obtenir un prêt immobilier au meilleur taux ?

En poursuivant votre navigation sans modifier vos paramètres, vous acceptez l'utilisation de cookies susceptibles de réaliser des statistiques de visite. Cliquez ici pour plus d'informations