Bénéficiez des services de nos partenaires locaux soigneusement sélectionnés
pour vous accompagner dans votre parcours d'achat immobilier

Vue dégagée en ville

— Marseille-6e 13006 —
320 000 €
69 m²
3 pièces
balcon/terrasse

Nos partenaires locaux
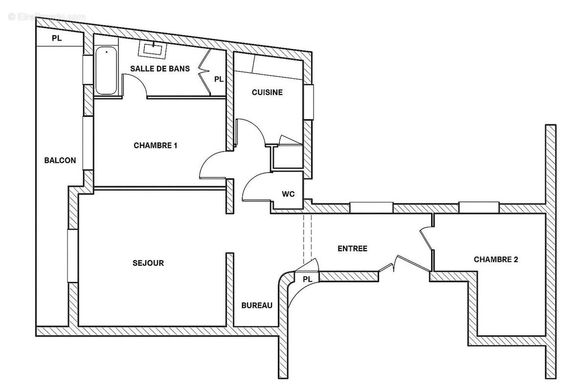
SOUS COMPROMIS : Rue Paradis/Castellane, situé au septième et dernier étage, d’un immeuble ancien bien entretenu avec ascenseur, cet appartement T3 de 69 m2 séduit par son charme et sa luminosité. Il offre une entrée accueillante qui mène à un séjour ouvrant sur un balcon. Ce dernier profite d’une vue panoramique sur la ville et les collines environnantes, offrant un cadre de vie agréable et paisible. La cuisine est indépendante propfite également d'une jolie vue sur les toits. La chambre principale dispose d’une salle de bains privative et d’un accès direct au balcon, tandis qu’un bureau ou une chambre d’enfant complète l’espace nuit. L’appartement comprend également un WC indépendant. Travaux de rénovation à prévoir (50 000€ environ). Une cave vient compléter ce bien. Les charges mensuelles s’élèvent à 98 euros et la taxe foncière est de 1 759 euros. Plan disponible sur la dernière image. Certaines photos présentent un aménagement virtuel (IA) visuels non contractuels. Contact Arnaud MASSON [Coordonnées masquées] / Agence [Coordonnées masquées] Non détention de fonds.
Voir plus

Bien en copropriété. Charges de copropriété : 1180 €.
Honoraires à la charge du vendeur.
Barème des honoraires
DPE
A
B
C
D
E
F
G
GES
A
B
C
D
E
F
G

Prêt immobilier

Vous souhaitez connaître votre capacité d’emprunt et trouver le meilleur crédit immobilier ?
Réaliser une simulation gratuite

Appartement à MARSEILLE-6E
Appartement à MARSEILLE-6E
Appartement à MARSEILLE-6E
Appartement à MARSEILLE-6E
Appartement à MARSEILLE-6E
Appartement à MARSEILLE-6E
Appartement à MARSEILLE-6E
Appartement à MARSEILLE-6E
Appartement à MARSEILLE-6E
Appartement à MARSEILLE-6E
Appartement à MARSEILLE-6E
Appartement à MARSEILLE-6E
Appartement à MARSEILLE-6E
Appartement à MARSEILLE-6E
Appartement à MARSEILLE-6E
Appartement à MARSEILLE-6E
Appartement à MARSEILLE-6E
Appartement à MARSEILLE-6E
Ce site est protégé par reCAPTCHA la Politique de confidentialité et les Conditions d’utilisation de Google s’appliquent.
Obtenir un prêt immobilier au meilleur taux ?

En poursuivant votre navigation sans modifier vos paramètres, vous acceptez l'utilisation de cookies susceptibles de réaliser des statistiques de visite. Cliquez ici pour plus d'informations