Bénéficiez des services de nos partenaires locaux soigneusement sélectionnés
pour vous accompagner dans votre parcours d'achat immobilier

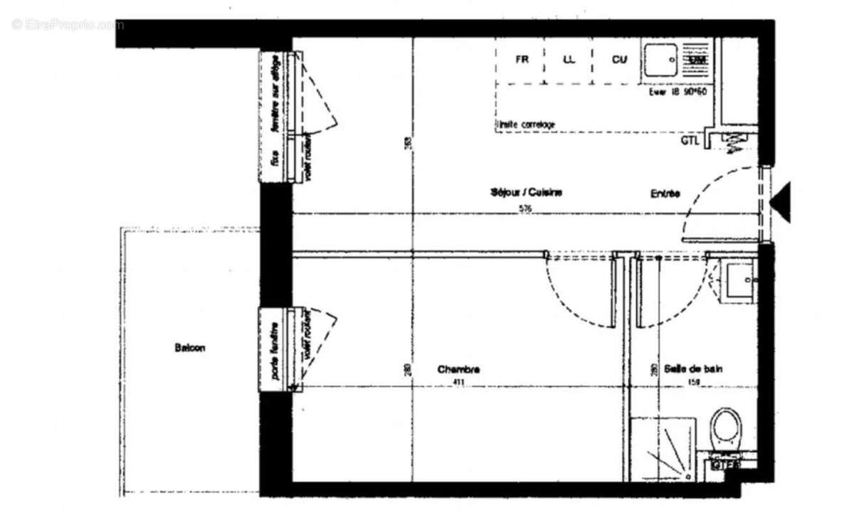
Doly / appartement 32 m² avec / métro plaisance / terrasse privative

— Paris-14e 75014 —
367 500 €
32 m²
2 pièces
balcon/terrasseascenseur

Nos partenaires locaux
DOLY - nous sommes fiers de vous présenter cet appartement de 32 m² loi Carrez, idéal pour un premier achat ou un investissement locatif, offrant également un pied-à-terre fonctionnel au cœur du 14ᵉ arrondissement de Paris.

L'appartement se distingue par un agencement optimisé : un séjour spacieux de 15 m² , une cuisine tout équipe ainsi qu'un balcon de 5 m², idéal pour profiter d'une belle luminosité grâce à sa double exposition. La cuisine séparée permet un aménagement personnalisé, tandis que la chambre de 11 m² offre calme et confort. Une salle de bains ainsi que des toilettes indépendantes viennent compléter ce bien fonctionnel et agréable à vivre.

Le quartier séduit par sa proximité immédiate avec les écoles, commerces, restaurants et lieux de vie animés, un véritable atout dans ce secteur prisé. L'immeuble, situé dans une résidence de 2019, sécurisé, garantit tranquillité et sérénité au quotidien.

Pour toute information, n'hésitez pas à m'appeler au [Coordonnées masquées]
Voir plus

Référence: DOM26408-2
Bien en copropriété. Nombre de lots : 73. Charges de copropriété : 106 €.
Honoraires d'agence de 5% à la charge de l'acquéreur
DPE
A
B
C
D
E
F
G
GES
A
B
C
D
E
F
G

Prêt immobilier

Vous souhaitez connaître votre capacité d’emprunt et trouver le meilleur crédit immobilier ?
Réaliser une simulation gratuite

Appartement à PARIS-14E
Appartement à PARIS-14E
Appartement à PARIS-14E
Appartement à PARIS-14E
Appartement à PARIS-14E
Appartement à PARIS-14E
Appartement à PARIS-14E
Ce site est protégé par reCAPTCHA la Politique de confidentialité et les Conditions d’utilisation de Google s’appliquent.
Obtenir un prêt immobilier au meilleur taux ?

En poursuivant votre navigation sans modifier vos paramètres, vous acceptez l'utilisation de cookies susceptibles de réaliser des statistiques de visite. Cliquez ici pour plus d'informations