Bénéficiez des services de nos partenaires locaux soigneusement sélectionnés
pour vous accompagner dans votre parcours d'achat immobilier

Rare duplex atypique t7 de 147m2 quartier procé

— Nantes 44100 —
542 500 €
147 m²
7 pièces
parkingbalcon/terrasseascenseur

Nos partenaires locaux
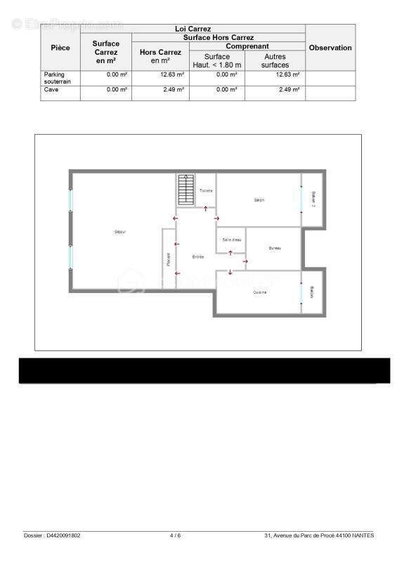
Cet appartement spacieux et lumineux se déploie sur deux étages(aucune mansarde);il saura vous charmer par son originalité.
Traversant, son premier niveau est composé d'un hall d'entrée avec placards, d'une cuisine, de deux chambres, d'une salle d'eau avec wc et d'un wc indépendant.
Le salon séjour spacieux s'ouvre sur une grande terrasse et sur le jardin où vous pourrez admirer de grands arbres( aucun vis à vis)
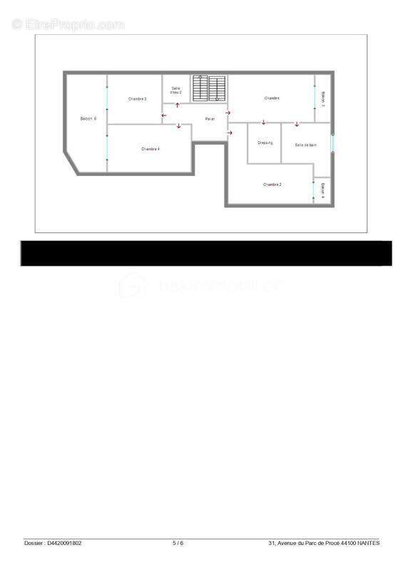
Par l'escalier vous accéderez à l'étage où vous découvrirez 3 chambres, une salle d'eau plus une suite parentale avec dressing et salle de bain.
Atypique avec une passerelle surplombant l'entrée, cet appartement attend son décorateur où sa décoratrice pour une remise au gout du jour.
Cet appartement est idéal pour une vie de famille, l'espace nuit et l'espace jour bien distincts offriront à chacun un cocon agréable.
Situé près du parc de Procé, vous aimerez l'environnement calme et verdoyant tout en étant proche du centre ville. Le quartier Procé est calme, chic et résidentiel.
Une cave et une place de parking en sous sol(possibilité d'une deuxième en sus) complètent ce bien.
Pour les commodités, une ligne de bus dessert Nantes centre.
De très bonnes écoles, collèges et lycées parmi les plus réputés de Nantes sont à deux pas.
Contactez moi pour venir découvrir ce bien a fort potentiel et laissez vous séduire par cet appartement unique.
Certaines photos ont été générées avec l'IA pour une suggestion de décoration.

Cette annonce référence 307280 vous est présentée par votre agent commercial BSK Immobilier MARIE-CLAUDE TENDERO (EI) immatriculé au RSAC de LA ROCHE-SUR-YON (85000) sous le numéro 85[Coordonnées masquées]21.

Prix du bien : 542 500,00 €
Prix du bien hors honoraires : 520 000,00 €
Honoraires TTC : 4,33 %
Les honoraires d'agence sont à la charge de l'acquéreur.

A propos des performances énergétiques :
Date de réalisation du diagnostic énergétique : 18/12/2025
Score DPE : 177 kWhEP/m²/an
Score GES : 27 kgepCO2/m²/an
Montant estimé des dépenses annuelles d'énergie pour un usage standard : entre 2290.00 € et 3160.00 € par an. Prix moyens des énergies indexés sur l'année 2022 (abonnements compris).

Les informations sur les risques auxquels ce bien est exposé sont disponibles sur le site Géorisques : www.georisques.gouv.fr
Voir plus

Référence: 307280_1
DPE
A
B
C
D
E
F
G
GES
A
B
C
D
E
F
G

Prêt immobilier

Vous souhaitez connaître votre capacité d’emprunt et trouver le meilleur crédit immobilier ?
Réaliser une simulation gratuite

Appartement à NANTES
Appartement à NANTES
Appartement à NANTES
Appartement à NANTES
Appartement à NANTES
Appartement à NANTES
Appartement à NANTES
Appartement à NANTES
Appartement à NANTES
Appartement à NANTES
Appartement à NANTES
Appartement à NANTES
Appartement à NANTES
Appartement à NANTES
Appartement à NANTES
Appartement à NANTES
Appartement à NANTES
Ce site est protégé par reCAPTCHA la Politique de confidentialité et les Conditions d’utilisation de Google s’appliquent.
Obtenir un prêt immobilier au meilleur taux ?

En poursuivant votre navigation sans modifier vos paramètres, vous acceptez l'utilisation de cookies susceptibles de réaliser des statistiques de visite. Cliquez ici pour plus d'informations