Bénéficiez des services de nos partenaires locaux soigneusement sélectionnés
pour vous accompagner dans votre parcours d'achat immobilier

Le haut de gamme s'invite dans ce t1 de 35 m² au sein du village naturiste du cap d'agde

— Agde 34300 —
366 600 €
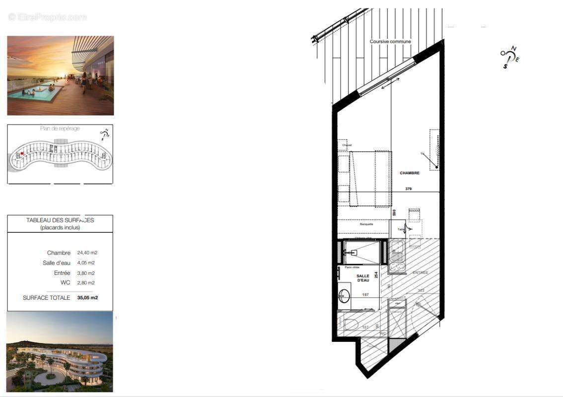
35 m²
1 pièce
parkingascenseurpiscine

Nos partenaires locaux
Découvrez cet appartement au coeur du village naturiste du Cap d'Agde.
Secteur privilégié dans un cadre de vie unique, où bien-être, douceur de vivre et sérénité se conjuguent au quotidien.
Cet élégant T1 de 35 m² séduit par ses volumes généreux et son atmosphère soignée.
Il se compose : D'un séjour lumineux offrant un espace de vie confortable et harmonieux, d'une cuisine fonctionnelle et parfaitement intégrée, d'une salle d'eau entièrement aménagée, aux finitions raffinées
L'ensemble reflète un véritable sens du confort et de la qualité, pour un pied-à-terre haut de gamme.
Un atout rare complète ce bien : une place de parking privative, particulièrement recherché dans le secteur.
Cet appartement correspond-il à vos attentes en termes d'espace, de prestations et de standing ? Je reste à votre disposition pour organiser une présentation et vous accompagner dans votre projet
Prix : 366 600 euros (honoraires à la charge du vendeur) DPE en cours.
Pour visiter et vous accompagner dans votre projet, contactez Michel HORNECKER, au [Coordonnées masquées] ou, par courriel à [Coordonnées masquées].
Selon l'article L.561.5 du Code Monétaire et Financier, pour l'organisation de la visite, la présentation d'une pièce d'identité vous sera demandée.
Cette présente annonce a été rédigée sous la responsabilité éditoriale de Michel HORNECKER agissant sous le statut d'agent commercial immatriculé au RSAC BEZIERS 493044283 auprès de SAS PROPRIETES PRIVEES, au capital de 44 920 euros, ZAC LE CHÊNE FERRÉ - 44 ALLÉE DES CINQ CONTINENTS 44120 VERTOU; SIRET 487 624 777 00040, RCS Nantes. Carte
Professionnelle Transactions sur immeubles et fonds de commerce (T) et Gestion immobilière (G) n°CPI 44[Coordonnées masquées]10 388 délivrée par la CCI Nantes - Saint Nazaire. Compte séquestre n°3[Coordonnées masquées] BPA SAINT-SEBASTIEN-SUR-LOIRE (44230). Garantie GALIAN-SMABTP - 89 rue de la Boétie, 75008 Paris - n°28137 J pour 2 000 000 euros pour T et 120 000 euros pour G. Assurance responsabilité civile professionnelle par GALIAN-SMABTP n° de police 28137.J
Mandat réf : 433109 Le professionnel garantit et sécurise votre projet immobilier.
Copropriété de 125 lots - dont 122 lots habitation.().
Michel HORNECKER (EI) Agent Commercial - Numéro RSAC : BEZIERS 493044283 - .
Voir plus

Référence: 433109HKM
Bien en copropriété. Nombre de lots : 125.
Honoraires à la charge du vendeur.

Prêt immobilier

Vous souhaitez connaître votre capacité d’emprunt et trouver le meilleur crédit immobilier ?
Réaliser une simulation gratuite

Appartement à AGDE
Appartement à AGDE
Appartement à AGDE
Appartement à AGDE
Appartement à AGDE
Appartement à AGDE
Appartement à AGDE
Appartement à AGDE
Appartement à AGDE
Ce site est protégé par reCAPTCHA la Politique de confidentialité et les Conditions d’utilisation de Google s’appliquent.
Obtenir un prêt immobilier au meilleur taux ?

En poursuivant votre navigation sans modifier vos paramètres, vous acceptez l'utilisation de cookies susceptibles de réaliser des statistiques de visite. Cliquez ici pour plus d'informations