Bénéficiez des services de nos partenaires locaux soigneusement sélectionnés
pour vous accompagner dans votre parcours d'achat immobilier

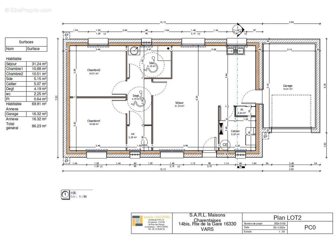
Maison 70m² à vars

— Vars 16330 —
169 000 €
70 m² / 447 m²
3 pièces
parkingbalcon/terrassejardin

Nos partenaires locaux
Maison neuve 70m² habitable + garage d'environ 17m² avec terrain d'environ 447m². En cours de construction, disponible sous 5 mois.
Emplacement RARE dans le centre de la commune de Vars.
Maison de plain pieds neuve livré clé en main. Séjour avec cuisine ouverte d'environ 32m². 2 Chambres. Salle d'eau équipée, avec douche à l'italienne, meuble vasque et sèche serviette. Un WC indépendant et un Cellier. Garage attenant d'environ 16m².
Chauffage avec pompe à chaleur air/air avec splits, chauffe-eau Thermodynamique.
Cette maison consomme très peu d'énergie, une économie à long terme!
Réseaux : Eau, Electricité, Fibre, Tout à l'égout.
Système promotion : le paiement se fait intégralement à la livraison de la maison après réception des travaux.
Exonération de taxe foncière pendant 2 ans.
Vous bénéficiez aussi des frais de notaire réduit à 3%.
Assurance décennale et dommage ouvrage comprise.
Photos non contractuelles.

DPE en cours. Les informations sur les risques auxquels ce bien est exposé sont disponibles sur le site Géorisques : georisques.gouv.fr.
Voir plus

Référence: VM344-MAISONSCHAR16
Honoraires à la charge de l'acquéreur.

Prêt immobilier

Vous souhaitez connaître votre capacité d’emprunt et trouver le meilleur crédit immobilier ?
Réaliser une simulation gratuite

Maison à VARS
Maison à VARS
Maison à VARS
Maison à VARS
Maison à VARS
Ce site est protégé par reCAPTCHA la Politique de confidentialité et les Conditions d’utilisation de Google s’appliquent.
Obtenir un prêt immobilier au meilleur taux ?

En poursuivant votre navigation sans modifier vos paramètres, vous acceptez l'utilisation de cookies susceptibles de réaliser des statistiques de visite. Cliquez ici pour plus d'informations