Bénéficiez des services de nos partenaires locaux soigneusement sélectionnés
pour vous accompagner dans votre parcours d'achat immobilier

Appartement transformable paris 11 secteur charonne

— Paris-11e 75011 —
530 000 €
50 m²
3 pièces
parking

Nos partenaires locaux
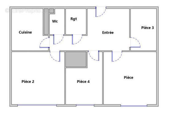
À proximité immédiate des métros Charonne et Faidherbe-Chaligny, au sein d’une résidence bien entretenue des années 1974 avec ascenseur, découvrez ce bien lumineux et ensoleillé actuellement aménagé en cabinet dentaire.
Le bien peut accueillir une profession libérale (médicale, paramédicale, psychologue, orthophoniste, etc.) ou être réaménagé en appartement (possible configuration en 2 ou 3 pièces selon projet).
Situé au 1er étage, il offre une surface fonctionnelle et modulable de 49,14m2 carrez et se compose de :


une entrée avec espace d’accueil / secrétariat,


deux salles de consultation,


une salle d’attente,


une pièce de rangement,


un débarras,


des toilettes indépendantes,


et un espace cuisine d’appoint.


L’environnement est vivant et recherché, avec de nombreux commerces, écoles et transports à proximité immédiate.
Chauffage collectif au gaz-- Climatisation Ascenseur-- Gardien Local sécurisé Cave.
Possibilité d’acquérir un box en sus.
Un bien rare dans le 11, idéal pour une installation professionnelle ou un investissement patrimonial avec potentiel de transformation.
 
Les informations sur les risques auxquels ce bien est exposé sont disponibles sur le site Géorisques : www.georisques.gouv.fr.H&B Immobilier, enregistrée au RCS de Paris au numéro 882 014 889.
Voir plus

Bien en copropriété. Nombre de lots : 51. Charges de copropriété : 2800 €.
Barème des honoraires
DPE
A
B
C
D
E
F
G
GES
A
B
C
D
E
F
G

Prêt immobilier

Vous souhaitez connaître votre capacité d’emprunt et trouver le meilleur crédit immobilier ?
Réaliser une simulation gratuite

Commerce à PARIS-11E
Commerce à PARIS-11E
Commerce à PARIS-11E
Commerce à PARIS-11E
Commerce à PARIS-11E
Commerce à PARIS-11E
Commerce à PARIS-11E
Commerce à PARIS-11E
Commerce à PARIS-11E
Commerce à PARIS-11E
Commerce à PARIS-11E
Commerce à PARIS-11E
Commerce à PARIS-11E
Ce site est protégé par reCAPTCHA la Politique de confidentialité et les Conditions d’utilisation de Google s’appliquent.
Obtenir un prêt immobilier au meilleur taux ?

En poursuivant votre navigation sans modifier vos paramètres, vous acceptez l'utilisation de cookies susceptibles de réaliser des statistiques de visite. Cliquez ici pour plus d'informations