Bénéficiez des services de nos partenaires locaux soigneusement sélectionnés
pour vous accompagner dans votre parcours d'achat immobilier

Appartement 39m² à chartres

— Chartres 28000 —
129 000 €
40 m²
2 pièces
parkingascenseur

Nos partenaires locaux
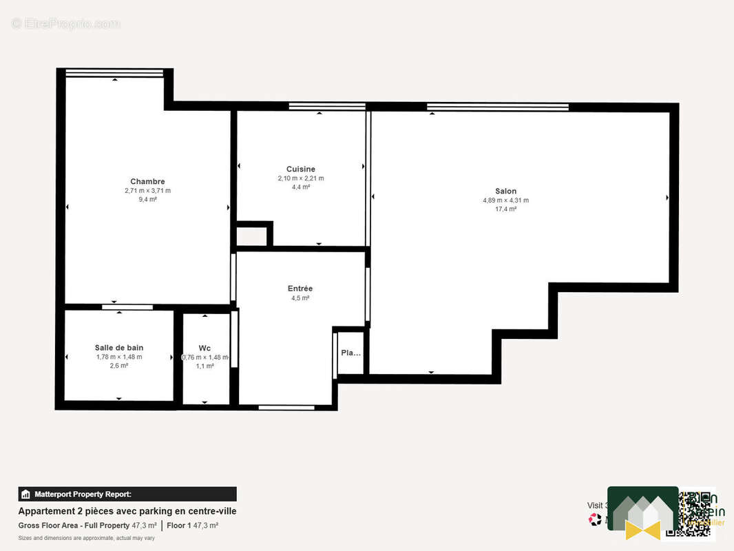
SPÉCIAL INVESTISSEUR – 2 pièces avec parking en centre-ville vendu loué

Découvrez ce beau 2 pièces de 39,50 m², situé au 2? étage sur 4 avec ascenseur d'un immeuble de 1990, en bon état général, à 1 minute à pied de la place des Épars.
Ce bien, vendu loué, offre un rendement immédiat et sécurisé.

EN QUELQUES CHIFFRES:
- Rendement brut : 5,1 %
- Loyer actuel hors charges : 510 €/mois – loué nu
- Taxe foncière : 997 €/an – taxe d'enlèvement des ordures ménagères déduite
- Charges de copropriété : 37,85 €/mois – quote-part investisseur
- Travaux : aucun à prévoir – appartement et copropriété en bon état

DESCRIPTION DU BIEN:
- Superficie totale : 39,50 m²
- Cuisine américaine aménagée et équipée, fonctionnelle
- Salon-séjour lumineux d'environ 19 m²
- Une chambre confortable
- Salle de bains
- WC indépendants

COTE CONFORT :
- Chauffage collectif avec répartiteur individuel
- Menuiseries PVC double vitrage
- Fibre optique
-Ascenseur
- Place de stationnement en sous-sol

A PROPOS DE LA COPROPRIETE
Résidence de 1990, bien tenue, avec parties communes en bon état et aucun travaux votés.
Les charges mensuelles intègrent des prestations complètes, rarement incluses à ce niveau :
- Chauffage collectif (env. 62 €/mois, variable selon consommations réelles du locataire)
- Eau chaude et eau froide (env. 46 €/mois, variable selon consommations réelles du locataire)
- Entretien des parties communes

EMPLACEMENT
- Centre-ville de Chartres
- Arrêt de bus à 5 min à pied
- Gare SNCF à 10 min de marche
- À moins de 10 min à pied : écoles, commerces, restaurants, médecins, parc
- Quartier recherché, dynamique et apprécié des locataires

Contactez votre agent au Noeud Pap' pour organiser une visite.
Découvrez également nos autres opportunités dédiées à l'investissement locatif sur notre site, onglet « Investir ».

Honoraires à la charge du vendeur. Dans une copropriété de 100 lots. Quote-part moyenne du budget prévisionnel 2 655 €/an. Aucune procédure n'est en cours. Classe énergie D, Classe climat D Montant moyen estimé des dépenses annuelles d'énergie pour un usage standard, établi à partir des prix de l'énergie de l'année 2021 : entre 536.00 et 724.00 €. Les informations sur les risques auxquels ce bien est exposé sont disponibles sur le site Géorisques : georisques.gouv.fr.
Voir plus

Référence: 823-BIENSEREIN28
Bien en copropriété. Nombre de lots : 100. Charges de copropriété : 2655 €.
Honoraires à la charge du vendeur.
Barème des honoraires
DPE
A
B
C
D
E
F
G
GES
A
B
C
D
E
F
G

Prêt immobilier

Vous souhaitez connaître votre capacité d’emprunt et trouver le meilleur crédit immobilier ?
Réaliser une simulation gratuite

Appartement à CHARTRES
Appartement à CHARTRES
Appartement à CHARTRES
Appartement à CHARTRES
Appartement à CHARTRES
Appartement à CHARTRES
Ce site est protégé par reCAPTCHA la Politique de confidentialité et les Conditions d’utilisation de Google s’appliquent.
Obtenir un prêt immobilier au meilleur taux ?

En poursuivant votre navigation sans modifier vos paramètres, vous acceptez l'utilisation de cookies susceptibles de réaliser des statistiques de visite. Cliquez ici pour plus d'informations