Bénéficiez des services de nos partenaires locaux soigneusement sélectionnés
pour vous accompagner dans votre parcours d'achat immobilier

Appartement t4 lumineux de 77m² – copropriété sécurisée, vendu avec grand garage.

— Valence 26000 —
178 000 €
77 m²
4 pièces
parkingbalcon/terrasseascenseur

Nos partenaires locaux
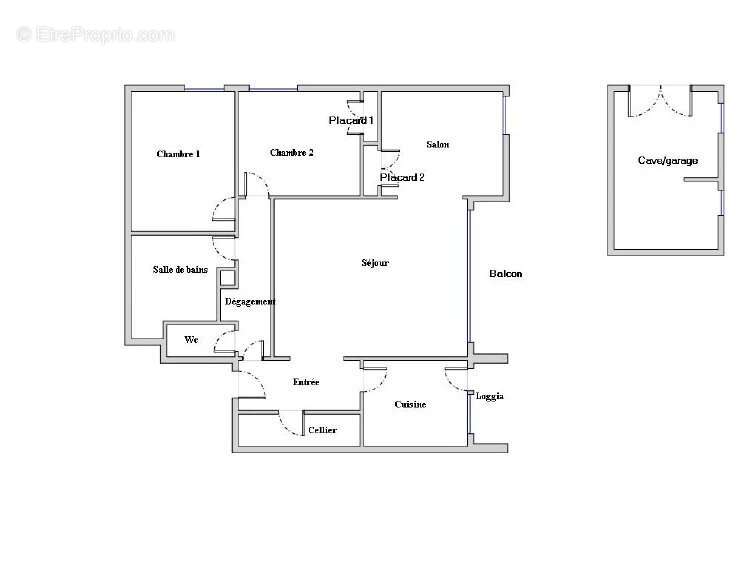
Situé au 3ᵉ étage (avec ascenseur) d’une copropriété entretenue et sécurisée, cet agréable T4 de 77 m² offre un cadre de vie agréable.

L’appartement se compose d’un salon (possible de le remettre en 3ème chambre en installant une porte) / salle à manger d’environ de 30 m², lumineux et bien agencé, donnant sur un espace de vie convivial avec accès au balcon.

La cuisine équipée dispose elle aussi d'un balcon, pratique pour le rangement extérieur.

Côté nuit, vous trouverez 3 chambres :

> Une première avec petit avancée extérieur privatif,

> Une seconde offrant une belle vue dégagée sur l'arrière de la copropriété.

> Une troisième chambre ou il suffit de remettre une porte. Pour l'instant, elle sert de continuité au séjour.

Une salle de bains avec VMC neuve, et un WC séparé complètent l’ensemble.

Les récents travaux de rénovation énergétique de la copropriété (isolation, façade neuve, VMC neuve) assurent un excellent confort thermique été comme hiver et un bon classement DPE.

L’appartement est vendu avec un grand garage fermé de 20m² dans l'immeuble même.
Voir plus

Référence: 86507040
Barème des honoraires
DPE
A
B
C
D
E
F
G
GES
A
B
C
D
E
F
G

Prêt immobilier

Vous souhaitez connaître votre capacité d’emprunt et trouver le meilleur crédit immobilier ?
Réaliser une simulation gratuite

Appartement à VALENCE
Appartement à VALENCE
Appartement à VALENCE
Appartement à VALENCE
Appartement à VALENCE
Appartement à VALENCE
Appartement à VALENCE
Appartement à VALENCE
Appartement à VALENCE
Appartement à VALENCE
Appartement à VALENCE
Appartement à VALENCE
Appartement à VALENCE
Appartement à VALENCE
Appartement à VALENCE
Appartement à VALENCE
Appartement à VALENCE
Ce site est protégé par reCAPTCHA la Politique de confidentialité et les Conditions d’utilisation de Google s’appliquent.
Obtenir un prêt immobilier au meilleur taux ?

En poursuivant votre navigation sans modifier vos paramètres, vous acceptez l'utilisation de cookies susceptibles de réaliser des statistiques de visite. Cliquez ici pour plus d'informations