Appartement 125m² à clapiers

— Clapiers 34830 —
549 000 €
125 m²
5 pièces
balcon/terrasseascenseur

À VENDRE - DERNIER ETAGE - APPARTEMENT T5 - 2 PARKING - CLAPIERS.

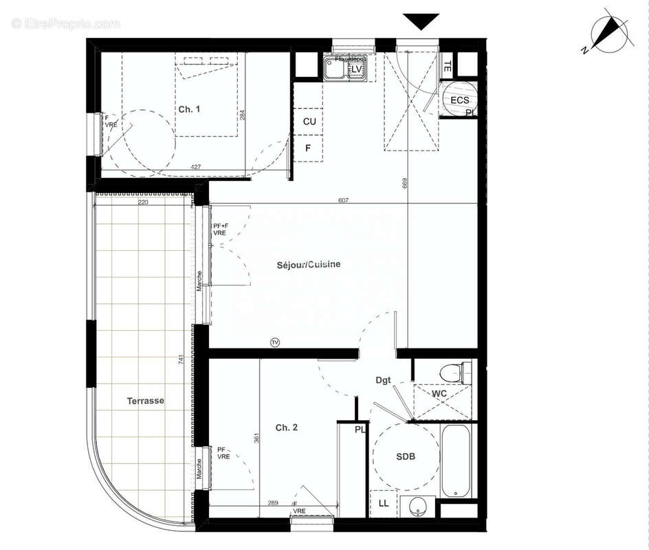
Hamza BAYOUB, de votre agence Clapiéroise DOMEA IMMOBILIER, vous invite à découvrir ce superbe appartement T5 de près de 125?m², situé au dernier étage d'une résidence livrée en 2025, idéalement implantée à Clapiers, dans le quartier recherché du Castelet.

Il se compose d'une vaste pièce de vie très lumineuse, exposée plein Sud, donnant sur une magnifique terrasse de presque 35?m², sans vis-à-vis, parfaite pour profiter pleinement des beaux jours. La cuisine ouverte complète cet espace convivial.
L'appartement dispose de 4 chambres, dont une suite parentale avec sa propre terrasse de 7?m², une salle d'eau privative et un dressing. L'espace nuit comprend également une deuxième salle de bains et un WC séparés, offrant un confort optimal pour toute la famille.

Le bien est vendu avec deux places de parking, un véritable atout au quotidien.
La résidence, récente et sécurisée, propose de belles prestations telles qu'un local vélo, un système d'accès Intratone et des volets roulants. Elle est conforme aux normes PMR.

Vous profiterez également de la proximité de la ligne 5 du tramway, facilitant vos déplacements vers Montpellier et ses environs.

Honoraires à la charge du vendeur. Dans une copropriété de 35 lots. Aucune procédure n'est en cours. Classe énergie A, Classe climat A Montant estimé des dépenses annuelles d'énergie pour un usage standard : entre 400.00 € et 800.00 € sur les années 2021, 2022 et 2023 (abonnements compris). Les informations sur les risques auxquels ce bien est exposé sont disponibles sur le site Géorisques : georisques.gouv.fr.
Voir plus

Référence: VA1965-DOMEA IMMOBILIER
Bien en copropriété. Nombre de lots : 35.
Honoraires à la charge du vendeur.
DPE
A
B
C
D
E
F
G
GES
A
B
C
D
E
F
G

Prêt immobilier

Vous souhaitez connaître votre capacité d’emprunt et trouver le meilleur crédit immobilier ?
Réaliser une simulation gratuite

Appartement à CLAPIERS
Appartement à CLAPIERS
Appartement à CLAPIERS
Ce site est protégé par reCAPTCHA la Politique de confidentialité et les Conditions d’utilisation de Google s’appliquent.
Obtenir un prêt immobilier au meilleur taux ?

En poursuivant votre navigation sans modifier vos paramètres, vous acceptez l'utilisation de cookies susceptibles de réaliser des statistiques de visite. Cliquez ici pour plus d'informations