Bénéficiez des services de nos partenaires locaux soigneusement sélectionnés
pour vous accompagner dans votre parcours d'achat immobilier

Immeuble à niederbronn les bains

— Niederbronn-Les-Bains 67110 —
165 000 €
159 m²
8 pièces

Nos partenaires locaux
Immeuble à Réhabiliter 195 m² au sol – Opportunité à Niederbronn-les-Bains

Au cœur du Parc naturel régional des Vosges du Nord, Niederbronn-les-Bains séduit par son cadre verdoyant, son activité thermale et ses nombreuses commodités (commerces, restaurants, écoles, transports). La ville se distingue également par son dynamisme associatif, offrant de nombreuses associations sportives, culturelles et sociales qui contribuent à une qualité de vie agréable et conviviale.

Emplacement stratégique
Proche des commerces, services et transports.
Stationnement facilité avec de nombreux parkings à proximité et places gratuites.

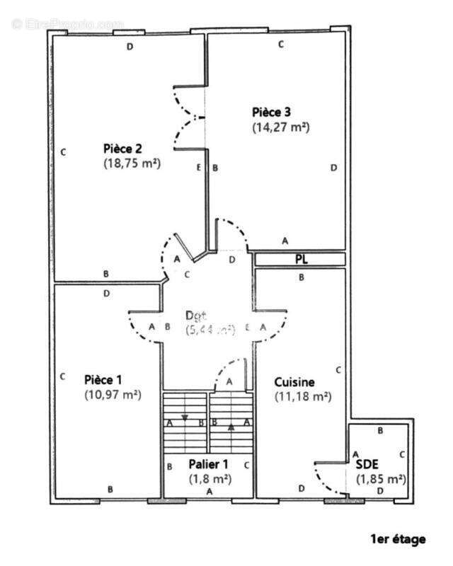
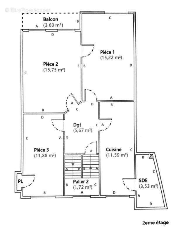
Caractéristiques du bien
Rez-de-chaussée : F1 de 37m².
1er étage : F3 de 62 m².
2e étage : F3 de 63 m².
Surface au sol.
Dernier niveau : F1 d'environ 33 m².
Petite dépendance attenante, idéale pour stockage ou espace supplémentaire.

Gros potentiel à exploiter !
Avec des travaux de rénovation, ce bien offre de multiples possibilités : investissement locatif, résidence principale ou projet sur mesure.
Pour plus d'informations ou pour fixer un rendez-vous, n'hésiter pas à nous contacter.
Pour vos projets immobiliers, nous pouvons vous mettre en contact avec des professionnels du financement afin de faciliter votre acquisition.

Annonce publiée par Mohammed Dib (EI) votre agent commercial en immobilier LF immo à Reichshoffen, 67110 immatriculé au RSAC de Strasbourg sous le n°512 [Coordonnées masquées]5. Consultez nos tarifs sur le site LF immo.

Les informations sur les risques auxquels ce bien est exposé sont disponibles sur le site Géorisques : www.georisques.gouv.fr.
Voir plus

Référence: fr064285
Honoraires à la charge du vendeur.
DPE
A
B
C
D
E
F
G
GES
A
B
C
D
E
F
G

Prêt immobilier

Vous souhaitez connaître votre capacité d’emprunt et trouver le meilleur crédit immobilier ?
Réaliser une simulation gratuite

Appartement à NIEDERBRONN-LES-BAINS
Appartement à NIEDERBRONN-LES-BAINS
Appartement à NIEDERBRONN-LES-BAINS
Appartement à NIEDERBRONN-LES-BAINS
Appartement à NIEDERBRONN-LES-BAINS
Appartement à NIEDERBRONN-LES-BAINS
Appartement à NIEDERBRONN-LES-BAINS
Appartement à NIEDERBRONN-LES-BAINS
Appartement à NIEDERBRONN-LES-BAINS
Appartement à NIEDERBRONN-LES-BAINS
Appartement à NIEDERBRONN-LES-BAINS
Appartement à NIEDERBRONN-LES-BAINS
Appartement à NIEDERBRONN-LES-BAINS
Appartement à NIEDERBRONN-LES-BAINS
Appartement à NIEDERBRONN-LES-BAINS
Appartement à NIEDERBRONN-LES-BAINS
Appartement à NIEDERBRONN-LES-BAINS
Appartement à NIEDERBRONN-LES-BAINS
Ce site est protégé par reCAPTCHA la Politique de confidentialité et les Conditions d’utilisation de Google s’appliquent.
Obtenir un prêt immobilier au meilleur taux ?

En poursuivant votre navigation sans modifier vos paramètres, vous acceptez l'utilisation de cookies susceptibles de réaliser des statistiques de visite. Cliquez ici pour plus d'informations