Appartement triplex en excellent état avec terrasse - 183 m² - suresnes (92150)

— Suresnes 92150 —
1 400 000 €
183 m²
5 pièces
parkingbalcon/terrasse

Découvrez ce superbe appartement triplex de 5 pièces, situé dans un immeuble de 1930, offrant une surface Carrez de 183 m², au cœur de Suresnes, à la limite de Puteaux.

Un bien aux volumes généreux et à la distribution idéale

Au niveau inférieur :
- Une chambre de 17 m² avec placard intégré
- Une seconde chambre de 11 m²
- Une salle d'eau avec WC

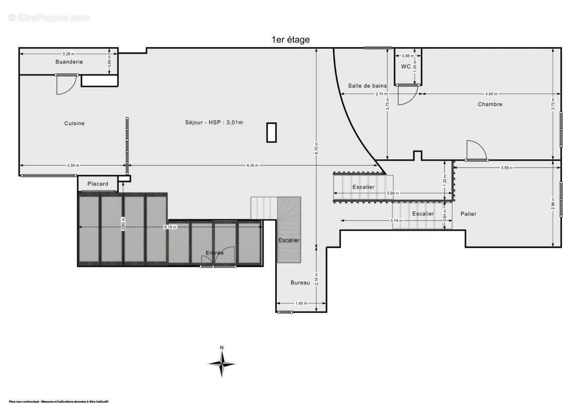
Au rez-de-chaussée :
- Une entrée lumineuse sublimée par une verrière avec stores thermiques électriques
- Un vaste séjour de 53 m², ouvert sur une cuisine neuve et entièrement équipée (2022)
- Un espace bureau, idéal pour le télétravail

Au rez-de-chaussée surélevé :
- Une suite parentale comprenant un grand dressing refait à neuf en 2022, une salle de bain et un WC séparé

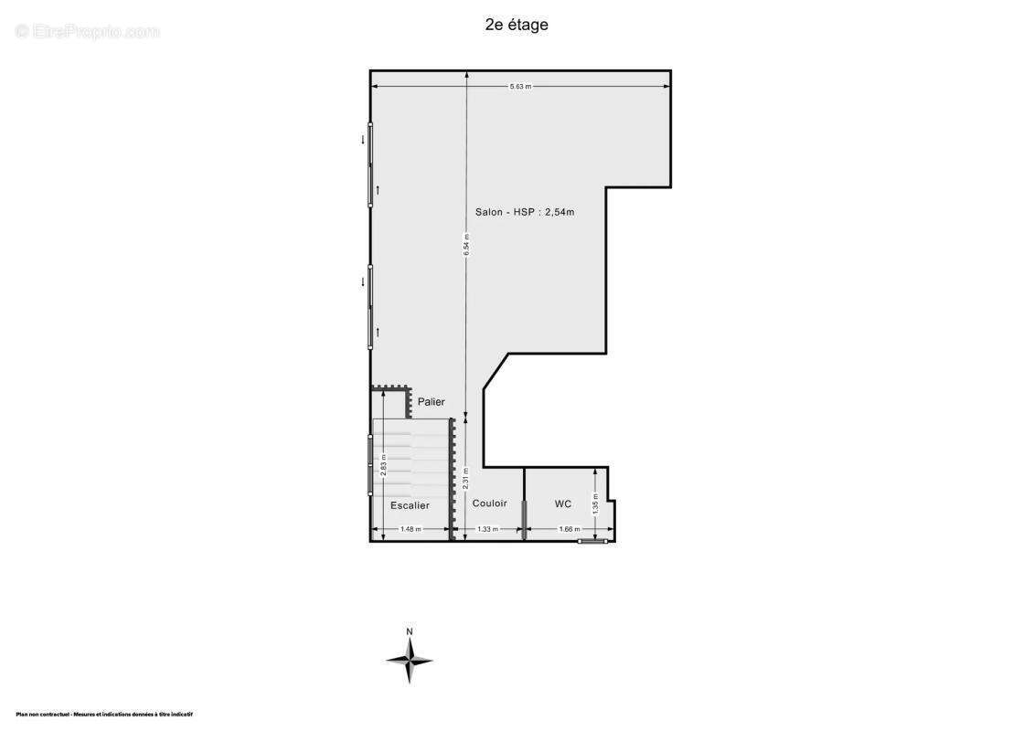
Au niveau supérieur :
- Un espace salon de 31 m², ouvrant sur une terrasse privative de 26 m²
- Un WC séparé

Une cave ainsi qu'une place de parking (située dans une copropriété voisine) complètent ce bien.

Un emplacement recherché

Parce que la localisation compte aussi : l'appartement est idéalement situé à Suresnes, à la limite de Puteaux, à 10 minutes à pied de l'île de Puteaux et à 10 minutes en voiture du Mont-Valérien.

Les transports sont facilement accessibles avec le tramway T2 ainsi que les lignes L et U, à 10 minutes à pied.

Informations complémentaires
- Charges : 226 € / mois
- Taxe foncière : 2 023 €
- Copropriété : aucune procédure en cours
- Chauffage : électrique individuel (chauffage au sol – gaz uniquement dans la grande pièce)
- DPE : B

Intéressé(e) ? Contactez Zefir pour organiser une visite.

Vous vendez votre bien immobilier ?

Demandez une offre gratuite sur le site de Zefir : nous nous portons acquéreurs de votre bien.
Voir plus

Référence: 04767711-ff8e-4e83-b27d-125ca2
Bien en copropriété. Charges de copropriété : 226 €.
Honoraires à la charge du vendeur.
DPE
A
B
C
D
E
F
G
GES
A
B
C
D
E
F
G

Prêt immobilier

Vous souhaitez connaître votre capacité d’emprunt et trouver le meilleur crédit immobilier ?
Réaliser une simulation gratuite

Appartement à SURESNES
Appartement à SURESNES
Appartement à SURESNES
Appartement à SURESNES
Appartement à SURESNES
Appartement à SURESNES
Appartement à SURESNES
Appartement à SURESNES
Appartement à SURESNES
Appartement à SURESNES
Appartement à SURESNES
Appartement à SURESNES
Appartement à SURESNES
Appartement à SURESNES
Appartement à SURESNES
Appartement à SURESNES
Appartement à SURESNES
Appartement à SURESNES
Appartement à SURESNES
Appartement à SURESNES
Appartement à SURESNES
Appartement à SURESNES
Appartement à SURESNES
Appartement à SURESNES
Appartement à SURESNES
Appartement à SURESNES
Appartement à SURESNES
Ce site est protégé par reCAPTCHA la Politique de confidentialité et les Conditions d’utilisation de Google s’appliquent.
Obtenir un prêt immobilier au meilleur taux ?

En poursuivant votre navigation sans modifier vos paramètres, vous acceptez l'utilisation de cookies susceptibles de réaliser des statistiques de visite. Cliquez ici pour plus d'informations