Bénéficiez des services de nos partenaires locaux soigneusement sélectionnés
pour vous accompagner dans votre parcours d'achat immobilier

Maison giez 9 pièces 390 m2

— Giez 74210 —
250 000 €
390 m² / 520 m²
9 pièces
parkingbalcon/terrassejardin

Nos partenaires locaux
Giez 74200 HAUTE-SAVOIE Maison à rénover - 3 chambres ? Combles aménageables ? Garage ? Jardin 250 m² en annexe ? Proche golf

En exclusivité située sur la commune de Giez, à proximité immédiate du golf, cette maison de caractère développe une surface totale d'environ 390 m² et offre un important potentiel de rénovation, idéal pour un projet sur mesure.

Mitoyenne d'un côté, elle conserve toute son intimité et son charme de maison de village.

Le sous-sol abrite deux caves, offrant des espaces de stockage appréciables.

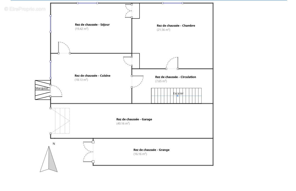
Au rez-de-chaussée, la maison déploie ses espaces avec authenticité et caractère. On y trouve un garage et une grange d'environ 16 m², offrant la possibilité d'aménagements variés. La partie habitation comprend une cuisine, un séjour et une chambre, formant un ensemble harmonieux, empreint du charme de l'ancien.

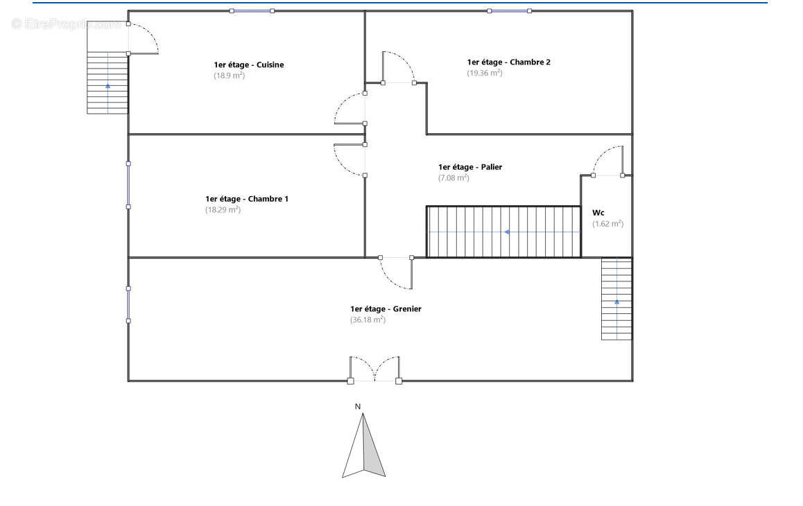
Le premier étage pièce palière, un WC, deux chambres, ainsi qu'une cuisine ouvrant sur un balcon, offrant un agréable prolongement extérieur.

Sur ce même niveau, un grenier et des combles aménageables d'environ 130 m² viennent enrichir l'ensemble et ouvrent la voie à de nombreuses possibilités d'aménagement, qu'il s'agisse d'agrandir la surface habitable ou de créer des espaces indépendants.

Enfin, la propriété bénéficie d'un jardin d'environ 250 m², non attenant, situé à proximité immédiate de la maison, offrant un espace extérieur complémentaire pour profiter du cadre environnant.

Prix de vente : 250 000 euros (Honoraires d'agence à la charge du vendeur).
DPE G GES G
Montant estimé des dépenses annuelles d'énergie pour un usage standard entre 6 300 et 8 590 euros indexées aux années 2021, 2022 et 2023 (ou 2021 uniquement) (si logement F ou G 'Logement à consommation énergétique excessive : classe F ou G')
Pour visiter et vous accompagner dans votre projet, contactez Maïmouna LY, au [Coordonnées masquées] ou, par courriel à [Coordonnées masquées].
Selon l'article L.561.5 du Code Monétaire et Financier, pour l'organisation de la visite, la présentation d'une pièce d'identité vous sera demandée.
Cette présente annonce a été rédigée sous la responsabilité éditoriale de Maïmouna LY agissant sous le statut d'agent commercial immatriculé au RSAC CHAMBERY 839110053 auprès de SAS PROPRIETES PRIVEES, au capital de 44 920 euros, ZAC LE CHÊNE FERRÉ - 44 ALLÉE DES CINQ CONTINENTS 44120 VERTOU; SIRET 487 624 777 00040, RCS Nantes. Carte Professionnelle Transactions sur immeubles et fonds de commerce (T) et Gestion immobilière (G) n°CPI 44[Coordonnées masquées]10 388 délivrée par la CCI Nantes - Saint Nazaire. Compte séquestre n°3[Coordonnées masquées] BPA SAINT-SEBASTIEN-SUR-LOIRE (44230). Garantie GALIAN-SMABTP - 89 rue de la Boétie, 75008 Paris - n°28137 J pour 2 000 000 euros pour T et 120 000 euros pour G. Assurance responsabilité civile professionnelle par GALIAN-SMABTP n° de police 28137.J

Mandat réf : 432506 - Le professionnel garantit et sécurise votre projet immobilier.

Maïmouna LY (EI) Agent Commercial - Numéro RSAC : CHAMBERY 839110053 - .
Les informations sur les risques auxquels ce bien est exposé sont disponibles sur le site Géorisques : www. georisques. gouv. fr
Voir plus

Référence: 432506MLY
Honoraires à la charge du vendeur.
DPE
A
B
C
D
E
F
G
GES
A
B
C
D
E
F
G

Prêt immobilier

Vous souhaitez connaître votre capacité d’emprunt et trouver le meilleur crédit immobilier ?
Réaliser une simulation gratuite

Maison à GIEZ
Maison à GIEZ
Maison à GIEZ
Maison à GIEZ
Maison à GIEZ
Maison à GIEZ
Maison à GIEZ
Maison à GIEZ
Maison à GIEZ
Maison à GIEZ
Maison à GIEZ
Maison à GIEZ
Maison à GIEZ
Maison à GIEZ
Ce site est protégé par reCAPTCHA la Politique de confidentialité et les Conditions d’utilisation de Google s’appliquent.
Obtenir un prêt immobilier au meilleur taux ?

En poursuivant votre navigation sans modifier vos paramètres, vous acceptez l'utilisation de cookies susceptibles de réaliser des statistiques de visite. Cliquez ici pour plus d'informations