Bénéficiez des services de nos partenaires locaux soigneusement sélectionnés
pour vous accompagner dans votre parcours d'achat immobilier

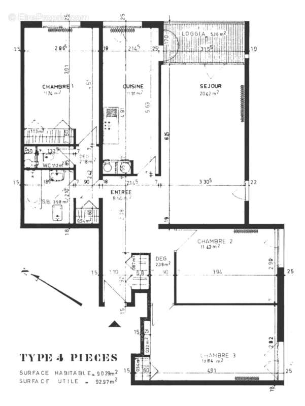
 appartement f4 à rénover - 14ème étage/15, résidence '1 rue charpy'

— Creteil 94000 —
259 700 €
90 m²
4 pièces
parkingbalcon/terrasse

Nos partenaires locaux
Spacieux appartement F4 (89,67m2) lumineux à personnaliser selon vos goûts, idéalement situé à seulement 7 minutes à pied du Métro Créteil-Université.
Entrée accueillante avec placard intégré. Séjour spacieux agrémenté d’une loggia fermée, parfait pour profiter de la lumière naturelle. Grande cuisine avec possibilité d’ouverture sur le séjour pour un aménagement en espace de vie moderne. Trois chambres confortables dont deux avec placard. Dégagement pratique, salle de bains fonctionnelle et toilettes séparées.
Coffret électrique récent pour plus de sécurité. Volets roulants électriques dans les chambres pour un confort accru. Cave et parking en sous-sol inclus.
Ravalement de façade récemment effectué. Travaux d’aménagement intérieur à prévoir, vous permettant de créer l’espace de vos rêves.
Ne manquez pas cette belle opportunité de rénover cet appartement selon vos envies dans un quartier bien desservi. Contactez-nous pour plus d’informations ou pour organiser une visite !
Voir plus

Référence: VTE-1855
Bien en copropriété. Nombre de lots : 229. Charges de copropriété : 3200 €.
Barème des honoraires
DPE
A
B
C
D
E
F
G
GES
A
B
C
D
E
F
G

Prêt immobilier

Vous souhaitez connaître votre capacité d’emprunt et trouver le meilleur crédit immobilier ?
Réaliser une simulation gratuite

Appartement à CRETEIL
Appartement à CRETEIL
Appartement à CRETEIL
Appartement à CRETEIL
Appartement à CRETEIL
Appartement à CRETEIL
Appartement à CRETEIL
Appartement à CRETEIL
Appartement à CRETEIL
Appartement à CRETEIL
Appartement à CRETEIL
Appartement à CRETEIL
Ce site est protégé par reCAPTCHA la Politique de confidentialité et les Conditions d’utilisation de Google s’appliquent.
Obtenir un prêt immobilier au meilleur taux ?

En poursuivant votre navigation sans modifier vos paramètres, vous acceptez l'utilisation de cookies susceptibles de réaliser des statistiques de visite. Cliquez ici pour plus d'informations